

作品包括:
Word版说明书1份,151页,约78000字
CAD版本图纸,共5张
摘 要
本设计包括三个部分:一般部分、专题部分和翻译部分。
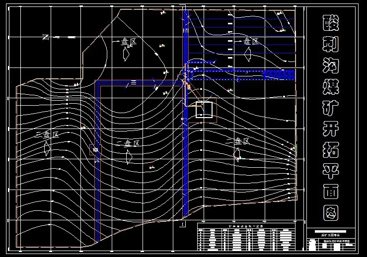
一般部分为酸刺沟煤矿3.0Mt/a新井设计。酸刺沟煤矿属于内蒙古伊泰集团,位于内蒙古自治区东胜煤田内。井田南北走向长约8.9km,东西倾向长约6.5km,总面积为58.74km2。煤层平均倾角2°,为近水平煤层,埋藏浅,埋深平均215m,其中表土层为81m,设计所采煤层为4号煤,平均厚度3.82m。矿井工业储量329.359Mt,可采储量251.367Mt,服务年限64.5a。
矿井开拓方式为斜井单水平开拓,主井、副井为斜井,风井为立井,在井底沿东西向布置煤层大巷开拓一、二盘区,在北部布置东西向煤层大巷开拓三盘区,
主斜井倾角13°,全长991m,装备带式输送机,副斜井倾角6°,全长1922m,装备无轨胶轮车;风井净直径5.5m,井筒深度301m,装备玻璃钢梯子间。
移交生产时,在4号煤布置一个综采工作面,一个连采掘进工作面和一个普通掘进工作面,采掘比为1:2。连续采煤机还能进行煤柱回收和回撤巷道煤柱回收。工作面长度为240m,年推进度为2805m。日产量为9091t,通风方式为中央分列式。
矿井主运输采用带式输送机,煤从采掘工作面到地面实现连续运输;矿井辅助运输采用无轨胶轮车,人员、材料、设备可以实现从地面到工作面附近直达运输。
专题部分题目:神东矿区浅埋采场溃沙分析及控制机理研究
翻译部分题目:A Method for The Design of Longwall Gateroad Roof Support ,对应中文翻译为:长壁工作面顺槽顶板支护设计
关键词:浅埋煤层 ;近水平煤层 ;盘区布置 ;斜井单水平开拓 ;煤层大巷 ;双巷掘进 ;连续采煤机 ;无轨胶轮车 ;中央分列式 ; 溃沙
目 录
一般设计部分
1 矿井概况与地质特征 1
1.1井田概况 1
1.2井田地质特征 3
1.3煤层特征 7
2 井田境界和储量 10
2.1井田境界 10
2.2井田地质勘探 11
2.3矿井地质储量 11
2.4矿井可采储量 13
3 矿井工作制度、设计生产能力及服务年限 17
3.1矿井工作制度 17
3.2矿井设计生产能力及服务年限 17
4 井田开拓 19
4.1井田开拓的基本问题 19
4.2矿井基本巷道 28
5 准备方式——盘区巷道布置 37
5.1煤层地质特征 37
5.2盘区巷道布置及生产系统 38
5.3盘区车场选型设计 44
6 采煤方法 45
6.1采煤工艺方式 45
6.2回采巷道布置 56
7 井下运输 58
7.1概述 58
7.2盘区运输设备选择 59
7.3大巷运输设备选择 60
8 矿井提升 64
8.1矿井提升概述 64
8.2主副井提升 64
9 矿井通风及安全 67
9.1矿井概况、开拓方式及开采方法 67
9.2矿井通风系统的确定 68
9.3矿井风量计算 72
9.4矿井通风阻力计算 80
9.5选择矿井通风设备 86
9.6安全灾害的预防措施 90
10 设计矿井基本技术经济指标 92
专题设计部分
1 绪论 94
1.1问题的提出与研究意义 94
1.2国内外研究现状及存在问题 95
1.3论文主要研究内容 98
2 浅埋煤层开采特征与涌水溃沙 98
2. 1浅埋煤层开采一般特征 98
2.2 涌水溃沙机理及其分析简化 101
3 涌水溃沙发生的判定条件及影响因素 105
3. 1涌水溃沙过程泥沙起动条件分析 105
3.3 涌水溃沙发生的影响因素 109
4 涌水溃沙控制措施 112
4.1 通过降低含水层高度控制涌水溃沙 112
4.2 通过改变裂缝因素控制溃沙量 116
5 结论 117
翻译部分
英文原文 120
中文译文 131
致 谢 141
温馨提示:
1、题目前面的备注【字母数字编号】为本站整理分类的编号,与课题内容无关,请选题时忽视;
2、若题目上备注三维,则表示文件里包含三维源文件,由于三维组成零件数量较多,为保证预览截图的简洁性,本站将三维文件夹进行了打包。三维及CAD预览截图,均为本站电脑打开软件进行截图的,保证能够打开,下载原件超高清,下载后解压即可;
3、本站所有资源如无特殊说明,都需要本地电脑安装Office2007。图纸软件为AutoCAD,PROE,UG,SolidWorks,CATIA等;
4、本站所有图文资料仅供用户学习参考,不作为任何商用或其他用途;
5、本站不保证下载资源的准确性、安全性和完整性, 不包修改,不支持退换,同时也不承担用户因使用这些下载资源对自己和他人造成任何形式的伤害或损失;
6、 下载文件中如有侵权或不适当内容,请与我们联系,我们立即纠正。