

作品包括:
Word版说明书1份,共64页,约16000字
任务书一份
开题报告一份
外文翻译一份
CAD版本图纸,共8张
某年产25万吨锑精矿选矿厂设计
摘要:本次设计参考湖南锡矿山1500t/d选矿厂的现场生产情况,初步设计了某锑矿选矿厂工艺流程、设备选型、厂房配置等。根据设计任务书和现场生产指标,本次设计采用如下主要工艺流程:三段一闭路的破碎筛分流程;一段一闭路的磨矿分级流程;一次粗选三次扫选三次精选的浮选流程;锑精矿采用浓缩压滤的脱水流程。本次设计选矿厂的规模为13200t/d,给矿最大粒度420mm,原矿品位为3.6%,原矿密度为2.8 t/m3。得到的金精矿的品位为55%,回收率为87.5%。
设计对工艺流程进行了工艺指标计算,包括破碎、筛分、磨矿、浮选(包括矿浆流程)和脱水流程。对破碎、筛分、磨矿、分级、浮选及脱水设备进行了选择计算,最终确定了工艺所需的工艺设备。
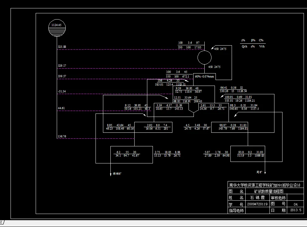
设计还进行了厂房的总体布置,并进行了厂房内的设备配置。根据选厂的地形条件,沿山坡地布置,其中,粗碎、中细碎、筛分厂房分开布置。磨矿浮选共厂房配置,其中磨矿采用纵向配置,浮选机采用横向配置。浓缩机配置在露天,过滤机与精矿仓配置在厂房内。完成了工艺流程图、磨矿数质量流程图、破碎数质量流程图、矿浆数质量流程图、设备形象联系图、破碎厂房平面布置图、主厂房平面布置图、脱水厂房平面布置图共8张图纸。
关键词:选矿厂设计 ; 锑矿 ; 浮选
目 录
引 言 1
1 绪 论 2
1.1 建厂地区概况 2
1.1.1 矿区地理位置和交通状况 2
1.1.2矿区气候概况和经济情况 2
1.2 选厂厂址选择 2
1.3 选矿设计指标和产品 3
2 矿床与原矿性质 4
2.1 矿石类型 4
2.2 矿石性质 4
2.3 原矿基本物理性质 4
2.4矿石含量及多元素成分分析 5
3 车间工作制度和生产能力 6
3.1 车间工作制度 6
3.2 车间生产能力 6
4 破碎流程的选择和计算 7
4.1 破碎流程的计算 7
4.2计算破碎车间小时处理量 7
4.3初步拟定破碎流程 7
4.4计算各段破碎比 9
4.5计算各段破碎产物的最大粒度 9
4.6 计算各段破碎机排矿口宽度 10
4.7 选择各段筛子筛孔尺寸和筛分效率 10
4.8计算各产物的产率和重量 10
4.9绘制破碎数质量流程图 12
5 磨矿流程的选择和计算 13
5.1 磨矿段数的确定 13
5.2 检查分级的必要性 13
5.3 磨矿流程的计算 13
5.4 绘制磨矿数量流程图 14
6 浮选流程的选择和计算 15
6.1 浮选流程的选择 15
6.2 浮选流程的计算 15
6.3计算各产物的重量。 19
7 矿浆流程计算 23
7.1 磨矿流程 23
7.2选别流程 24
7.3 脱水流程矿浆计算 29
7.4 绘制矿浆数质量流程图 29
8 脱水流程的选择 30
9 选矿设备的选择和计算 31
9.1 破碎、筛分设备的选择和计算 31
9.1.1 粗碎设备的选择 31
9.1.2 中碎设备的选择 31
9.1.3 细碎设备的选择 32
9.1.4 筛分设备的选择 33
9.2 磨矿、分级设备的选择和计算 35
9.2.1 磨矿设备的选择 35
9.2.2 分级设备的选择 38
9.3 浮选设备的选择和计算 39
9.3.1 浮选时间的确定 39
9.3.2 浮选矿浆体积计算 40
9.3.3 浮选机槽数计算 41
9.4 脱水设备的选择和计算 43
9.5 过滤机选择和计算 43
9.6 辅助设备的计算 44
9.6.1 矿仓 44
9.6.2 胶带机的选择与计算 45
9.6.3 其他辅助设备的选择与计算 48
10 厂房的总体布置 49
11 厂内设备布置 50
11.1 破碎厂房的设备配置 50
11.2磨浮车间设备配置 51
11.3脱水车间设备配置 51
12 结论 52
附录:设备选择附表 53
参考文献 56
致 谢 58
温馨提示:
1、题目前面的备注【字母数字编号】为本站整理分类的编号,与课题内容无关,请选题时忽视;
2、若题目上备注三维,则表示文件里包含三维源文件,由于三维组成零件数量较多,为保证预览截图的简洁性,本站将三维文件夹进行了打包。三维及CAD预览截图,均为本站电脑打开软件进行截图的,保证能够打开,下载原件超高清,下载后解压即可;
3、本站所有资源如无特殊说明,都需要本地电脑安装Office2007。图纸软件为AutoCAD,PROE,UG,SolidWorks,CATIA等;
4、本站所有图文资料仅供用户学习参考,不作为任何商用或其他用途;
5、本站不保证下载资源的准确性、安全性和完整性, 不包修改,不支持退换,同时也不承担用户因使用这些下载资源对自己和他人造成任何形式的伤害或损失;
6、 下载文件中如有侵权或不适当内容,请与我们联系,我们立即纠正。