

作品包括:
word说明书一份,共27页,约9100字
CAD版本图纸,共5张

摘 要
本次设计是对前钢板弹簧吊耳零件的加工工艺设计。前钢板弹簧吊零件的主要加工表面是平面及孔。由加工工艺原则可知,保证平面的加工精度要比保证孔的加工精度容易。所以本设计遵循先面前孔的原则。并将孔与平面的加工明确划分成粗加工和精加工阶段以保证加工精度。基准选择以前钢板弹簧吊耳大外圆端面作为粗基准,以前钢板弹簧吊耳大外圆端面与两个工艺孔作为精基准。主要加工工序安排是先以前钢板弹簧吊耳大外圆端面互为基准加工出端面,再以端面定位加工出工艺孔。在前续工序中除个别工序外均用端面和工艺孔定位加工其他孔与平面。整个加工过程均选用专用机床。
关键词 前钢板弹簧吊耳,加工工艺
目 录
摘 要 I
ABSTRACT II
1 绪 论 1
2 前钢板弹簧吊耳加工工艺规程设计 2
2.1零件的分析 2
2.1.1零件的作用 2
2.1.2零件的工艺分析 2
2.2工艺过程设计所应采取的相应措施 3
2.3前钢板弹簧吊耳加工定位基准的选择 3
2.3.1 确定毛坯的制造形式 3
2.3.2粗基准的选择 3
2.3.3精基准的选择 4
2.4 工艺路线的制定 4
2.4.1 工艺方案一 4
2.4.2 工艺方案二 5
2.4.3 工艺方案的比较与分析 5
2.5机械加工余量、工序尺寸及毛坯尺寸的确定 6
2.6确定切削用量及基本工时(机动时间) 6
2.7时间定额计算及生产安排 13
2.8 本章小结 14
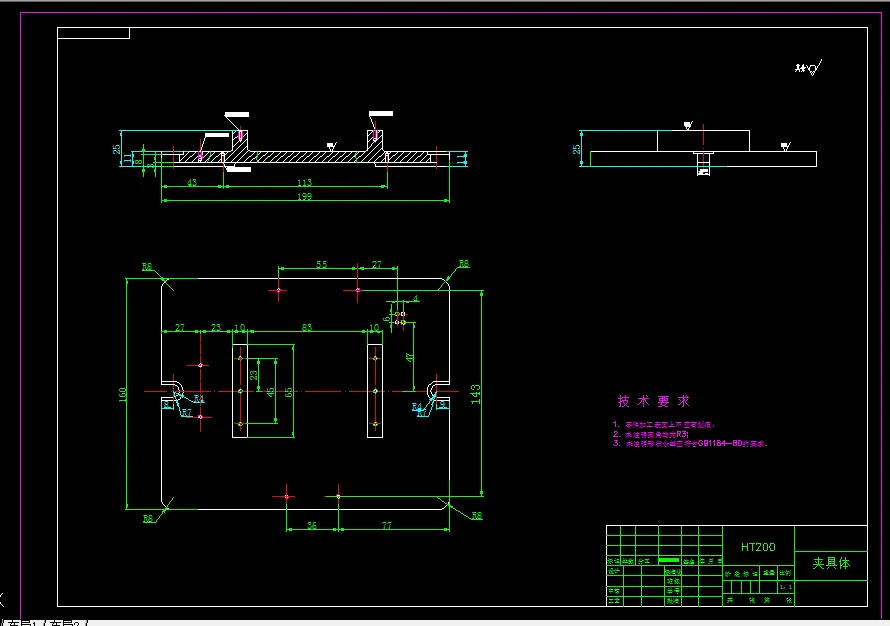
3 铣平面夹具设计 15
3.1设计要求 15
3.2夹具设计 15
3.2.1 定位基准的选择 15
3.2.2 切削力及夹紧力的计算 15
3.3定位误差的分析 17
3.4 零、部件的设计与选用 18
3.5夹具设计及操作的简要说明 19
总 结 21
参考文献 22
致 谢 23
温馨提示:
1、题目前面的备注【字母数字编号】为本站整理分类的编号,与课题内容无关,请选题时忽视;
2、若题目上备注三维,则表示文件里包含三维源文件,由于三维组成零件数量较多,为保证预览截图的简洁性,本站将三维文件夹进行了打包。三维及CAD预览截图,均为本站电脑打开软件进行截图的,保证能够打开,下载原件超高清,下载后解压即可;
3、本站所有资源如无特殊说明,都需要本地电脑安装Office2007。图纸软件为AutoCAD,PROE,UG,SolidWorks,CATIA等;
4、本站所有图文资料仅供用户学习参考,不作为任何商用或其他用途;
5、本站不保证下载资源的准确性、安全性和完整性, 不包修改,不支持退换,同时也不承担用户因使用这些下载资源对自己和他人造成任何形式的伤害或损失;
6、 下载文件中如有侵权或不适当内容,请与我们联系,我们立即纠正。