

作品包括:
Word版说明书一份,共39页,约17000字
CAD版本图纸,共5张
工艺卡一份
过程卡一份

摘 要
机械制造业是制造具有一定形状位置和尺寸的零件和产品,并把它们装备成机械装备的行业。机械制造业的产品既可以直接供人们使用,也可以为其它行业的生产提供装备,社会上有着各种各样的机械或机械制造业的产品。我们的生活离不开制造业,因此制造业是国民经济发展的重要行业,是一个国家或地区发展的重要基础及有力支柱。从某中意义上讲,机械制造水平的高低是衡量一个国家国民经济综合实力和科学技术水平的重要指标。
拨叉的加工工艺规程及其铣2-30上端面的夹具设计是在学完了机械制图、机械制造技术基础、机械设计、机械工程材料等进行毕业设计之后的下一个教学环节。正确地解决一个零件在加工中的定位,夹紧以及工艺路线安排,工艺尺寸确定等问题,并设计出专用夹具,保证零件的加工质量。本次设计也要培养自己的自学与创新能力。因此本次设计综合性和实践性强、涉及知识面广。所以在设计中既要注意基本概念、基本理论,又要注意生产实践的需要,只有将各种理论与生产实践相结合,才能很好的完成本次设计。
本设计选用拨叉来进行工艺编制与夹具设计,以说明书、绘图为主,设计手册与国家标准为附来进行详细说明。
关键词:切削用量 夹紧 定位 误差
目 录
摘 要 I
1 概述发展 1
1.1 机床夹具的主要功能 1
1.2 机床夹具的组成 1
1.3 夹具设计的步骤和基本要求 1
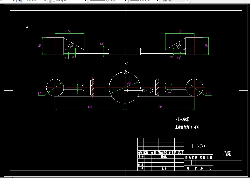
2 零件的工艺设计 13
2.1 零件的工艺设计 13
2.2 工艺规程的设计 13
3 加工设备与工艺装备的选择 26
3.1 选择机床 26
3.2 选择夹具 26
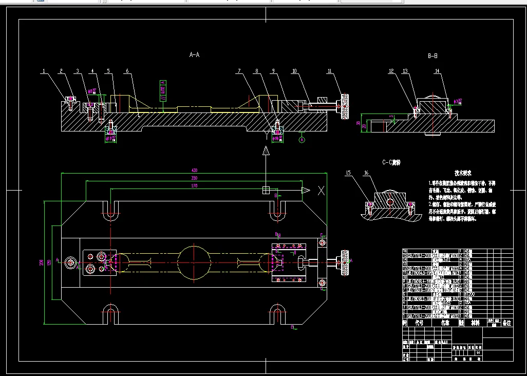
4 零件铣床的夹具设计 27
4.1 问题的提出 27
4.2 定位基准的选择 27
4.3 切削力与夹紧力的计算 27
4.4 定位误差分析 28
4.5 定位键与对刀装置的设计 29
4.6 铣床夹具截图 31
结 论 38
致 谢 39
参考文献 40
温馨提示:
1、题目前面的备注【字母数字编号】为本站整理分类的编号,与课题内容无关,请选题时忽视;
2、若题目上备注三维,则表示文件里包含三维源文件,由于三维组成零件数量较多,为保证预览截图的简洁性,本站将三维文件夹进行了打包。三维及CAD预览截图,均为本站电脑打开软件进行截图的,保证能够打开,下载原件超高清,下载后解压即可;
3、本站所有资源如无特殊说明,都需要本地电脑安装Office2007。图纸软件为AutoCAD,PROE,UG,SolidWorks,CATIA等;
4、本站所有图文资料仅供用户学习参考,不作为任何商用或其他用途;
5、本站不保证下载资源的准确性、安全性和完整性, 不包修改,不支持退换,同时也不承担用户因使用这些下载资源对自己和他人造成任何形式的伤害或损失;
6、 下载文件中如有侵权或不适当内容,请与我们联系,我们立即纠正。