

作品包括:
说明书1份,共32页,约10000字左右
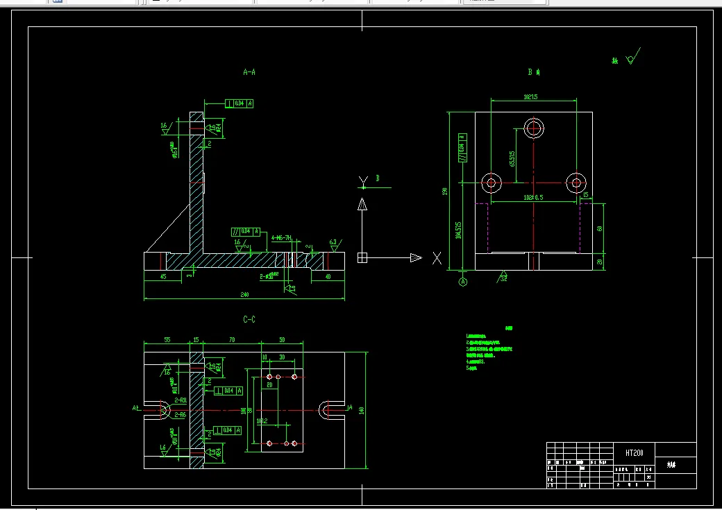
CAD版本本图纸,共4张
工序卡一张
过程卡一张

摘 要
泵是非常重要的一个零件,广泛应用于机械产品,如汽油泵,泵,液压泵,潜水泵,隔膜泵,动力转向泵,双作用叶片泵,它的作用是不能被其他成分所取代,所以和泵的选择是密切相关的泵盖作为一个设计的主题,来获取过程有关的大量书籍的过程中,最好的设计方案的综合比较与选择。液压泵盖是液压泵重要的零件之一,采用钻、扩、铣等传统工艺,不仅效率低,而且稳定性差,精度不易保证,制约了生产的发展。应用组合机床加工大批量零件,快捷高效,生产率高,是机械加工的发展方向。本设计主要包括液压泵盖的加工工艺过程的设计,应采取哪些措施存在的主要问题和液压泵盖的加工设计过程。具体确定毛坯制造形式获得,基面的选择,确定工艺路线,加工余量的确定,工序尺寸及空白,切削用量的确定。此外,这次还给液压泵盖进行了专用夹具设计,以及夹具操作的简要说明。在完成此次设计任务中得到老师及同学们的大力帮助,在此向他们表示衷心的感谢。
关键词:液压泵盖;工艺;夹具设计
目录
摘 要 II
ABSTRACT III
1 绪论 1
1.1本课题的研究内容和意义 1
1.2国内外的发展概况 1
1.3本课题应达到的要求 3
2零件的三维造型 5
3 零件的分析 10
3.1 零件的作用 10
3.2 零件的工艺分析 11
3.2.1 液压油泵盖加工工艺规程设计 11
3.2.2 液压油泵的泵盖加工的主要问题和工艺过程设计所应采取的相应措施 11
3.2.3 小结 20
4 专用夹具设计 21
4.1 夹具工序的选择 21
4.2 问题的提出 21
4.2.1 定位基准的选择 21
4.2.2 切削力与夹紧力计算 21
4.3 定位误差分析 22
4.4 夹具操作说明 23
5 结论与展望 24
6 致谢 25
7 参考文献 26
温馨提示:
1、题目前面的备注【字母数字编号】为本站整理分类的编号,与课题内容无关,请选题时忽视;
2、若题目上备注三维,则表示文件里包含三维源文件,由于三维组成零件数量较多,为保证预览截图的简洁性,本站将三维文件夹进行了打包。三维及CAD预览截图,均为本站电脑打开软件进行截图的,保证能够打开,下载原件超高清,下载后解压即可;
3、本站所有资源如无特殊说明,都需要本地电脑安装Office2007。图纸软件为AutoCAD,PROE,UG,SolidWorks,CATIA等;
4、本站所有图文资料仅供用户学习参考,不作为任何商用或其他用途;
5、本站不保证下载资源的准确性、安全性和完整性, 不包修改,不支持退换,同时也不承担用户因使用这些下载资源对自己和他人造成任何形式的伤害或损失;
6、 下载文件中如有侵权或不适当内容,请与我们联系,我们立即纠正。