

作品包括:
Word版说明书1份,共21页,约7800字
工序卡10张
工艺过程卡1张
CAD版本图纸,共4张
摘 要
随着机电一体化、自动化、人工智能化的大大发展,机械加工的应用也是千变万化,工艺制造的技术也
随之改变,本次的课题就是针对指定的某零件对其进行工艺的设计,通过对基本的零件的工艺设计来熟
悉某个零件从毛坯
制造到最终完成所需要经历的过程,在此熟悉机械加工工艺制造学的基本知识,并也熟悉目前机械制造
中常见的数控加工等应用。
本次对零件进行零件图上的分析,包括各表面的加工精度要求,确定好基本的零件的表面精度后,我们
来分析具体该如何加工这些表面,然后确定好基本的加工尺寸还有毛坯的余量尺寸等。确保合理性,形
成过程流程,形成过程卡和工序卡,以及处理每个工序的加工参数。然后选择其中的两个主要的工序作
为本次的工装夹具的设计任务,从部件的位置,夹具的分析,确定夹具的基本方案,绘制夹具的装配图
,夹具的零部件图。进行切削力和夹紧力的计算等,最后完成设计说明书。
关键词:工艺、工序、切削用量、夹紧、定位、误差。
目 录
摘 要 2
Design of jig for fork dialing process, hole drilling process of M22 and milling side 87 process 3
ABSTRCT 3
引 言 4
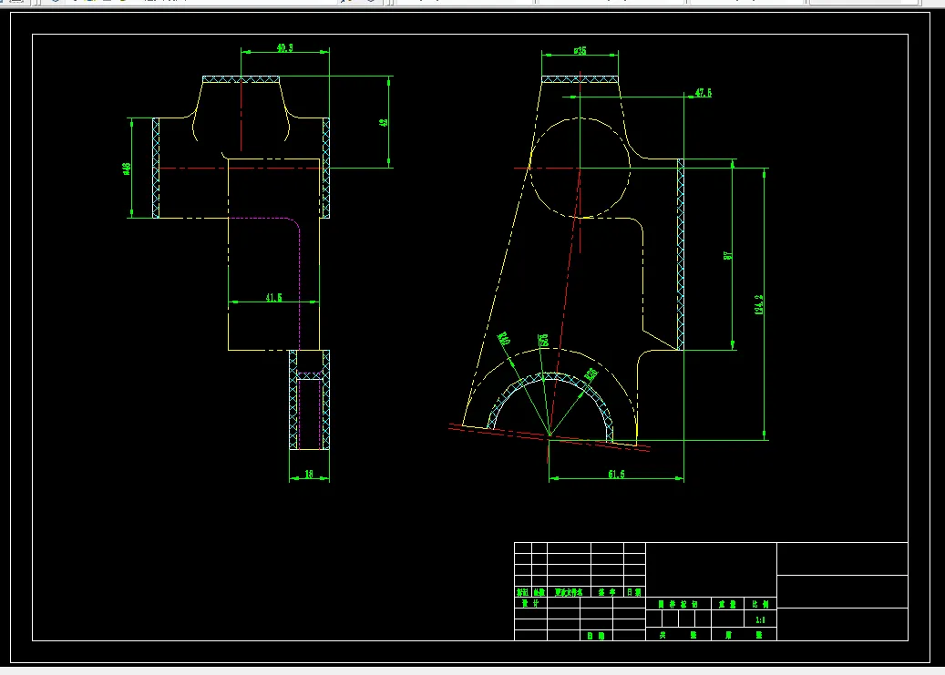
1 拨叉零件分析 5
1.1 拨叉零件分析 5
1.2 零件的工艺分析 6
1.3 零件的生产纲领 7
2 工艺过程设计 7
2.1 确定毛坯 7
2.2 机械加工余量的的确定 8
2.3 毛坯尺寸的确定 9
2.4 基准的选择 9
2.5 制定工艺路线 10
2.6 确定切削用量及基本工时 11
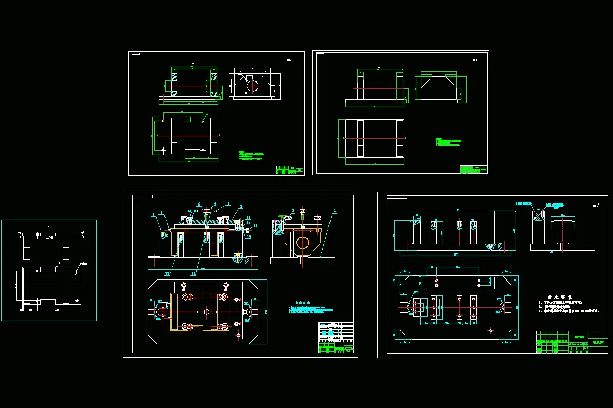
3 铣夹具设计 15
3.1 问题的提出 15
3.2 夹紧方案的设计 16
3.3 切削力及夹紧力计算 16
3.4 对刀块的设计 17
3.5 夹具体的设计 17
总 结 18
致 谢 19
参 考 文 献 20
温馨提示:
1、题目前面的备注【字母数字编号】为本站整理分类的编号,与课题内容无关,请选题时忽视;
2、若题目上备注三维,则表示文件里包含三维源文件,由于三维组成零件数量较多,为保证预览截图的简洁性,本站将三维文件夹进行了打包。三维及CAD预览截图,均为本站电脑打开软件进行截图的,保证能够打开,下载原件超高清,下载后解压即可;
3、本站所有资源如无特殊说明,都需要本地电脑安装Office2007。图纸软件为AutoCAD,PROE,UG,SolidWorks,CATIA等;
4、本站所有图文资料仅供用户学习参考,不作为任何商用或其他用途;
5、本站不保证下载资源的准确性、安全性和完整性, 不包修改,不支持退换,同时也不承担用户因使用这些下载资源对自己和他人造成任何形式的伤害或损失;
6、 下载文件中如有侵权或不适当内容,请与我们联系,我们立即纠正。