

作品包括:
说明书一份,共27页,约15000字
工序卡一张
过程卡一张
CAD版本图纸,共4张

摘要
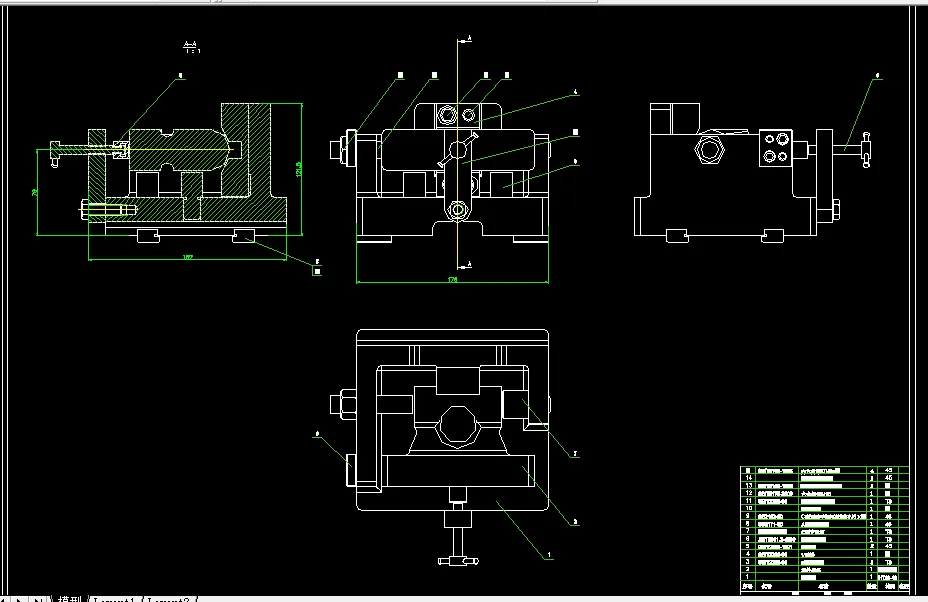
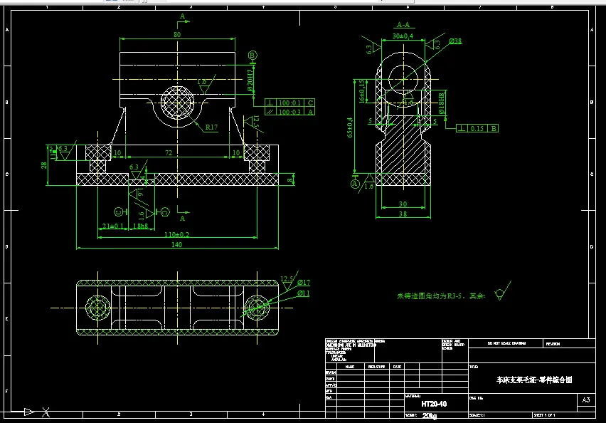
本设计上车床支架零件的加工工艺规程及一些工序的专用夹具设计,车床支架零件的主要加工表面是平面及孔系。一般来说,保证平面的加工精度要比保证孔系的加工精度容易。因此,本设计遵循先面后孔的原则。并将孔与平面的加工明确划分成粗加工和精加工阶段以保证孔系加工精度。主要加工工序安排是先加工出底平面,再以底平面定位加工出各个孔系。整个加工过程选用组合机床,夹具选用专用夹具,夹紧可靠,机构可以不必自锁。因此生产效率较高。适用于中批量,流水线上加工,能够满足设计要求。
设计的重点是夹具的设计,由于工件上的孔系都要以底面作为基准加工,故首先得加工出底面,为保证孔的位置和加工准确性我们一定要在加工底面的时间通过画线找出底面的加工余量。这样就可以更好的保证孔系的位置和加工精度。因此工序一中的专用夹具的制造显得尤为重,本次夹具设计中对工序一中铣削夹具进行了设计,提供了一套可使用于中批量生产的,经济性和实用性均良好的夹具设计方案。
关键词:车床,支架,工艺规程,夹具
目 录
内容摘要 ………………………………………………………………………………1
引 言 1
1 绪论 2
2 工艺设计 3
2.1机械加工工艺过程基本知识………………………………………………………………3
2.2机械加工工艺规程的内容 4
2.3题目来源 6
2.4零件的分析 6
2. 5工艺过程设计 ……………………………………………………………8
3 夹具设计 13
3.1 夹具的基本知识 13
3.2 定位原理及方案分析 16
3.3 夹具总体设计 18
3.4 夹具体的设计 20
4 总结 …………………………………………………………………………22
5 致谢 ………………………………………………………………………………23
参考文献 24
温馨提示:
1、题目前面的备注【字母数字编号】为本站整理分类的编号,与课题内容无关,请选题时忽视;
2、若题目上备注三维,则表示文件里包含三维源文件,由于三维组成零件数量较多,为保证预览截图的简洁性,本站将三维文件夹进行了打包。三维及CAD预览截图,均为本站电脑打开软件进行截图的,保证能够打开,下载原件超高清,下载后解压即可;
3、本站所有资源如无特殊说明,都需要本地电脑安装Office2007。图纸软件为AutoCAD,PROE,UG,SolidWorks,CATIA等;
4、本站所有图文资料仅供用户学习参考,不作为任何商用或其他用途;
5、本站不保证下载资源的准确性、安全性和完整性, 不包修改,不支持退换,同时也不承担用户因使用这些下载资源对自己和他人造成任何形式的伤害或损失;
6、 下载文件中如有侵权或不适当内容,请与我们联系,我们立即纠正。