

作品包括:
Word版说明书1份,共53页,约20000字
工序卡10张
工艺过程卡1张
CAD版本图纸,共5张


摘要
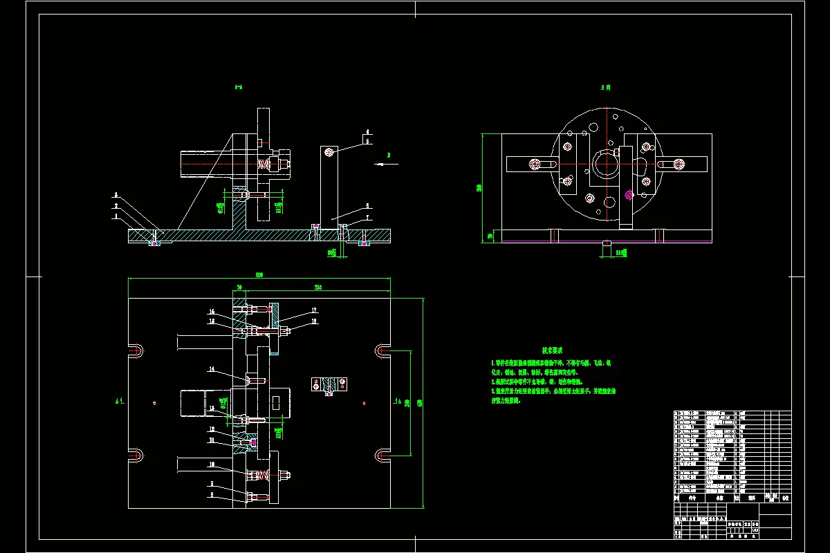
夹具是零件加工的夹紧装置,是加工零件的一种必不可少的装置。夹具利用率高,经济性好,对功能组件的使用和数量少。随着零件的尺寸变化,越来越多的夹具被淘汰了,因此,设计一套专用夹具是十分有必要的。在设计专用夹具时要考虑工件的定位方案,工件的夹紧方案和设计夹紧机构,夹具的其他组成部分,夹具的结构形式等。
本次设计的是对变矩器花键套零件的加工工艺分析及夹具设计。根所选的零件图,在掌握零件作用的基础上,对零件的工艺进行分析。对零件加工过程中铣宽15槽工序进行专用夹具设计。本夹具体是以保证加工精度,生产效率和便于工人操作为宗旨展开的设计。
设计之初我查阅相关数据及国内外关于机床夹具的文献,在看懂零件图的同时对零件的结构和工艺进行分析,明确粗基准和精基准的选择,确定零件的加工余量与毛坯的尺寸、从而确定零件的加工工艺过程、计算各工序的切削用量及工时。最终完成了本次设计所需的夹具。
关键词:专用夹具;定位方案;变矩器花键套;加工工艺;切削用量
目录
摘要I
Abstract II
1序言1
2零件的分析2
2.1零件的作用2
2.2零件的工艺分析2
3工艺规程设计4
3.1确定毛坯的制造形式4
3.2确定各工序的加工余量4
3.3制订工艺路线5
3.4确定切削用量以及时间定额6
4铣床夹具设计44
4.1问题的提出44
4.2定位基准的选择44
4.3定位元件的设计44
4.4定位误差分析45
4.5切削力的计算与夹紧力分析45
4.6夹具设计及操作简要说明46
总结47
致谢48
参考文献49
温馨提示:
1、题目前面的备注【字母数字编号】为本站整理分类的编号,与课题内容无关,请选题时忽视;
2、若题目上备注三维,则表示文件里包含三维源文件,由于三维组成零件数量较多,为保证预览截图的简洁性,本站将三维文件夹进行了打包。三维及CAD预览截图,均为本站电脑打开软件进行截图的,保证能够打开,下载原件超高清,下载后解压即可;
3、本站所有资源如无特殊说明,都需要本地电脑安装Office2007。图纸软件为AutoCAD,PROE,UG,SolidWorks,CATIA等;
4、本站所有图文资料仅供用户学习参考,不作为任何商用或其他用途;
5、本站不保证下载资源的准确性、安全性和完整性, 不包修改,不支持退换,同时也不承担用户因使用这些下载资源对自己和他人造成任何形式的伤害或损失;
6、 下载文件中如有侵权或不适当内容,请与我们联系,我们立即纠正。