

作品包括:
Word版说明书1份,共34页,约11000字
任务书一份
工序卡17张
工艺过程卡1张
CAD版本图纸,共8张

摘要
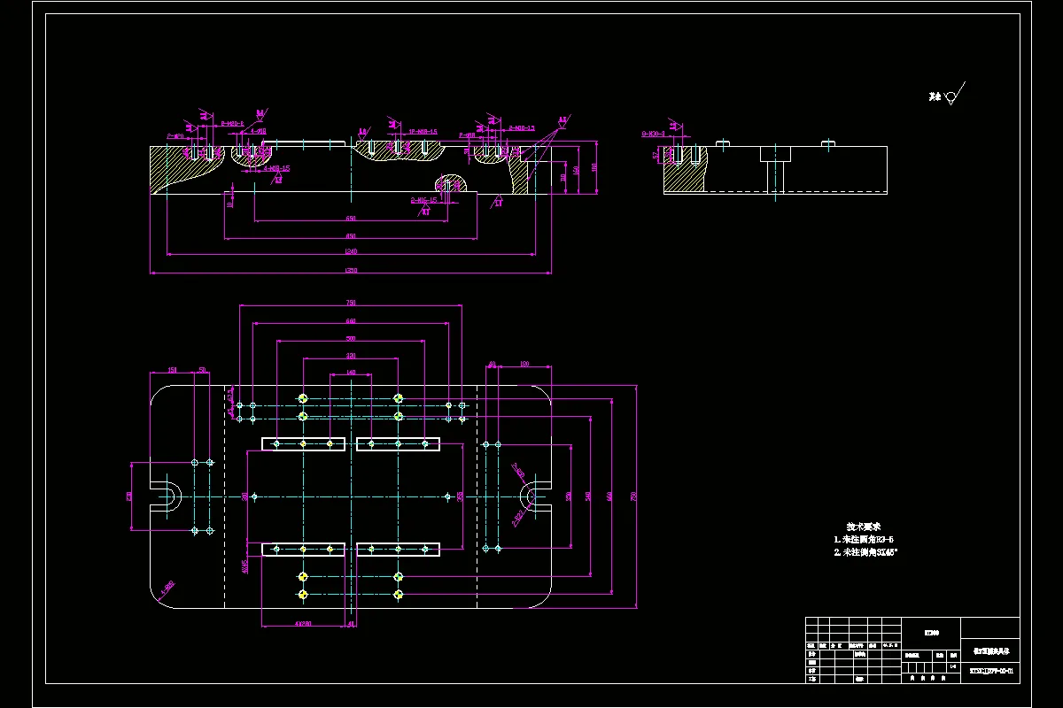
本次设计的零件是加工中心工作台,该零件是加工中心上重要的基础件,支承导轨以及的安装,为零件的加工提供保障,材料选择HT250灰铸铁。零件的尺寸以及精度将直接影响加工中心以及加工件的加工精度。因而,对其进行加工工艺以及夹具设计是非常有意义。
加工工艺设计主要内容包括:零件作用、材料、结构以及加工要求的分析;零件加工工艺路线的设计、生产类型和制造方式的确定等;确定主要切削用量,填写工艺卡和工序卡等。
本次设计的夹具完成工序45的加工,夹具设计的主要内容包括:通过对零件的分析,依据工序简图设计夹具的定位方案和夹紧方案、选择定位和夹紧元件;完成夹具体材料的选择以及结构设计;计算切削力和夹紧力;绘制夹具装配图、夹具体图以及非标零件图。
关键词:加工中心工作台;加工工艺;工序45;夹具
目录
摘要I
Abstract II
1绪论2
1.1机械加工工艺规程的作用2
1.2机床夹具的组成及分类2
2零件的分析4
2.1零件作用的分析4
2.2零件材料的分析4
2.3零件结构的分析4
2.4零件技术要求的分析4
3零件机械加工工艺规程的设计6
3.1零件制造方式的确定6
3.2零件生产类型的确定6
3.3零件加工基准的选择7
3.4零件加工工艺路线的选择、比较与确定8
3.5零件加工余量的确定及加工工艺装备的选择9
3.6切削用量及基本工时的计算9
4工序45专用夹具设计21
4.1定位方案的设计21
4.2定位元件的选择21
4.3夹紧方案的设计21
4.4夹紧元件的选择21
4.5夹具体的设计21
4.6铣削力和夹紧力的计算21
4.7对刀装置的确定22
4.8定位误差的分析22
参考文献24
致谢25
附录26
温馨提示:
1、题目前面的备注【字母数字编号】为本站整理分类的编号,与课题内容无关,请选题时忽视;
2、若题目上备注三维,则表示文件里包含三维源文件,由于三维组成零件数量较多,为保证预览截图的简洁性,本站将三维文件夹进行了打包。三维及CAD预览截图,均为本站电脑打开软件进行截图的,保证能够打开,下载原件超高清,下载后解压即可;
3、本站所有资源如无特殊说明,都需要本地电脑安装Office2007。图纸软件为AutoCAD,PROE,UG,SolidWorks,CATIA等;
4、本站所有图文资料仅供用户学习参考,不作为任何商用或其他用途;
5、本站不保证下载资源的准确性、安全性和完整性, 不包修改,不支持退换,同时也不承担用户因使用这些下载资源对自己和他人造成任何形式的伤害或损失;
6、 下载文件中如有侵权或不适当内容,请与我们联系,我们立即纠正。