

作品包括:
Word版说明书1份,共33页,约11000字
工序卡9张
工艺过程卡1张
CAD版本图纸,共10张

摘要
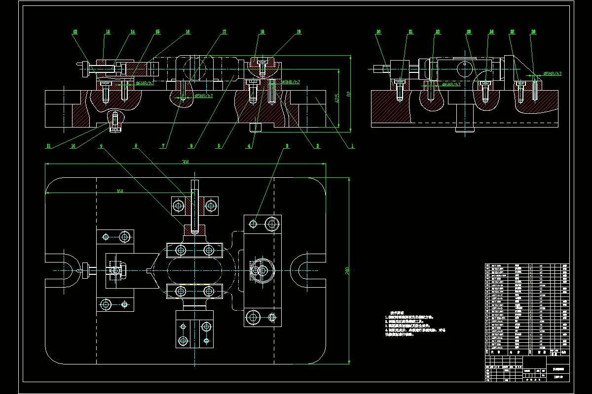
本次设计的工件是泵体,泵体是泵的重要零件之一,为泵正常工作提供密封的空间,给泵上的零部件提供支承。因此,对泵体零件的研究是非常重要的。本次主要对泵体加工工艺以及铣宽25两端面专用夹具进行设计。
加工工艺设计内容有:零件作用、组成表面、加工要求以及形位公差要求进行分析,选择了生产类型,绘制毛坯图,设计加工工艺路线,计算切削用量以及加工工时,填写工艺过程卡以及工序卡等。
专用夹具设计的内容有:对零件的加工表面及结构进行分析,依据定位原理设计定位方案选择定位元件;依据夹紧装置的设计要求,设计夹紧方案选择夹紧元件;设计机床连接体—夹具体;选择对刀装置—对刀块;计算切削力还有夹紧力等。最后,依据上面的设计,绘制了铣夹具装配图及非标零件图等。
关键词:泵体;加工工艺;铣宽25两端面;专用夹具;设计
目录
摘要I
Abstract II
第1章绪论1
1.1专用夹具定位方案及定位元件的概述1
1.2专用夹具夹紧装置设计原则的概述1
第2章分析零件、确定生产类型和制造方式2
2.1分析零件的作用2
2.2分析零件的材料2
2.3分析零件的表面构造2
2.4分析零件加工表面的表面粗糙度要求3
2.5分析零件的形位公差要求3
2.6确定零件的生产类型3
2.7确定零件的制造形式4
第3章设计零件的加工工艺规程6
3.1选择零件的加工基准6
3.2设计零件的加工工艺路线6
3.3选择加工零件的机床、夹具、刀具及量具8
3.4确定零件的机加工余量8
3.5确定切削用量、计算加工工时10
第4章设计铣宽25两端面专用夹具24
4.1设计定位方案,选择定位原件24
4.1.2定位方案的设计原则24
4.1.3定位元件的基本要求24
4.2设计夹紧方案,选择夹紧元件25
4.3设计夹具体25
4.4选择对刀块26
4.5计算铣削力及夹紧力26
4.6分析定位误差27
结论28
致谢29
参考文献30
温馨提示:
1、题目前面的备注【字母数字编号】为本站整理分类的编号,与课题内容无关,请选题时忽视;
2、若题目上备注三维,则表示文件里包含三维源文件,由于三维组成零件数量较多,为保证预览截图的简洁性,本站将三维文件夹进行了打包。三维及CAD预览截图,均为本站电脑打开软件进行截图的,保证能够打开,下载原件超高清,下载后解压即可;
3、本站所有资源如无特殊说明,都需要本地电脑安装Office2007。图纸软件为AutoCAD,PROE,UG,SolidWorks,CATIA等;
4、本站所有图文资料仅供用户学习参考,不作为任何商用或其他用途;
5、本站不保证下载资源的准确性、安全性和完整性, 不包修改,不支持退换,同时也不承担用户因使用这些下载资源对自己和他人造成任何形式的伤害或损失;
6、 下载文件中如有侵权或不适当内容,请与我们联系,我们立即纠正。