

作品包括:
Word版说明书1份,共34页
工序卡11张
工艺过程卡1张
CAD版本图纸,共6张

摘要
在经济飞速向前的当下,制造业快速发展的今天。非标零件的尺寸、结构也千变万化。以往设计的通用夹具,越来越多的面临淘汰。所以专用夹具的设计与生产越来越广泛。专用夹具的研究其主要内容有定位方案、夹紧方案的确定,定位元件、夹紧元件的选择等。
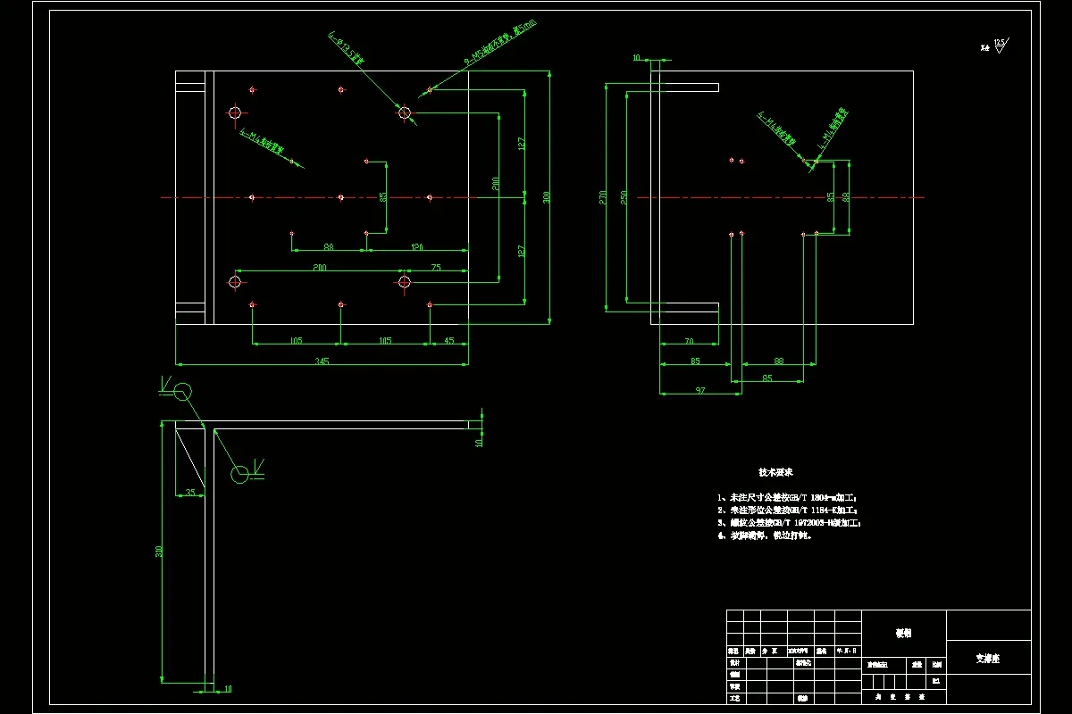
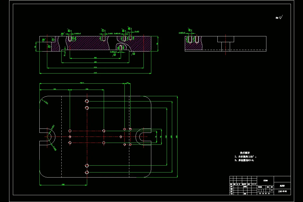
本次设计的题目是支撑座的加工工艺及夹具设计。研究的对象是支撑座。设计内容包括2个方面:1、工艺分析;2、钻零件主视图4-M4均布贯穿螺纹孔钻床专用夹具设计。支撑座是传动装置中重要的支承零件。支承回转或者其他工作元件,传递相应的转速、运动和动力。
工艺设计的内容有完成零件结构的分析,设计了2种加工零件的方法,选择了比较合适的一条,填写工艺卡。选择了零件的加工基准,选取了加工余量,计算出了相应的切削数据,填写了工序卡,完成了零件图还有毛坯图。
专用夹具的主要内容有:根据工序图上面的定位和夹紧简图,设计钻零件主视图4-M4均布贯穿螺纹孔钻床专用夹具,采用的机床是Z3040摇臂钻床。设计了定位和夹紧方案,选择了定位和夹紧元件。选择标准件钻套等等。最后,完成了装配图还有所有非标零件图的绘制,编写了设计说明书等。
关键词:支撑座、加工工艺、4-M4均布贯穿螺纹孔、钻床、专用夹具
目录
摘要I
Abstract II
第1章绪论1
1.1机床夹具的组成1
1.2机床夹具的分类1
1.3机床夹具的发展趋势2
1.4夹具设计的特点和基本要求3
1.4.1夹具设计的特点3
1.4.2夹具设计的基本要求3
第2章零件的作用、组成表面及技术要求4
2.1零件的作用4
2.2零件的组成表面4
2.3零件的技术要求5
第3章零件的工艺分析及设计6
3.1确定零件的生产类型及毛坯的制造形式6
3.1.1确定零件的生产类型6
3.1.2确定毛坯的制造形式6
3.2基准的选择与确定8
3.2.1粗基准的选择与确定8
3.2.2精基准的选择与确定8
3.3加工工艺路线的选择,比较与确定9
3.4加工设备及加工装备的选择10
3.5确定加工余量11
3.6计算切削用量及加工工时12
第4章专用夹具的设计22
4.1定位方案及装置的确定22
4.1.1设计定位方案应满足的要求22
4.1.2定位方案的确定22
4.1.3定位元件的确定22
4.2夹紧方案及装置的确定23
4.2.1设计夹紧装置应遵循的原则23
4.2.2夹紧装置满足的基本要求23
4.2.3夹紧方案的确定24
4.2.4夹紧元件的确定24
4.3夹具体的设计24
4.4对刀装置—钻套的选择25
4.5计算钻削力25
4.6计算夹紧力26
4.7分析与计算定位误差26
结论28
致谢29
参考文献30
温馨提示:
1、题目前面的备注【字母数字编号】为本站整理分类的编号,与课题内容无关,请选题时忽视;
2、若题目上备注三维,则表示文件里包含三维源文件,由于三维组成零件数量较多,为保证预览截图的简洁性,本站将三维文件夹进行了打包。三维及CAD预览截图,均为本站电脑打开软件进行截图的,保证能够打开,下载原件超高清,下载后解压即可;
3、本站所有资源如无特殊说明,都需要本地电脑安装Office2007。图纸软件为AutoCAD,PROE,UG,SolidWorks,CATIA等;
4、本站所有图文资料仅供用户学习参考,不作为任何商用或其他用途;
5、本站不保证下载资源的准确性、安全性和完整性, 不包修改,不支持退换,同时也不承担用户因使用这些下载资源对自己和他人造成任何形式的伤害或损失;
6、 下载文件中如有侵权或不适当内容,请与我们联系,我们立即纠正。