

作品包括:
Word版说明书1份,共40页,约13000字
任务书一份
工序卡1张
工艺过程卡1张
CAD版本图纸,共6张

摘要
零件的加工工艺编制,在机械加工中占有非常重要的地位,零件工艺编制得合不合理,这直接关系到零件最终能否达到质量要求;夹具的设计也是不可缺少的一部分,它关系到能否提高其加工效率的问题。因此这两者在机械加工行业中是至关重要的环节。
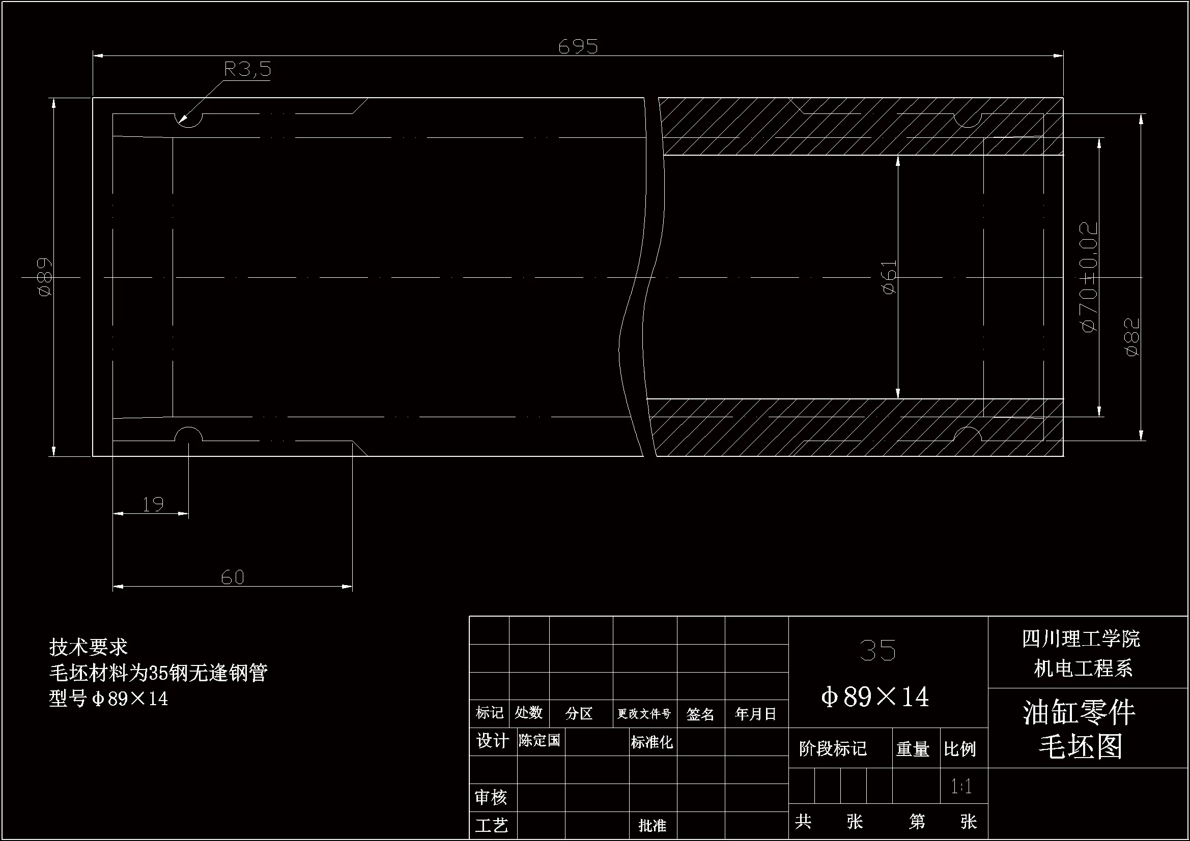
套筒零件的主要加工表面为孔和外圆表面。外圆表面加工根据精度要要求可选择车削和磨削。孔加工方法的选择比较复杂,需要考虑零件的结构特点、孔径大小、长径比、精度和粗糙度要求以及生产规模等各种因素。对于精度要求较高的孔往往还要采用几种不同的方法顺次进行加工。本次设计的油缸,为保证孔的精度和表面质量将先后经过粗镗、半精镗、精镗和滚压等四道工序加工。
在机床上对零件进行机械加工时,为保证工件加工精度,首先要保证工件在机床上占有正确的位置,然后通过夹紧机构使工件在正确位置上固定不动,这一任务就是由机床夹具完成。对于单件、小批量生产,应尽量使用通用夹具,这样可以降低工件的生产成本。但是由于通用夹具适用各种工件的装夹,所以夹紧时往往比较费时间,并且操作复杂,生产效率低,也难以保证加工精度,为此需设计专用夹具。
关键词:工艺设计、基准选择、切削用量、定位误差
目录
中文摘要 Ⅰ
英文摘要 Ⅱ
概述 1
第一章 零件的分析 3
1.1 零件的作用 3
1.2 零件的工艺分析 3
1.2.1 加工方法的选择..............................................................................................3
1.2.2 保证套筒表面位置精度的方法.........................................................................3
1.2.3 防止套筒变形的工艺措施................................................................................4
第二章 工艺规程的设计 5
2.1 确定毛坯的制造形式 5
2.2 基准的选择 5
2.2.1 粗基准的选择 5
2.2.2 精基准的选择 5
2.3 制定工艺路线 5
2.4 机械加工余量、工序尺寸及毛坯的确定 6
2.5 确定切削用量及基本工时 8
2.5.1工序1 配料(35钢) 8
2.5.2工序2 车 8
2.5.3工序3 深孔推镗 14
2.5.4工序4 滚压孔 16
2.5.5工序5 车 16
2.5.6 工序6 检查 19
第三章 夹具设计......................................................................................................20
3.1 概述....................................................................................................................20
3.2 镗床夹具设计要则...............................................................................................20
3.3 夹具设计.............................................................................................................20
3.3.1 问题的提出. ................................................... ............................................20
3.3.2 镗套的结构.... ................................................... ........................................ 21
3.3.3 镗套的布置形式.... ......................................... ............................................21
3.3.4 镗杆............................................................................................................22
3.3.5 支架与底座... ................................................................................................. ........23
3.3.6 镗套与镗杆以及衬套等的配合选择...............................................................23
3.3.7 定位机构设计..............................................................................................28
3.3.8 夹紧机构的设计...........................................................................................28
3.4 夹具工作原理及动作说明...................................................................................25
第四章 结论 26
设计体会……………………………………………………………………………. 27
参考文献 28
致谢 29
附录 30
温馨提示:
1、题目前面的备注【字母数字编号】为本站整理分类的编号,与课题内容无关,请选题时忽视;
2、若题目上备注三维,则表示文件里包含三维源文件,由于三维组成零件数量较多,为保证预览截图的简洁性,本站将三维文件夹进行了打包。三维及CAD预览截图,均为本站电脑打开软件进行截图的,保证能够打开,下载原件超高清,下载后解压即可;
3、本站所有资源如无特殊说明,都需要本地电脑安装Office2007。图纸软件为AutoCAD,PROE,UG,SolidWorks,CATIA等;
4、本站所有图文资料仅供用户学习参考,不作为任何商用或其他用途;
5、本站不保证下载资源的准确性、安全性和完整性, 不包修改,不支持退换,同时也不承担用户因使用这些下载资源对自己和他人造成任何形式的伤害或损失;
6、 下载文件中如有侵权或不适当内容,请与我们联系,我们立即纠正。