

作品包括:
Word版说明书1份,共42页,约15000字
综合工艺卡1张
CAD版本图纸,共4张

摘 要
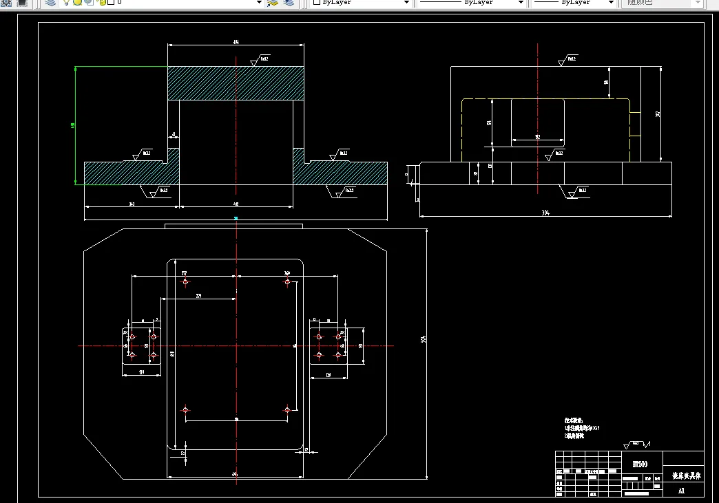
本次设计的零件是砂轮头架,该零件是砂轮机构上重要的基础件,支承其他零件的的安装,为零件的加工提供保障,材料选择HT200。零件的尺寸以及精度将直接影响加工中心以及加工件的加工精度。因而,对其进行加工工艺以及夹具设计是非常有意义。
加工工艺设计主要内容包括:零件作用、材料、结构以及加工要求的分析;零件加工工艺路线的设计、生产类型和制造方式的确定等;本次设计的夹具完成粗铣第一个工序和钻孔夹具的设计;计算加工砂轮头架所需要的力和夹紧力;绘制夹具装配图、夹具体图以及非标零件图。
关键词:砂轮头架;加工工艺;工序;专用夹具
目 录
摘 要 II
Abstract III
1 绪论 1
1.1 研究意义 1
1.2 机械加工工艺规程的作用 1
1.3 机床夹具的组成及分类 2
1.3.1 机床夹具的组成 2
1.3.2 机床夹具的分类 2
1.4 本课题要求 3
2 砂轮头架的图样分析 4
2.1 砂轮头架的作用 4
2.2 砂轮头架的图样分析 4
2.3 工艺分析 5
3 工艺规程设计 7
3.1 确定毛坯的制造形式 7
3.2 定位基准的选择 8
3.2.1 粗基准的选择 8
3.2.2 精基准的选择 8
3.3 拟定工艺路线 9
3.3.1 划分加工阶段 9
3.3.2 安排加工顺序 9
3.3.3 制订工艺路线 9
3.3.4 工艺方案的分析 11
3.4 确定机械加工余量及工序尺寸 11
3.5 确定加工砂轮头架所需要的用量及基本工时 12
4 设计镗2-Φ35H8孔夹具 28
4.1研究原始质料 28
4.2定位、夹紧方案的选择 28
4.3切削力及夹紧力的计算 28
4.4 误差分析与计算 31
4.5夹具设计 32
总结 33
致谢 35
参考文献 36
温馨提示:
1、题目前面的备注【字母数字编号】为本站整理分类的编号,与课题内容无关,请选题时忽视;
2、若题目上备注三维,则表示文件里包含三维源文件,由于三维组成零件数量较多,为保证预览截图的简洁性,本站将三维文件夹进行了打包。三维及CAD预览截图,均为本站电脑打开软件进行截图的,保证能够打开,下载原件超高清,下载后解压即可;
3、本站所有资源如无特殊说明,都需要本地电脑安装Office2007。图纸软件为AutoCAD,PROE,UG,SolidWorks,CATIA等;
4、本站所有图文资料仅供用户学习参考,不作为任何商用或其他用途;
5、本站不保证下载资源的准确性、安全性和完整性, 不包修改,不支持退换,同时也不承担用户因使用这些下载资源对自己和他人造成任何形式的伤害或损失;
6、 下载文件中如有侵权或不适当内容,请与我们联系,我们立即纠正。