

作品包括:
Word版说明书1份,共42页,14000字
工序卡11张
工艺过程卡1张
检验卡11张
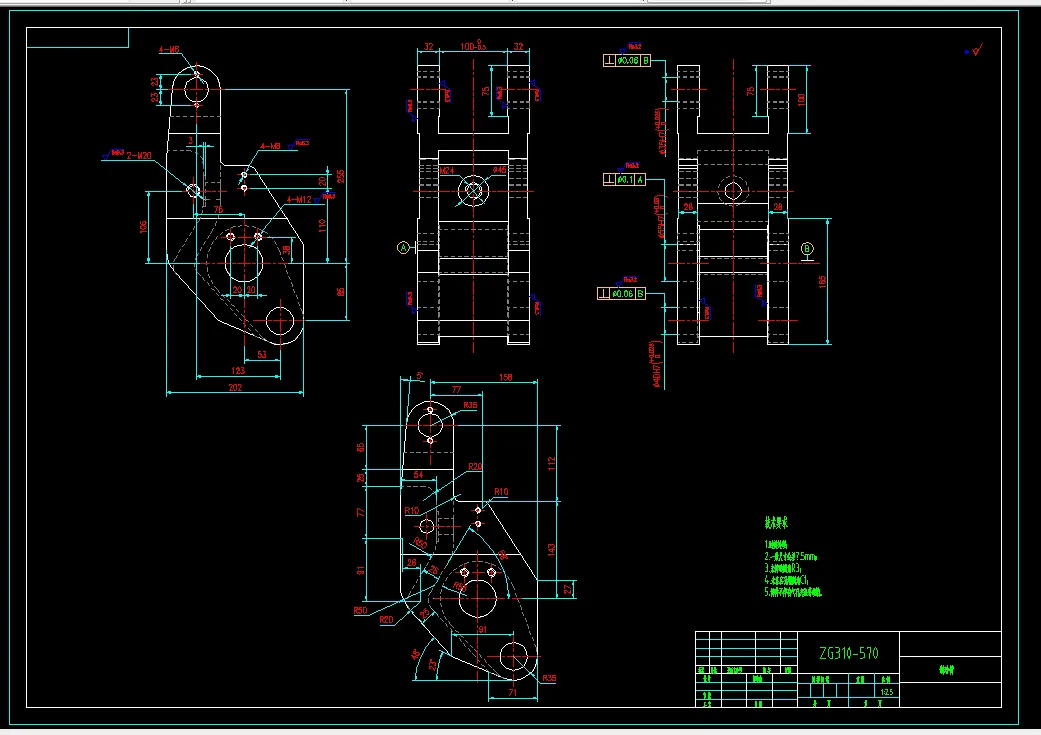
CAD版本图纸,共8张
Creo三维图1套
STP三维通用格式1份

摘 要
随着机械加工技术和机床专用夹具的进步和发展,高效、经济、高精度的机械加工工艺和精密、高效的机床专用夹具的设计要求越来越高,以前的工艺安排只能适用于过去的加工技术,随着加工技术和方法的不断更新,新的加工工艺和机床夹具制造越来越得到人们的重视。关于零件机械加工工艺规程和专用机床夹具的知识复杂多样,本文对液压钳盘制动器制动臂零件的机械加工工艺规程和专用机床夹具的设计进行了研究,从理论到实践,介绍了制动臂零件的机械加工工艺规程和专用夹具的设计过程。
本文首先对液压钳盘制动器制动臂零件的加工工艺性进行了分析,包括需要加工的表面、各个尺寸的尺寸误差和公差、各加工平面之间的几何公差。其次,确定了齿轮轴零件毛坯的制造方法,并计算了毛坯的尺寸及公差、齿轮轴零件机械加工工序的安排,“基准先行”“先面后孔”“粗精分离”“工序集中”“工序分离”等、各平面的加工方法、定位基准的选择,包括粗基准和精基准的选择。接着对工序的尺寸进行了计算,包括各道工序的基本尺寸、尺寸偏差、尺寸公差等,对各道工序的切削三要素进行计算,切削速度、背吃刀量、进给速度以及基本时间,并且编制了液压钳盘制动器制动臂零件机械加工工艺过程卡和工序卡片。接着对无法使用通用夹具工序的专用夹具进行了方案的设计,定位元件设计、夹紧机构设计、刀具引导对定元件、夹具体设计,计算了夹具的定位误差、切削力和夹紧力等。最后使用CREO三维软件对制动臂和专用夹具进行三维造型模拟,验证方案的合理性后,采用AutoCAD二维软件绘制制动臂零件图、专用夹具装配图和夹具重要零件图,撰写了设计说明书。
关键词:工艺规程;定位;机械加工;夹具设计
目 录
1 绪 论 1
1.1 机械制造的重要性 1
1.2 课题的背景 1
1.3 课题的研究方法 2
2 零件的工艺规程设计 3
2.1 零件的工艺分析及生产类型的确定 3
2.1.1 零件的作用 3
2.1.2 零件的工艺分析 3
2.1.3 零件的生产类型 4
2.2 选择毛坯,确定毛坯尺寸,设计毛坯图 5
2.2.1 选择毛坯 5
2.2.2 确定机械加工余量、毛坯尺寸和公差 6
2.2.3 设计毛坯图 8
2.3 选择加工方法,制定工艺路线 8
2.3.1 定位基准的选择 8
2.3.2 零件表面加工方法的选择 9
2.3.3 制定工艺路线 9
2.3.4 工序设计 9
2.4 确定切削用量及基本时间 11
2.4.1 计算工序时间 11
3 专用钻孔夹具设计 20
3.1 接受设计任务、明确加工要求 20
3.2 确定定位方案、选择定位元件 20
3.3 确定夹紧方案、设计夹紧机构 21
3.4 确定定位元件 23
3.5 确定导向方案、选择导向元件 23
3.6 夹具体的设计 24
3.7 夹具精度分析 25
3.8 计算切削力和夹紧力 25
3.9 绘制夹具装配图 26
4 专用铣夹具设计 27
4.1 接受设计任务、明确加工要求 27
4.2 确定定位方案、选择定位元件 27
4.3 确定夹紧方案、设计夹紧机构 28
4.4 确定定位元件 28
4.5 确定导向方案、选择导向元件 29
4.6 夹具体的设计 29
4.7 夹具精度分析 30
4.8 计算切削力和夹紧力 30
4.9 绘制夹具装配图 32
5 结 论 33
附 录 34
参考文献 35
致 谢 36
温馨提示:
1、题目前面的备注【字母数字编号】为本站整理分类的编号,与课题内容无关,请选题时忽视;
2、若题目上备注三维,则表示文件里包含三维源文件,由于三维组成零件数量较多,为保证预览截图的简洁性,本站将三维文件夹进行了打包。三维及CAD预览截图,均为本站电脑打开软件进行截图的,保证能够打开,下载原件超高清,下载后解压即可;
3、本站所有资源如无特殊说明,都需要本地电脑安装Office2007。图纸软件为AutoCAD,PROE,UG,SolidWorks,CATIA等;
4、本站所有图文资料仅供用户学习参考,不作为任何商用或其他用途;
5、本站不保证下载资源的准确性、安全性和完整性, 不包修改,不支持退换,同时也不承担用户因使用这些下载资源对自己和他人造成任何形式的伤害或损失;
6、 下载文件中如有侵权或不适当内容,请与我们联系,我们立即纠正。