

作品包括:
Word版说明书1份,共50页,约17000字
工序卡16张
工艺过程卡1张
CAD版本图纸,共8张
摘要
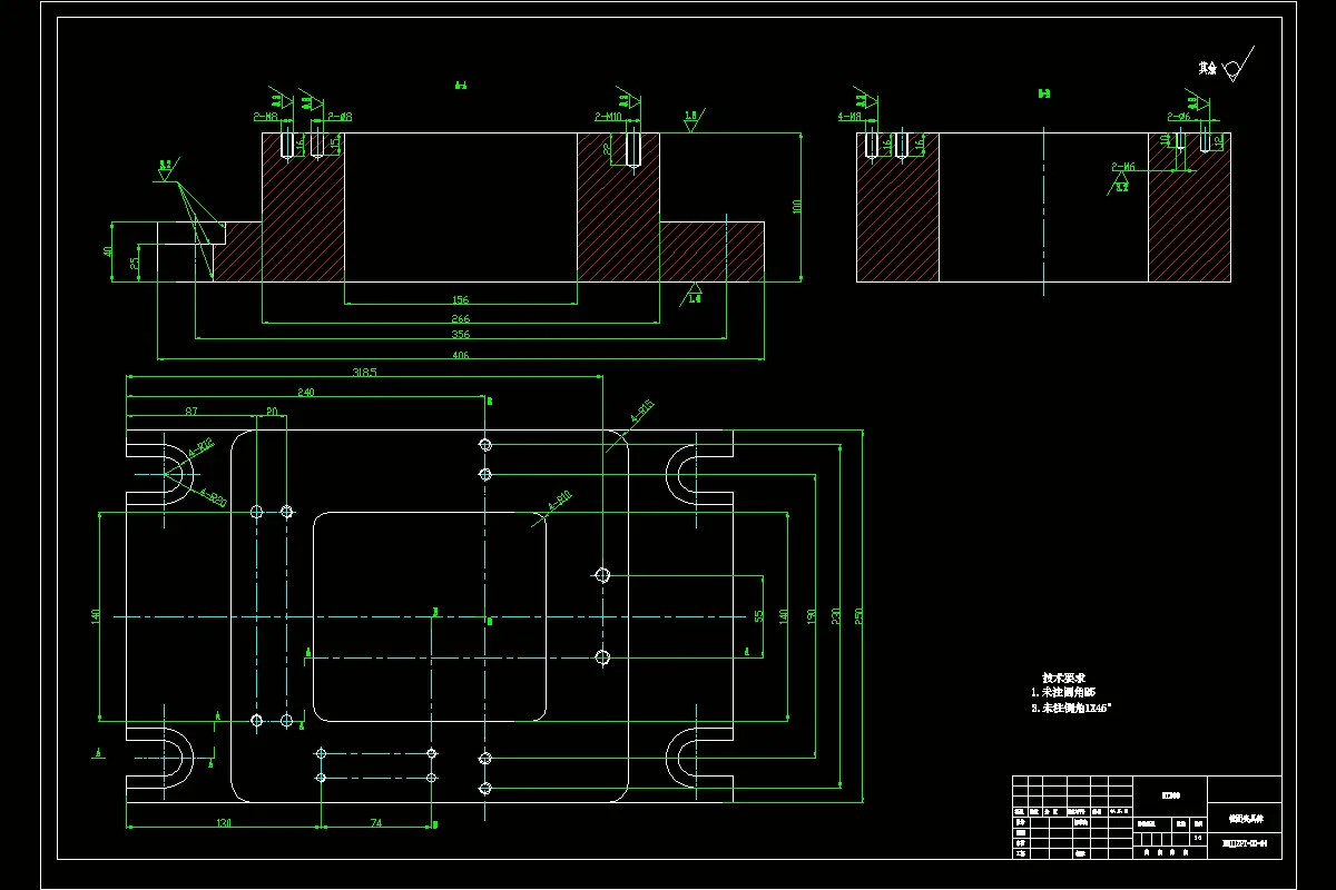
现代化的机械行业结构变化很大,对于加工单位来说设计工艺水平对他们的影响是非常关键的。夹具行业的发展是非常快的,里面设计的是X5032立式铣床拨叉壳体加工工艺规程及工装夹具设计。通过对零件图的分析决定设计加工2面铣床专用夹具。加工Ф30h7孔钻床专用夹具,其加工铣床为X52K,加工钻床为Z3040。
一开始阐述了零件,之后将毛坯的加工形式确定下来,将工艺路线定下来,还有将机械加工余量,切削余量等等都定下来。绘制零件图和毛坯图。设计专用夹具的时候,将定位方案,还有夹紧方案都定下来,确定定位零部件,夹紧零部件,确定下导向装置等等。计算切削力和夹紧力。通过设计整个装置都是非常便利的,夹紧要求完全可以实现。
关键词:X5032立式铣床、拨叉壳体、工艺规程、2面、Ф30h7孔
温馨提示:
1、题目前面的备注【字母数字编号】为本站整理分类的编号,与课题内容无关,请选题时忽视;
2、若题目上备注三维,则表示文件里包含三维源文件,由于三维组成零件数量较多,为保证预览截图的简洁性,本站将三维文件夹进行了打包。三维及CAD预览截图,均为本站电脑打开软件进行截图的,保证能够打开,下载原件超高清,下载后解压即可;
3、本站所有资源如无特殊说明,都需要本地电脑安装Office2007。图纸软件为AutoCAD,PROE,UG,SolidWorks,CATIA等;
4、本站所有图文资料仅供用户学习参考,不作为任何商用或其他用途;
5、本站不保证下载资源的准确性、安全性和完整性, 不包修改,不支持退换,同时也不承担用户因使用这些下载资源对自己和他人造成任何形式的伤害或损失;
6、 下载文件中如有侵权或不适当内容,请与我们联系,我们立即纠正。