

作品包括:
说明书1份,共32页,约9900字左右
CAD版本本图纸,共4张
SW三维图一份
目 录
摘要 ………………………………………………………………………………1
1 引言 …………………………………………………………………………… 1
1.1 课题的提出 ………………………………………………………………… 3
1.2 课题的主要内容 …………………………………………………………… 4
1.3 课题的构思 ………………………………………………………………… 6
1.4 本人所完成的工作量 ……………………………………………………… 8
2 零件的工艺设计 ……………………………………………………………… 10
2.1零件的功用及工艺分析……………………………………………………… 12
2.2齿轮箱加工的主要问题和工艺过程设计所应采取的相应措施…………… 17
2.3齿轮箱加工定位基准的选择………………………………………………… 19
2.4齿轮箱加工主要工序安排…………………………………………………… 20
2.5机械加工余量、工序尺寸及毛坯尺寸的确定……………………………… 21
2.6确定切削用量及基本工时(机动时间)…………………………………… 22
3 镗孔夹具设计…………………………………………………………………… 23
3.1定位基准的选择…………………………………………………………………25
3.2定位元件的设计…………………………………………………………………26
3.3切削力及夹紧力的计算…………………………………………………………28
3.4夹紧装置设计……………………………………………………………………29
3.5夹具设计及操作的简要说明……………………………………………………30
总结与体会 ………………………………………………………………………… 31
致谢词 ……………………………………………………………………………… 32
参考文献………………………………………………………………………………33
摘 要
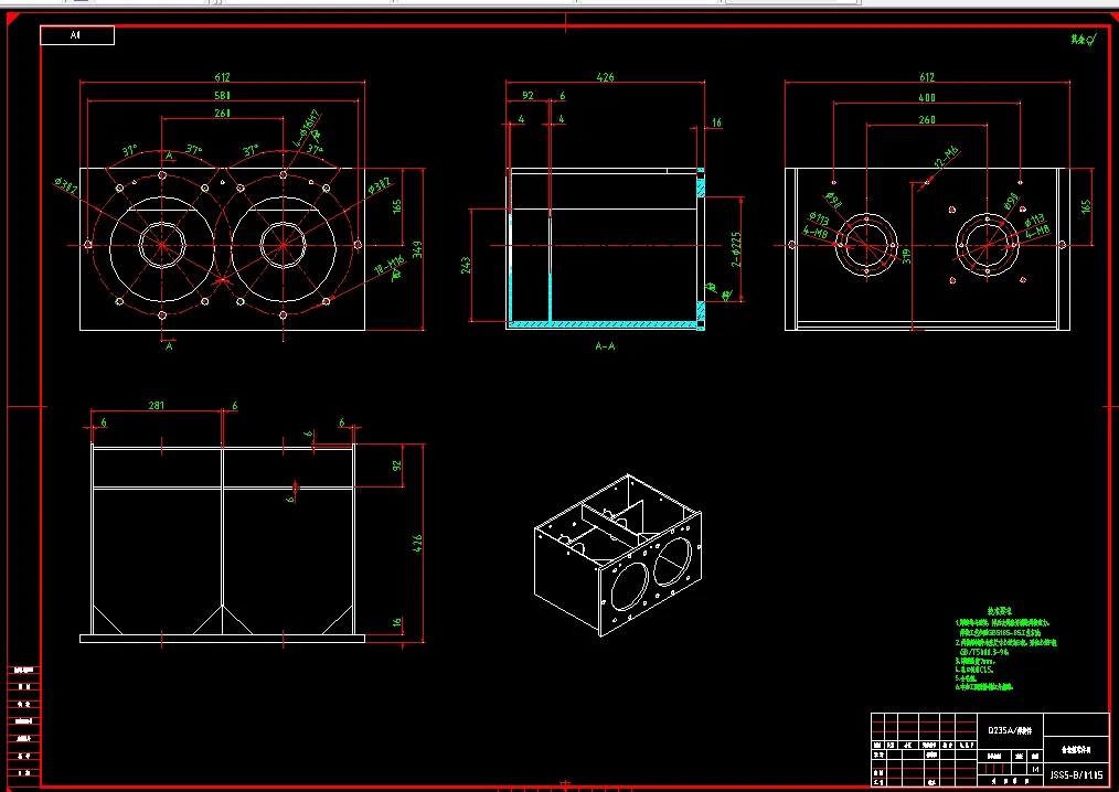
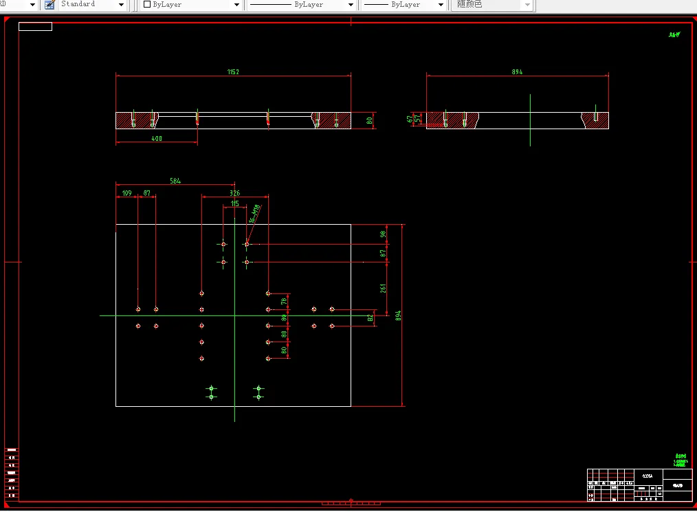
齿轮箱箱体是齿轮箱的重要零件,其作用是支承传动轴,保证各轴之间的中心距及平行度,并保证齿轮箱体部件与其他部件正确安装。本论文主要论述齿轮箱箱箱体机械加工工艺专用夹具的设计。在对齿轮箱齿轮箱体及工艺分析的基础上,合理地选择了毛坯,确定了加工方法,拟定了零件的工艺路线。根据加工过程中的技术要求编写了工艺过程卡和工序卡。然后根据零件技术要求,进行专用夹具的设计,以确保设计出的专用夹具合理经济。
【关键词】齿轮箱、工艺路线、夹具
温馨提示:
1、题目前面的备注【字母数字编号】为本站整理分类的编号,与课题内容无关,请选题时忽视;
2、若题目上备注三维,则表示文件里包含三维源文件,由于三维组成零件数量较多,为保证预览截图的简洁性,本站将三维文件夹进行了打包。三维及CAD预览截图,均为本站电脑打开软件进行截图的,保证能够打开,下载原件超高清,下载后解压即可;
3、本站所有资源如无特殊说明,都需要本地电脑安装Office2007。图纸软件为AutoCAD,PROE,UG,SolidWorks,CATIA等;
4、本站所有图文资料仅供用户学习参考,不作为任何商用或其他用途;
5、本站不保证下载资源的准确性、安全性和完整性, 不包修改,不支持退换,同时也不承担用户因使用这些下载资源对自己和他人造成任何形式的伤害或损失;
6、 下载文件中如有侵权或不适当内容,请与我们联系,我们立即纠正。