

作品包括:
说明书1份,共38页,约15000字左右
CAD版本本图纸,共4张
工序卡一张
过程卡一张
摘 要
在生产过程中,使生产对象(原材料,毛坯,零件或总成等)的质和量的状态发生直接变化的过程叫工艺过程,如毛坯制造,机械加工,热处理,装配等都称之为工艺过程。在制定工艺过程中,要确定各工序的加工顺序和该工序需要的工步,加工该工序的机车及机床的进给量,切削深度,主轴转速和切削速度,该工序的夹具,刀具及量具,还有走刀次数和走刀长度,最后计算该工序的基本时间,辅助时间和工作地服务时间。
关键词 工序,工步,加工余量
目 录
摘 要 I
ABSTRACT II
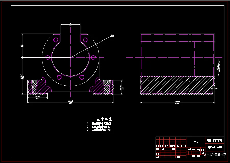
第一章 AVC1200螺母座加工工艺 1
1.1 AVC1200螺母座工艺分析 1
1.2 AVC1200螺母座的工艺要求 1
1.3 确定毛坯的制造形式 2
1.4 确定定位基准 2
1.4.1 粗基准的选择 2
1.4.2 精基准的选择 2
1.5 确定个加工表面加工方案 3
1.5.1 在选择各表面及孔的加工方法时,要综合考虑以下因素 3
1.5.2 零件表面加工方法的选择 4
1.6 工艺路线的制定 4
1.6.1 工序的合理组合 4
1.6.2 工序的集中与分散 5
1.6.3 加工阶段的划分 5
1.6.4 加工工艺路线 6
1.7 AVC1200螺母座的偏差,加工余量,工序尺寸及毛坯尺寸的确定 7
1.7.1 毛坯的结构工艺要求 7
1.7.2 AVC1200螺母座的偏差及加工余量 7
1.8 确定切削用量及基本工时 10
1.8.1 粗铣顶面 10
1.8.2 粗铣、精铣底面 11
1.8.3 粗铣、精铣左右两侧面 14
1.8.4 粗铣、精铣前后端面 16
1.8.5 粗铣55槽两侧面 18
1.8.6 粗镗、半精镗孔: 20
1.8.7 钻底面孔 22
1.8.8 钻前端面6-Φ10深25螺纹孔 25
第二章 夹具设计 27
2.1 问题的提出 27
2.2 夹具设计 27
2.2.1 定位基准的选择 27
2.2.2 切削力和夹紧力计算 27
2.2.3 定位误差分析 28
2.2.4 夹具操作的简要说明 29
结 论 30
参 考 文 献 31
致 谢 32
温馨提示:
1、题目前面的备注【字母数字编号】为本站整理分类的编号,与课题内容无关,请选题时忽视;
2、若题目上备注三维,则表示文件里包含三维源文件,由于三维组成零件数量较多,为保证预览截图的简洁性,本站将三维文件夹进行了打包。三维及CAD预览截图,均为本站电脑打开软件进行截图的,保证能够打开,下载原件超高清,下载后解压即可;
3、本站所有资源如无特殊说明,都需要本地电脑安装Office2007。图纸软件为AutoCAD,PROE,UG,SolidWorks,CATIA等;
4、本站所有图文资料仅供用户学习参考,不作为任何商用或其他用途;
5、本站不保证下载资源的准确性、安全性和完整性, 不包修改,不支持退换,同时也不承担用户因使用这些下载资源对自己和他人造成任何形式的伤害或损失;
6、 下载文件中如有侵权或不适当内容,请与我们联系,我们立即纠正。