

作品包括:
说明书1份,共31页,约12000字左右
CAD版本本图纸,共7张
工序卡一张
过程卡一张
摘要
车床小刀架是车床中的一个重要部件,有了它车床才能够对零件进行切削。
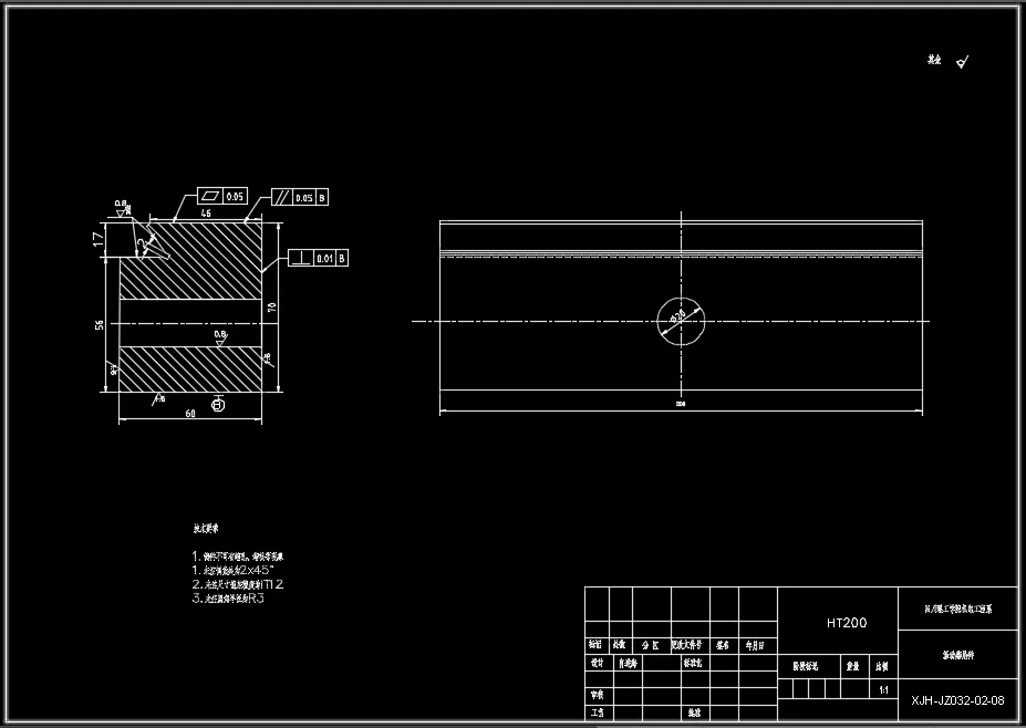
本次设计为车床小刀架加工工艺上的一个镗孔夹具(?32H7)。在设计夹具时,主要以燕尾槽进行定位。利用螺栓与螺母进行夹紧操作。在设计该夹具时,根据零件的形状与尺寸来进行对夹具的结构设计。最后通过校核计算,来校核该夹具的强度是否满足要求。
该夹具的结构及操作简单,能大大提高劳动生产率。
关键词:车床小刀架,机械加工工艺,夹具。
目 录
摘 要 I
ABSTRACT II
第1章 绪论 1
1.1 定位装置 1
1.2 夹紧装置 1
1.3 对刀-引导装置 1
1.4 其他元件及装置 1
1.5 夹紧体 1
第2章 零件的分析 2
2.1 零件的作用 2
2.2 零件的工艺分析 2
第3章 零件的规程设计 3
3.1 确定毛坯的制造形式 3
3.2 基面的选择 3
3.3 基准的选择 3
3.3.1.粗基准的选择 3
3.3.2精基准的选择 3
3.4制订工艺路线 3
第4章 车床小刀架工艺过程 4
第5章 机械加工余量、工序尺寸及毛坯尺寸的确定 5
第6章 确定切削和用量及基本工时 6
6.1 工序1划线 6
6.2 工序2铣 6
6.3 工序3铣 11
6.4 工序4钳 12
6.5 工序5磨 12
6.6 工序6镗 13
6.7 工序7钻 15
6.8 工序8划线 20
6.9 工序9钻 20
6.10 工序10钳 25
6.11 工序11检 25
第7章 夹具设计 26
7.1 镗模导向装置的设计 26
7.2 夹具设计 27
7.3 夹紧元件强度校核 28
7.4 标准件的选用 29
7.5 夹具设计及操作简要说明 29
结论 30
致谢 31
参考文献 32
温馨提示:
1、题目前面的备注【字母数字编号】为本站整理分类的编号,与课题内容无关,请选题时忽视;
2、若题目上备注三维,则表示文件里包含三维源文件,由于三维组成零件数量较多,为保证预览截图的简洁性,本站将三维文件夹进行了打包。三维及CAD预览截图,均为本站电脑打开软件进行截图的,保证能够打开,下载原件超高清,下载后解压即可;
3、本站所有资源如无特殊说明,都需要本地电脑安装Office2007。图纸软件为AutoCAD,PROE,UG,SolidWorks,CATIA等;
4、本站所有图文资料仅供用户学习参考,不作为任何商用或其他用途;
5、本站不保证下载资源的准确性、安全性和完整性, 不包修改,不支持退换,同时也不承担用户因使用这些下载资源对自己和他人造成任何形式的伤害或损失;
6、 下载文件中如有侵权或不适当内容,请与我们联系,我们立即纠正。