

作品包括:
说明书1份,共38页,约14000字左右
CAD版本本图纸,共3张
过程卡一张
摘 要
零件的加工工艺编制,在机械加工中占有非常重要的地位,零件工艺编制得合不合理,这直接关系到零件最终能否达到质量要求;夹具的设计也是不可缺少的一部分,它关系到能否提高其加工效率的问题。因此这两者在机械加工行业中是至关重要的环节。
这次设计主要经历了两个阶段:第一阶段是机械加工工艺规程设计,第二阶段是专用夹具设计。
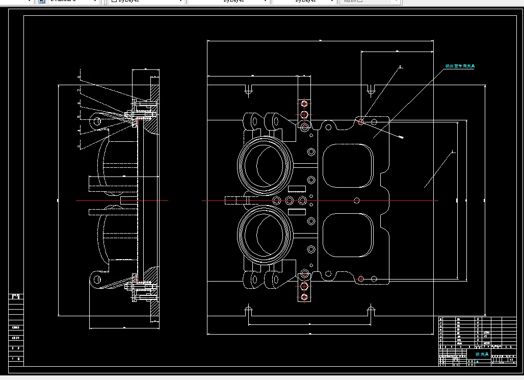
通过对上阀体零件图的分析及结构形式的了解,从而对主轴箱体进行工艺分析、工艺说明及加工过程的技术要求和精度分析。然后再对主轴箱体的底孔、轴承孔的加工进行夹具设计与精度和误差分析,该工艺与夹具设计结果能应用于生产要求。
通过此次设计,使我们基本掌握了零件的加工过程分析、工艺文件的编制、专用夹具设计的方法和步骤等。学会了查相关手册、选择使用工艺装备等等。
关键词:加工工艺,夹具设计,机床
目 录
摘 要 I
Abstract II
目 录 III
第1章 绪论 1
1.1 机械加工工艺概述 1
1.2机械加工工艺流程 1
1.3夹具概述 2
1.4机床夹具的功能 3
1.5机床夹具的发展趋势 3
1.5.1机床夹具的现状 3
1.5.2现代机床夹具的发展方向 4
1.6论文主要内容 5
第2章 零件的分析 6
2.1 零件的作用 6
2.2 零件的工艺分析 6
第3章 工艺规程设计 8
3.1 基准面的选择 8
3.1.1 粗基准的选择 8
3.1.2 精基准的选择 8
3.2 毛坯的制造形式 8
3.3 制订工艺路线 8
3.3.1. 工艺线路方案一 9
3.3.2 工艺路线方案二 9
3.3.3. 工艺方案的比较与分析 10
3.4 机械加工余量、工序尺寸及毛坯尺寸的确定 11
第4章 确定上阀体切削用量及基本工时 11
4.1工序1 铸造。 11
4.2 工序2 热处理:正火。 11
4.3工序1粗铣底面775X650 粗糙度Ra 12.5。 11
4.4工序 4精铣底面775X650 粗糙度Ra 3.5。 12
4.5 工序5 钻铰2Xφ28H8销孔 14
4.6 工序6 铣底面的反面775X320 粗糙度Ra 6.3 14
4.7工序7铣中间一对 220X223周边槽 粗糙度Ra 12.5 15
4.8 工序8 铣2Xφ275端面,粗糙度Ra12.5 16
4.9 工序9 铣2Xφ254H11,槽宽12 深度12 粗糙度Ra6.3 17
4.10 工序10 粗镗2Xφ195内孔 17
4.11 工序11精镗2Xφ195内孔,倒角 18
4.14 工序14 钻孔4Xφ36惚孔,5Xφ40惚孔,4Xφ20惚孔,9XM20螺纹孔,2Xφ22孔,10-φ26 倒角。 19
4.15工序15 去毛刺,检查。 21
第5章 镗孔夹具设计 22
6.1确定定位方案,选择定位元件 22
6.2确定导向装置 22
6.3确定夹紧机构 22
6.5设计夹具体 22
第6章 铣面夹具设计 24
6.1定位基准的选择 24
6.2 定位方案和元件设计 24
6.3 夹紧机构的设计 24
6.4 定位误差的计算 28
6.5本章小结 29
总 结 30
参 考 文 献 31
致谢 32
温馨提示:
1、题目前面的备注【字母数字编号】为本站整理分类的编号,与课题内容无关,请选题时忽视;
2、若题目上备注三维,则表示文件里包含三维源文件,由于三维组成零件数量较多,为保证预览截图的简洁性,本站将三维文件夹进行了打包。三维及CAD预览截图,均为本站电脑打开软件进行截图的,保证能够打开,下载原件超高清,下载后解压即可;
3、本站所有资源如无特殊说明,都需要本地电脑安装Office2007。图纸软件为AutoCAD,PROE,UG,SolidWorks,CATIA等;
4、本站所有图文资料仅供用户学习参考,不作为任何商用或其他用途;
5、本站不保证下载资源的准确性、安全性和完整性, 不包修改,不支持退换,同时也不承担用户因使用这些下载资源对自己和他人造成任何形式的伤害或损失;
6、 下载文件中如有侵权或不适当内容,请与我们联系,我们立即纠正。