

作品包括:
Word版设计说明书1份
工艺过程卡一份
CAD版本图纸,共6张
摘要
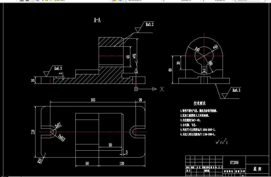
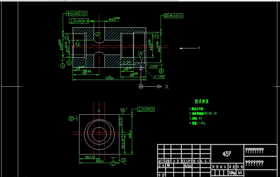
本设计的主要内容是叉架的工艺和夹具设计。首先按照机械加工工艺规程的要求,在给定生产条件下,通过对定位基准、加工方法、加工阶段、加工顺序、工序集中与分散的分析,确定了叉架的加工工艺路线。然后按照专用夹具的设计方法,根据工件的具体要求设计了钻扩铰Φ20孔和铣槽的专用夹具。在定位夹紧方案中,对定位夹紧元件的布局进行了几套方案的对比,选择了比较合理的方案。钻扩铰Φ20孔夹具采用一面加一V型块,侧面用单螺旋夹紧机构夹紧;铣槽夹具用一面一销一钉,侧面用单螺旋夹紧机构夹紧,同时对两套定位方案进行了定位误差分析,使之满足工件加工要求。
温馨提示:
1、题目前面的备注【字母数字编号】为本站整理分类的编号,与课题内容无关,请选题时忽视;
2、若题目上备注三维,则表示文件里包含三维源文件,由于三维组成零件数量较多,为保证预览截图的简洁性,本站将三维文件夹进行了打包。三维及CAD预览截图,均为本站电脑打开软件进行截图的,保证能够打开,下载原件超高清,下载后解压即可;
3、本站所有资源如无特殊说明,都需要本地电脑安装Office2007。图纸软件为AutoCAD,PROE,UG,SolidWorks,CATIA等;
4、本站所有图文资料仅供用户学习参考,不作为任何商用或其他用途;
5、本站不保证下载资源的准确性、安全性和完整性, 不包修改,不支持退换,同时也不承担用户因使用这些下载资源对自己和他人造成任何形式的伤害或损失;
6、 下载文件中如有侵权或不适当内容,请与我们联系,我们立即纠正。