

作品包括:
Word版说明书1份,共33页,约7700字
工序卡7张
工艺过程卡1张
CAD版本图纸,共4张
UG三维图一套
![1735008414383147.webp WZ(X8@GGJ7DB$])U5JAD{TS.webp](/static/upload/image/20241224/1735008414383147.webp)
目录
ABSTRCT 3
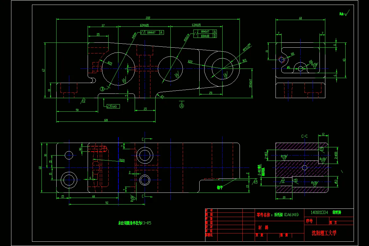
一、零件的作用 5
二、零件的机械工艺分析 5
一、 确定毛坯的制造形式 6
第四章 拟定加工工艺路线 8
一、 基准的选择 8
(一)粗基准确定 8
(二)精基准的确定 9
二、 制定工艺路线 9
第五章 零件加工工序设计 12
一、 粗精铣底端面 12
(一)刀具的选择 12
(二)余量的确定 12
二、钻孔,扩孔,铰 孔 13
(一)钻 38的孔mm 13
查找参考文献[1]表15-33 13
(二)扩孔至 39.750mm 14
(三)铰 40mm孔 14
三、 钻扩铰 孔 15
(一)钻 28mm 15
(二)扩孔至 16
(三)铰 16
(五) 扩孔至 25.2mm 18
(六)铰 19
四、铣油槽2 3 20
(一)刀具的确定 20
(二) 20
五、 钻2-Φ13,2-Φ10的孔 21
(四)切削工时 22
七、锪孔2-Ф20,Ф13孔至要求尺寸 23
八、 钻孔M6,钻深孔Ф6 24
第六章 夹具设计 26
一、问题的提出 26
二、 定位基准的选择 26
三•计算切削力及夹紧力 27
四、 定位误差分析 28
五、 夹具设计及操作简要说明 28
总 结 29
致 谢 30
参 考 文 献 31
温馨提示:
1、题目前面的备注【字母数字编号】为本站整理分类的编号,与课题内容无关,请选题时忽视;
2、若题目上备注三维,则表示文件里包含三维源文件,由于三维组成零件数量较多,为保证预览截图的简洁性,本站将三维文件夹进行了打包。三维及CAD预览截图,均为本站电脑打开软件进行截图的,保证能够打开,下载原件超高清,下载后解压即可;
3、本站所有资源如无特殊说明,都需要本地电脑安装Office2007。图纸软件为AutoCAD,PROE,UG,SolidWorks,CATIA等;
4、本站所有图文资料仅供用户学习参考,不作为任何商用或其他用途;
5、本站不保证下载资源的准确性、安全性和完整性, 不包修改,不支持退换,同时也不承担用户因使用这些下载资源对自己和他人造成任何形式的伤害或损失;
6、 下载文件中如有侵权或不适当内容,请与我们联系,我们立即纠正。