

作品包括:
Word版说明书一份,23页,约8700字
CAD版本图纸,共8张
毕业设计(论文)任务书
一、设计题目(附图):
曲柄轮 零件机械加工工艺规程制订及第 2 工序工艺装备设计。
二、设计条件:
l、零件图; 2、生产批量:中批量生产。
三、设计内容:
1、零件图分析:l)、零件图工艺性分析(结构工艺性及技术条件分析);2)、绘制零件图;
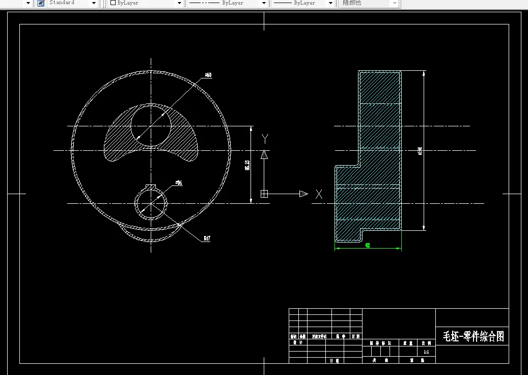
2、毛坯选择: 1)、毛坯类型; 2)、余量确定; 3)、毛坯图。
3、机械加工工艺路线确定: 1)、加工方案分析及确定; 2)、基准的选择;3)、绘制加工工艺流程图(确定定位夹紧方案)。
4、工艺尺寸及其公差确定: 1)、基准重合时(工序尺寸关系图绘制); 2)、利用尺寸关系图计算工序尺寸; 3)、基准不重合时(绘制尺寸链图)并计算工序尺寸。
5、设备及其工艺装备确定:
6、切削用量及工时定额确定: 确定每道工序切削用量及工时定额。
7、工艺文件制订: 1)、编写工艺设计说明书; 2)、填写工艺规程;(工艺过程卡片和工序卡片)
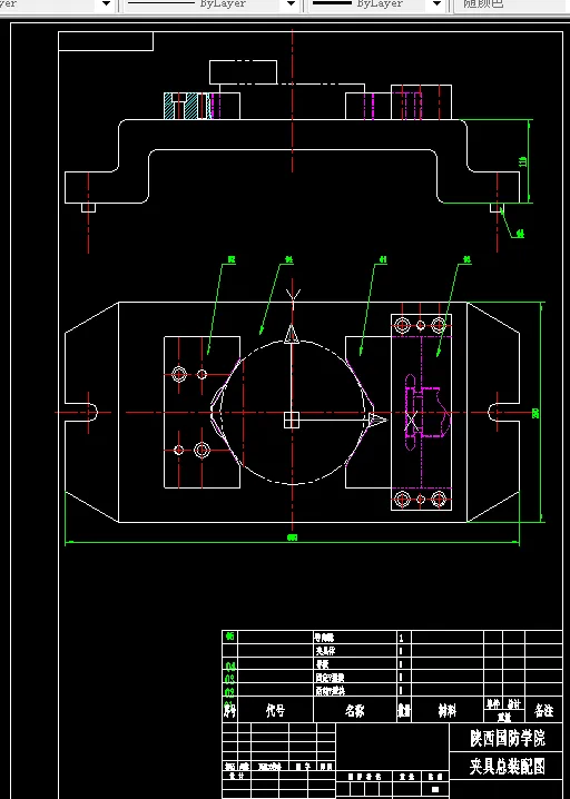
8、指定工序机床夹具设计: 1)、工序图分析; 2)、定位方案确定; 3)、定位误差计算; 4)、夹具总装图绘制。
9、刀具、量具没计。(绘制刀具量具工作图)
10、某工序数控编程程序设计。
四、上交资料(全部为电子文稿):
1、零件机械加工工艺规程制订设计说明书一份;(按统一格式撰写)
2、工艺文件一套(含工艺流程卡片、每一道工序的工序卡片含工序附图);
3、机床夹具设计说明书一份;(按统一格式撰写)
4、夹具总装图一张(A4图纸);零件图两张(A4图纸);
5、刀量具设计说明书一份;(按统一格式撰写)
6、刀具工作图一张(A4图纸);量具工作图一张(A4图纸)。
7、数控编程程序说明书
目录
第一部分 工艺设计说明书 4
1.零件图工艺性分析: 4
1.1零件结构功用分析: 4
1.2零件结构工艺性分析: 4
2.毛坯选择: 4
2.1毛坯类型的确定: 4
2.2毛坯余量确定: 5
2.3毛坯—零件综合图: 5
3.机加工工艺路线的确定: 5
3.1加工方法分析确定: 5
3.2加工顺序的安排与定位基准选择: 6
3.3 加工阶段的选择: 7
3.4加工阶段的划分: 8
3.5加工方案工序简图: 8
4.工艺尺寸及其公差的确定: 10
4.1基准重合时,工序尺寸和公差的计算: 10
5.设备及其工艺设备确定: 11
5.1选择机床: 11
5.2选择夹具: 11
5.3选择刀具: 12
5.4选择量具: 12
6.加工Ф40H7孔时切削用量的确定: 13
第二部分 夹具设计说明书 14
1. 工序尺寸精度分析: 14
2.定位方案的确定: 14
3. 定位元件的确定 14
4. 定位误差分析计算 14
5. 夹紧方案及元件确定 15
第三部分 量具设计说明书 16
1.工序尺寸精度分析 16
2.量具类型确定 16
3.极限量规尺寸公差确定 16
4.极限量具尺寸公差带图 17
第四部分 编程设计说明书 19
1.工序主要加工的对象 19
2.确定加工顺序及走刀路线 19
3.刀具的选择 19
4.程序 (工序2的程序) 19
第五部分 心得体会 22
第六部分 参考资料 23
温馨提示:
1、题目前面的备注【字母数字编号】为本站整理分类的编号,与课题内容无关,请选题时忽视;
2、若题目上备注三维,则表示文件里包含三维源文件,由于三维组成零件数量较多,为保证预览截图的简洁性,本站将三维文件夹进行了打包。三维及CAD预览截图,均为本站电脑打开软件进行截图的,保证能够打开,下载原件超高清,下载后解压即可;
3、本站所有资源如无特殊说明,都需要本地电脑安装Office2007。图纸软件为AutoCAD,PROE,UG,SolidWorks,CATIA等;
4、本站所有图文资料仅供用户学习参考,不作为任何商用或其他用途;
5、本站不保证下载资源的准确性、安全性和完整性, 不包修改,不支持退换,同时也不承担用户因使用这些下载资源对自己和他人造成任何形式的伤害或损失;
6、 下载文件中如有侵权或不适当内容,请与我们联系,我们立即纠正。