

作品包括:
Word说明书1份,共42页,约14000字
CAD版本图纸,共14张
柴油机曲轴螺纹孔加工组合机床总体及主轴箱设计
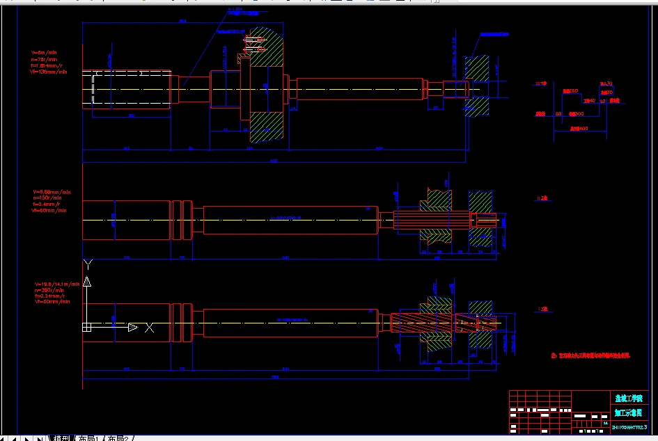
摘要:设计这组合机床的目的在于加工2个G1/2〞柴油机曲轴螺纹孔。一次装夹,同时完成钻孔、扩孔、攻螺纹等三道工序。本文介绍了用于曲轴孔加工的组合机床总体方案的论证和主轴箱设计的步骤和方法。在设计过程中借鉴了国内一些现有组合机床的设计资料,结合被加工零件的结构特征,其主要内容包括:机床结构方案的分析和确定 、组合机床总体设计和组合机床的部件设计。
本课题主要完成主轴箱的设计。设计中采用V型块定位,可以有效地定位。本次设计能够保证加工精度和生产率,并且较大部分采用通用件和标准件,结构简单、成本较低和使用方便。主轴箱设计是本次设计中一个重要的传动部分的设计。在主轴箱设计方面,原有机床采用多工序加工,加工效率低,加工尺寸不容易保证,而且位置精度也不高,通过改进不仅提高了加工效率,还保证了孔的加工尺寸,同时也解决了位置精度问题,降低了工人的劳动强度。
关键词:组合机床;总体设计;主轴箱
目 录
1前 言 1
2组合机床总体方案论证 3
2.1被加工零件工艺方案的拟订 3
2.1.2 工艺基准的选择 3
2.2组合机床配置型式的选择 3
2.2.1 单工位加工机床 3
2.2.2 转塔动力箱式组合机床 4
2.2.3 多工位双面卧式组合机床 4
2.2.4双面卧式组合机床 5
3 组合机床的总体设计 6
3.1 被加工零件工序图 6
3.2 加工示意图 7
3.2.1 刀具的选择 7
3.2.3确定切削扭矩, 切削功率及刀具耐用度 8
3.2.4 导向结构的确定 10
3.2.5接杆的选择 11
3.2.6 确定动力部件的工作循环及工作行程 12
3.3机床联系尺寸图 13
3.3.1动力头的选择 14
3.3.2装料高度H的确定 14
3.3.3主轴箱轮廓尺寸的确定 14
3.4生产率计算卡 15
3.4.1理想生产率 15
3.4.2实际生产率 16
3.4.3机床负荷率 17
3.4.4生产率计算卡 18
4 主轴箱设计 19
4.1 绘制多轴箱设计原始依据图 19
4.2 确定主轴、齿轮及模数 19
4.3 主轴箱传动系统的设计 19
4.3.1对主轴箱传动系统的一般要求 19
4.3.2拟定多轴箱传动系统的基本方法 20
4.3.3确定轴的位置与齿轮齿数 20
4.4轴上零件的设计选用与校核 25
4.5.1主轴箱中齿轮的校核计算 25
4.5.2 轴的强度设计 27
4.5.3主轴箱中轴承的校核计算 29
5电气控制系统设计 32
5.1攻丝工位电气控制设计 32
6 样机试验测试 34
6.1 组合机床空运转试验 34
6.1.1 样机试验要求 34
6.1.2 样机试验结果 34
6.2 组合机床切削试验 34
6.2.1 组合机床试验过程 34
6.2.2 组合机床试验结果 34
7 结论 35
参考文献 36
致谢 37
附件清单 38
温馨提示:
1、题目前面的备注【字母数字编号】为本站整理分类的编号,与课题内容无关,请选题时忽视;
2、若题目上备注三维,则表示文件里包含三维源文件,由于三维组成零件数量较多,为保证预览截图的简洁性,本站将三维文件夹进行了打包。三维及CAD预览截图,均为本站电脑打开软件进行截图的,保证能够打开,下载原件超高清,下载后解压即可;
3、本站所有资源如无特殊说明,都需要本地电脑安装Office2007。图纸软件为AutoCAD,PROE,UG,SolidWorks,CATIA等;
4、本站所有图文资料仅供用户学习参考,不作为任何商用或其他用途;
5、本站不保证下载资源的准确性、安全性和完整性, 不包修改,不支持退换,同时也不承担用户因使用这些下载资源对自己和他人造成任何形式的伤害或损失;
6、 下载文件中如有侵权或不适当内容,请与我们联系,我们立即纠正。