

作品包括:
word说明书一份,共43页,约23000字
任务书一份
开题报告一份
外文翻译一份
CAD版本图纸,共5张
摘 要
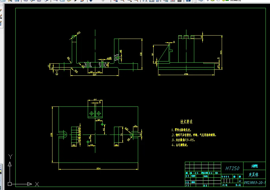
本课题是研究一台对缸头进行加工的两面精镗组合机床,主要是对组合机床的总体结构、夹具和多轴箱的设计。首先概括了组合机床的发展,阐述了组合机床的低成本、高效率、操作使用简单等优点。然后是机床夹具的设计,采用“一面两销”的定位方式,使定位更准确;通过误差分析,夹紧力计算等确定夹具的总体结构。其次是对组合机床的设计,关键是工艺方案的拟定,这大体决定组合机床的配置形式和使用性能,然后编制“三图一卡”。最后是多轴箱的设计,通过工件的尺寸和加工孔的位置计算出主轴箱的轮廓尺寸;根据扭矩的计算得出主轴和传动轴的直径;通过类比法确定齿轮的模数;通过“计算、作图和多次试凑”确定齿轮齿数和中间传动轴的位置。在总体设计过程中,首先通过计算所需功率选择动力箱,然后根据主轴的分布情况选用多轴箱;之后根据动力箱和加工行程图来选择液压滑台,再由液压滑台选用配套的多轴箱;再配合装料高度、滑台、侧底座相互位置等来确定中间底座的高度和长度。
关键词:组合机床;精镗;缸头;多轴箱
目 录
摘 要 III
ABSTRACT IV
目录 IV
1 绪论 1
1.1本课题的研究内容和意义 1
1.2国内外的发展概况 1
1.3本课题应达到的要求 1
2 设计方案的确定 2
2.1工件的大小、形状和加工部分的特点 2
2.2生产率的影响 2
2.3经济性与可靠性 2
3专用夹具的设计 3
3.1夹具的功用与组成 3
3.2夹具的设计 3
3.2.1调研分析 3
3.2.2确定工件定位方式 3
3.2.3确定工件加紧方式 4
3.2.4必要的加工精度计算及分析 4
3.2.5夹紧力计算、分析 4
4 组合机床总体设计 6
4.1组合机床的组成 6
4.1.1组合机床的特点 6
4.1.2组合机床的工艺范围 6
4.1.3组合机床配置型式 6
4.1.4组合机床的设计步骤 7
4.2组合机床工艺方案的确定 7
4.2.1组合机床工艺方案的基本原则 7
4.2.2确定组合机床工艺方案应注意的问题 7
4.2.3工艺方案的拟订 8
4.2.4工序间余量的确定 8
4.2.5刀具结构的选择 9
4.3切削用量的确定 9
4.3.1组合机床切削用量选择的特点、方法及注意问题 9
4.3.2组合机床切削用量选择方法及应注意的问题 9
4.3.3确定切削速度和切削用量 9
4.3.4切削力、切削转矩、切削功率 10
4.3.5确定主轴类型、尺寸、外伸长度 10
4.3.6动力部件工作循环及行程的确定 11
4.4组合机床总体设计——“三图一卡” 11
4.4.1被加工零件工序图 11
4.4.2绘制加工零件工序图 12
4.4.3加工示意图 13
4.4.4机床联系尺寸图 16
5 组合机床多轴箱的设计 22
5.1多轴箱的基本结构及表达式 22
5.1.1 多轴箱的组成 22
5.1.2 多轴箱总图绘制方法特点 22
5.2通用多轴箱设计 22
5.2.1 绘制多轴箱设计原始依据图 22
5.2.2 主轴、齿轮的确定及动力计算 23
5.2.3 多轴箱传动设计 25
5.2.4 绘制多轴箱总图及零件图 28
6 结论与展望 30
6.1结论 30
6.2不足之处及未来展望 30
致 谢 31
参考文献 32
附 录 33
温馨提示:
1、题目前面的备注【字母数字编号】为本站整理分类的编号,与课题内容无关,请选题时忽视;
2、若题目上备注三维,则表示文件里包含三维源文件,由于三维组成零件数量较多,为保证预览截图的简洁性,本站将三维文件夹进行了打包。三维及CAD预览截图,均为本站电脑打开软件进行截图的,保证能够打开,下载原件超高清,下载后解压即可;
3、本站所有资源如无特殊说明,都需要本地电脑安装Office2007。图纸软件为AutoCAD,PROE,UG,SolidWorks,CATIA等;
4、本站所有图文资料仅供用户学习参考,不作为任何商用或其他用途;
5、本站不保证下载资源的准确性、安全性和完整性, 不包修改,不支持退换,同时也不承担用户因使用这些下载资源对自己和他人造成任何形式的伤害或损失;
6、 下载文件中如有侵权或不适当内容,请与我们联系,我们立即纠正。