

作品包括:
说明书一份,32页,13880字左右.
翻译一份.
CAD图纸共3张:
目 录
1. 绪论 1
1.1数控车床的发展历史 1
1.2数控车床改造的目的 2
1.3数控车床改造的意义 2
1.4数控车床改造的内容 2
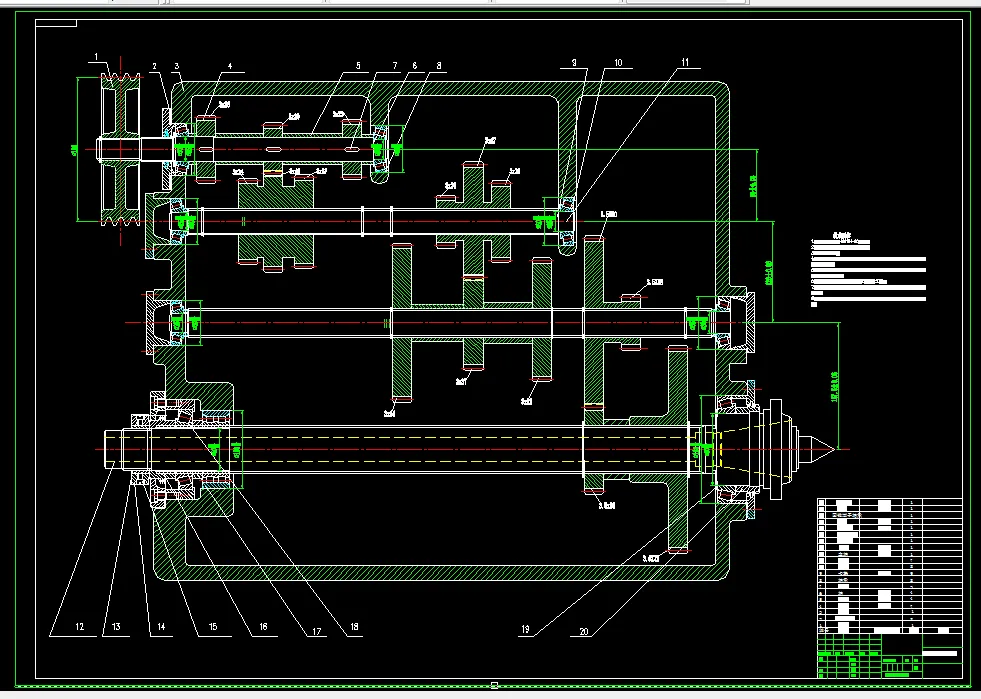
2. 机械部分的设计 3
2.1纵向进给系统的设计与计算 3
2.1.1纵向进给系统的设计 3
2.1.2滚珠丝杠计算与选择 3
2.2横向进给系统的设计与计算 12
2.2.1横向进给系统的设计 12
2.2.2滚珠丝杠的计算与选择 12
2.3机床导轨改造 19
3.电气部分的设计 20
3.1硬件基本组成 20
3.2控制系统的设计 20
3.3软件系统的设计 24
总结 28
参考文献 29
温馨提示:
1、题目前面的备注【字母数字编号】为本站整理分类的编号,与课题内容无关,请选题时忽视;
2、若题目上备注三维,则表示文件里包含三维源文件,由于三维组成零件数量较多,为保证预览截图的简洁性,本站将三维文件夹进行了打包。三维及CAD预览截图,均为本站电脑打开软件进行截图的,保证能够打开,下载原件超高清,下载后解压即可;
3、本站所有资源如无特殊说明,都需要本地电脑安装Office2007。图纸软件为AutoCAD,PROE,UG,SolidWorks,CATIA等;
4、本站所有图文资料仅供用户学习参考,不作为任何商用或其他用途;
5、本站不保证下载资源的准确性、安全性和完整性, 不包修改,不支持退换,同时也不承担用户因使用这些下载资源对自己和他人造成任何形式的伤害或损失;
6、 下载文件中如有侵权或不适当内容,请与我们联系,我们立即纠正。
A358-钻镗两用组合机床的液压控制系统及电气控制系统设计
J587-二级同轴式圆柱齿轮减速器设计F=1500,V=1.1,D=220-
H409-二级圆锥圆柱齿轮减速器设计【含SW三维动画】F=1737N,V=1.32,D=270
M654-二级圆锥圆柱齿轮减速器设计F=11.5KN V=1.48 D=360
ZZ19-普通车床的主轴箱部件设计[P=7.5kw 转速90-1000 公比1.41,z=8]
D078-带式运输机传动装置中的同轴式二级圆柱齿轮减速器T=850,V=0.7,D=350
J597-两级圆柱齿轮减速器T=700,V=0.8,D=360
L047-单级直齿锥齿轮减速器设计F=3.3,V=0.9,D=350