

作品包括:
说明书1份,共40页,约16000字左右
CAD版本本图纸,共7张
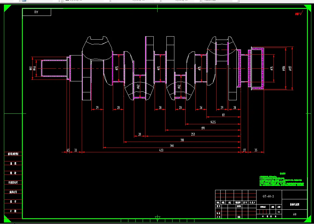
495曲轴零件工艺、钻润滑油孔夹具及专用机床设计
摘要:本设计介绍了495曲轴零件工艺、钻润滑油孔夹具及专用机床的设计,其中包含了零件加工工艺的确定,设计中首先要了解工件的加工工艺路线及工序的计算,确定钻润滑油孔主轴的直径,初步选用电机型号及机床各部分部件。编制三图一卡(被加工零件工序图,加工示意图,机床联系尺寸图,机床生产率计算卡)。在多轴箱设计中,确定传动系统,计算主轴坐标,传动部件的校核及主轴箱的总图绘制。
本设计将钻孔工装实现了通用化,从而降低了机器成本,而且节省了加工时间,提高了工作生产效率。
关键词: 曲轴;专业机床;多轴箱;工装
目 录
绪论 1
1. 组合机床概述 1
2. 495曲轴零件工艺分析 5
2.1 被加工零件的功用 5
2.2 编制工艺规程及分析 5
2.2.1 被加工零件的技术要求 5
2.2.2 毛坯的选用 6
2.3 零件加工工艺路线的拟定 7
2.3.1 定位基准的选择 8
2.3.1.1 粗基准的选择 8
2.3.1.2 精基准的选择 8
2.4 制定工艺路线 10
2.5 零件技术条件分析 10
2.6 初步拟定工艺规程 10
2.7 所用设备及工艺装备 10
2.8 切削用量的确定 10
3. 钻孔组合机床的结构设计 11
3.1 组合机床的配置形式的选择 11
3.2 动力部件的选择 11
4. 绘制“三图一卡” 16
4.1 绘制被加工零件工序图 16
4.2 绘制被加工零件加工示意图 16
4.3 机床联系尺寸图的绘制 18
4.4 专用机床生产率计算卡的编制 18
4.4.1 生产率的计算 18
4.4.2 编写生产率计算卡 20
5. 组合机床钻润滑油孔多轴箱设计 21
5.1 钻孔概述 21
5.2.1 内容及注意事项 21
5.2.2 主轴外伸尺寸及切削用量 22
5.3 主轴齿轮的确定及计算 22
5.3.1 主轴形式和直径,齿轮模数的确定 22
5.3.2 多轴箱所需动力计算 23
5.4 多轴箱的传动设计 24
5.4.1 对多轴箱的传动系统的一般要求 25
5.4.2 拟订多轴箱传动系统的方法 25
5.5 对传动零件进行校核 25
5.5.1 轴的挍核 26
5.5.2 齿轮的挍核 27
5.6 钻润滑油孔夹具的设计 28
5.6.1 钻孔靠模机构及卡头 29
5.6.2 钻孔装置 30
5.6.3 钻孔行程的控制 30
6. 结论 31
附录 32
参考文献 33
致谢 34
温馨提示:
1、题目前面的备注【字母数字编号】为本站整理分类的编号,与课题内容无关,请选题时忽视;
2、若题目上备注三维,则表示文件里包含三维源文件,由于三维组成零件数量较多,为保证预览截图的简洁性,本站将三维文件夹进行了打包。三维及CAD预览截图,均为本站电脑打开软件进行截图的,保证能够打开,下载原件超高清,下载后解压即可;
3、本站所有资源如无特殊说明,都需要本地电脑安装Office2007。图纸软件为AutoCAD,PROE,UG,SolidWorks,CATIA等;
4、本站所有图文资料仅供用户学习参考,不作为任何商用或其他用途;
5、本站不保证下载资源的准确性、安全性和完整性, 不包修改,不支持退换,同时也不承担用户因使用这些下载资源对自己和他人造成任何形式的伤害或损失;
6、 下载文件中如有侵权或不适当内容,请与我们联系,我们立即纠正。