

作品包括:
Word版说明书1份,共58页,约19000字
CAD版本图纸,共4张
摘 要
此次是设计完成一台立式数控镗床的机械部分。在设计中首先要合理的完成镗床总体结构布局,包括床身结构设计,立柱结构布局和工作台结构设计。其次对主轴系统和伺服系统进行分析并设计计算,其中主轴系统的包括主轴、齿轮、液压缸,伺服系统包括伺服电机、滚珠丝杠、轴承等。同时对滚动导轨和刀库进行了选型设计,最后对主轴、滚珠丝杠、轴承进行了强度等•校核计算。
因此要设计一台数控镗床,首先要了解数控镗床的结构与工作原理,其次操作、维修、改进数控镗床也至关重要。本文介绍了数控镗床的主轴系统、伺服进给系统、刀库转换系统等的设计要求及结构特点,对于系统各个部件也作了相关介绍。
关键词:数控镗床;伺服电机;滚珠丝杠;轴承;液压缸
目 录
摘 要 I
关键词: Abstract II
1 综述 1
2 机械结构及布局设计 5
2.1 床身结构设计 5
2.1.1 对床身结构的基本要求 5
2.1.2 床身结构布局及截面形状 6
2.2 立柱的结构布局 6
2.2.1 对立柱的条件要求 6
2.2.2 立柱的结构布局 6
2.3 工作台的结构设计 7
2.3.1 T形槽 8
2.3.2 工作台其余结构 8
3 滚珠丝杠的设计 10
3.1 滚珠丝杠的传动特点 10
3.2 滚珠丝杠副的运动原理 11
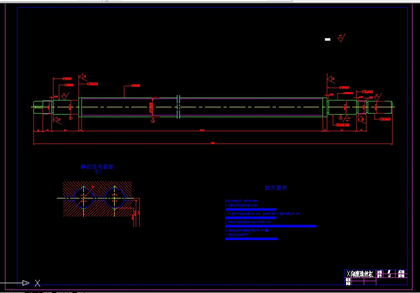
3.2.1 x向丝杠螺母副的设计 11
4.2.2 y向丝杠的选型 17
4.2.3 z向丝杠螺母的设计 17
4.3 滚珠丝杠副的传动特点 17
4.4 电机的选型设计 18
4.4.1 伺服控制电机的基本要求 18
4.4.2 伺服电机的选型设计 18
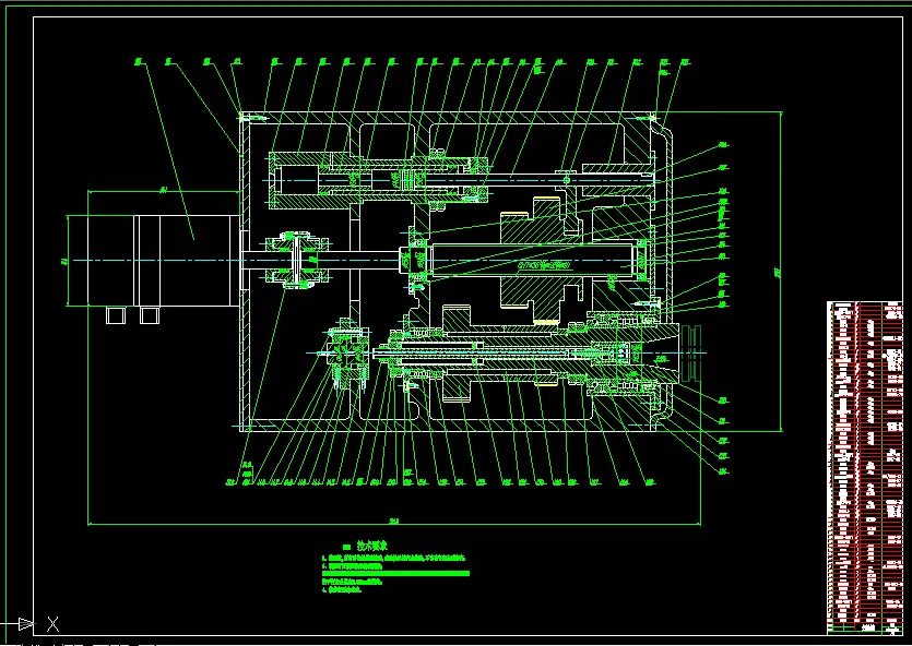
3 数控机床的主传动系统设计 24
3.1 主轴组件设计 24
3.2 主轴组件需要满足的条件 24
3.2.1 回转精度 25
3.2.2 主轴的刚度 25
3.2.3 主轴的抗震性 25
3.2.4 主轴的温升 26
3.2.5 主轴的耐磨性 26
3.2.6 主轴的承载能力 26
3.3 主轴的设计 27
3.3.1 主轴的转动 27
3.3.2 主轴传动部件位置的合理布置 28
3.4 主轴的结构设计 29
3.4.1 主轴设计 29
3.4.2 主轴的设计计算 30
3.5 轴端设计 31
3.6 主轴的校核 32
3.6.1 主轴箱齿轮强度校核 32
3.6.2 齿轮接触疲劳强度的校核 33
3.6.3 主轴强度的校核 33
3.7 主轴箱的润滑 35
3.7.1 润滑剂的选择 35
3.7.2 管路设计 35
3.7.3 自动控制油温的选择 35
3.8 轴承的合理安排 35
3.9 主轴电机的选择 36
3.10 主轴轴承的选择和强度校核 36
3.10.1 支反力的计算 37
3.10.2 对于轴承使用寿命的计算 38
3.11 传动齿轮的设计 39
3.11.1 齿轮的尺寸 39
3.11.2 双联齿轮的设计 40
3.11.3 齿轮的结构设计 41
3.11.4 齿轮的强度校核 41
5液压缸的选择设计 45
5.1 液压传动的特点 45
5.2 液压工作原理 46
5.3 液压缸的选取 46
5.4 液压缸的设计和计算 47
6刀库的选择 48
6.1 刀库的种类 48
6.2 刀库交换装置 48
6.3 刀具识别装置 49
6.4 刀库的换刀方式 49
6.5 刀库的选择 49
结 论 50
致 谢 51
参考文献 52
温馨提示:
1、题目前面的备注【字母数字编号】为本站整理分类的编号,与课题内容无关,请选题时忽视;
2、若题目上备注三维,则表示文件里包含三维源文件,由于三维组成零件数量较多,为保证预览截图的简洁性,本站将三维文件夹进行了打包。三维及CAD预览截图,均为本站电脑打开软件进行截图的,保证能够打开,下载原件超高清,下载后解压即可;
3、本站所有资源如无特殊说明,都需要本地电脑安装Office2007。图纸软件为AutoCAD,PROE,UG,SolidWorks,CATIA等;
4、本站所有图文资料仅供用户学习参考,不作为任何商用或其他用途;
5、本站不保证下载资源的准确性、安全性和完整性, 不包修改,不支持退换,同时也不承担用户因使用这些下载资源对自己和他人造成任何形式的伤害或损失;
6、 下载文件中如有侵权或不适当内容,请与我们联系,我们立即纠正。