

作品包括:
说明书一份,共29页,约8600字
CAD版本图纸,共3张
摘 要
本设计中,应用了很多设计的相关理论,通过对间歇机构的介绍和选择,确定了圆柱分度凸轮装置的基本运动方案,并根据方案进行了各零件的设计,该方案要基本达到设计要求,保证圆柱分度凸轮装置能够协调运动。本设计结构简单,加强大家对该机构的认识,便于学习,最后通过建立三维模型,更加直观的表现出设计方案。
关键词:间歇机构,圆柱分度凸轮装置,三维建模
目 录
摘 要 I
ABSTRACT II
1绪论 1
1.1 国内外研究现状 1
1.2 研究内容及意义 1
1.3 研究方法 2
2圆柱分度凸轮机构 3
2.1 圆柱分度凸轮机构的基本形式与工作特点. 3
2.2 圆柱分度凸轮机构的主要运动参数 3
3圆柱分度凸轮装置的设计计算 7
3.1 圆柱分度凸轮机构的技术要求 7
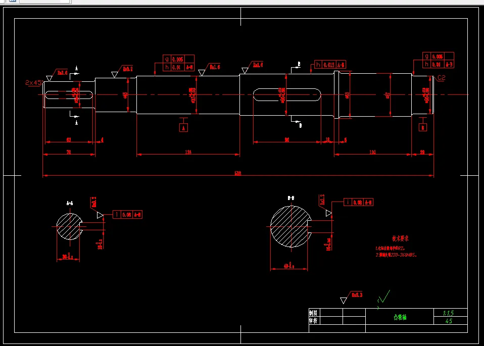
3.2 凸轮轴的结构设计及校核 7
3.2.1 拟定轴上零件装配方案 7
3.2.2 根据轴向定位的要求确定轴的各段直径和长度 8
3.2.3 计算轴的最大输入功率并校核 9
3.3转盘轴的结构设计及校核 11
3.3.1 拟定轴上零件装配方案 11
3.3.2 根据轴向定位的要求确定轴的各段直径和长度 11
3.3.3 转盘轴的强度校核 12
3.4 滚动轴承的选择及校核计算 13
3.5 键连接的选择及校核计算 17
3.6 圆柱分度凸轮机构附件的选择 18
4装置零部件的三维建模 19
4.1 UG软件的介绍 19
4.2零件的三维建模 19
4.3装配图及参数 20
5全文总结 23
参考文献 24
致 谢 25
温馨提示:
1、题目前面的备注【字母数字编号】为本站整理分类的编号,与课题内容无关,请选题时忽视;
2、若题目上备注三维,则表示文件里包含三维源文件,由于三维组成零件数量较多,为保证预览截图的简洁性,本站将三维文件夹进行了打包。三维及CAD预览截图,均为本站电脑打开软件进行截图的,保证能够打开,下载原件超高清,下载后解压即可;
3、本站所有资源如无特殊说明,都需要本地电脑安装Office2007。图纸软件为AutoCAD,PROE,UG,SolidWorks,CATIA等;
4、本站所有图文资料仅供用户学习参考,不作为任何商用或其他用途;
5、本站不保证下载资源的准确性、安全性和完整性, 不包修改,不支持退换,同时也不承担用户因使用这些下载资源对自己和他人造成任何形式的伤害或损失;
6、 下载文件中如有侵权或不适当内容,请与我们联系,我们立即纠正。