

作品包括:
说明书一份,共36页,约11000字
CAD版本图纸,共6张
摘要
本次毕业设计主要是基于牙齿种植装置的电动扭矩扳手设计。通过对产品的分析测量,使用三维软件进行建模,然后通过AutoCAD软件,对长轴、螺钉、轴承、锥齿轮、电动机、开关按、外壳、种植体、基台,拔牙装置进行了设计,并对其中锥齿轮进行测量与校核,得到牙齿种植电动扭矩扳手的装配图及各个系统的零件加工图,并且完成设计说明书的撰写。
关键词 牙齿种植;电动扳手;外壳;电动机;装配图
目录
摘要 2
Abstract 3
1 绪论 5
1.1 课题的背景 5
1.2 设计任务 5
1.3 设计意义 6
2 方案设计 7
2.1 基本结构的分析与选择 7
2.1.1 电机的初步选择 7
2.1.2 长轴的初步选择 7
2.1.3 联轴器的初步选择 8
2.1.4 传动装置的初步选择 11
2.2 总体方案的拟定 12
3 电动机的选择 14
3.1 电动机基本介绍 14
3.2 电动机的选择 14
4 传动部件的设计与校核 17
4.1 传动方案的设计 17
4.1.1 齿轮的类型选择 17
4.1.2 齿轮的传动方式 17
4.2 传动部件的设计准则 18
4.2.1 齿轮的设计准则 18
4.2.2 长轴的设计选择 19
4.3 齿轮的材料及选用原则 20
4.3.1 按齿面接触疲劳强度设计 21
4.3.2 按齿根弯曲疲劳强度设计 22
4.3.3 设计计算 23
5 标准件的选择与校核 25
5.1 轴承的选择与校核 25
5.1.1 轴承的选择 25
5.1.2 轴承的校核 25
5.1.3 轴承的润滑方式 26
5.2 螺纹连接的类型及选择 27
5.2.1 螺纹连接的类型 27
5.2.1 螺纹连接的选择 28
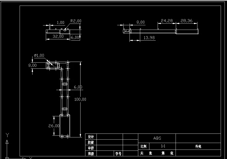
6 牙齿种植电动扭矩扳手的外壳与装配图 29
6.1 外壳材料的选择 29
6.2 总体装配图与外壳的结构设计 30
结论 33
致谢 34
参考文献 35
温馨提示:
1、题目前面的备注【字母数字编号】为本站整理分类的编号,与课题内容无关,请选题时忽视;
2、若题目上备注三维,则表示文件里包含三维源文件,由于三维组成零件数量较多,为保证预览截图的简洁性,本站将三维文件夹进行了打包。三维及CAD预览截图,均为本站电脑打开软件进行截图的,保证能够打开,下载原件超高清,下载后解压即可;
3、本站所有资源如无特殊说明,都需要本地电脑安装Office2007。图纸软件为AutoCAD,PROE,UG,SolidWorks,CATIA等;
4、本站所有图文资料仅供用户学习参考,不作为任何商用或其他用途;
5、本站不保证下载资源的准确性、安全性和完整性, 不包修改,不支持退换,同时也不承担用户因使用这些下载资源对自己和他人造成任何形式的伤害或损失;
6、 下载文件中如有侵权或不适当内容,请与我们联系,我们立即纠正。