

作品包括:
设计word版本说明书一份,47页,约20000字
CAD版本图纸,共5张
目录 …………………………………………………………………………… 1
Abstract……………………………………………………………………………………………………….1
摘 要 1
第 一 章 前 言 4
1.1工业机器人 4
1.1.1工业机器人简介 4
1.1.2世界机器人的发展 4
1.1.3我国工业机器人的发展 5
1.2工业机械手 6
1.2.1简史 6
1.2.2应用简况 7
1.2.3国内外机械人发展趋势 7
1.3机械手的组成和分类 9
1.3.1机械手的组成 9
1.3.2机械手的分类 11
1.4本课题研究的主要内容及意义 11
1.4.1 课题 七杆二自由度机械手设计内容及基本要求 11
1.4.2重点研究的问题: 11
1.4.3 本次设计的意义 11
第 二 章 机械手机械结构的设计计算 12
2.1 机械手机构的分析与设计 - 12 -
2.1.1机械手的自由度 - 12 -
2.1.2坐标形式 - 13 -
2.1.3机械手的机构简图以及部件尺寸 - 13 -
2.1.4机械手总体方案的比较 15
第 三 章 平衡臂机械手总体设计方案 15
3.1 机械手总体系统的设计 15
3.2液压机械手液压系统的工作原理 15
3.3液压系统的组成原理 16
3.4液压传动机械手的特点 16
3.5机械手的动作顺序 17
3.6平衡臂机械手总体布局方案的确定 18
第 四 章 液压系统的设计 18
4.1 液压系统控制回路的比较选择 18
4.2 液压系统工作原理图 20
4.3 液压系统执行元件的比较选择 21
4.4液压系统动力装置的计算选择 22
4.4.1大臂上双作用活塞式油缸的流量计算及驱动泵的要求 22
4.4.2带动手部夹紧油缸的流量计算及驱动泵的要求 23
4.4.3水平伸缩油缸的流量计算及驱动泵的要求 24
4.2.4驱动泵和驱动电机的选择 26
4.5液压系统控制装置的计算选择 26
4.6液压系统辅助装置的计算选择 27
4.7集中配置液压装置 28
4.7.1液压泵站的集成配置 29
4.7.2液压控制装置的集成配置 29
第 五 章 PLC控制回路的设计 31
5.1电磁铁动作顺序 31
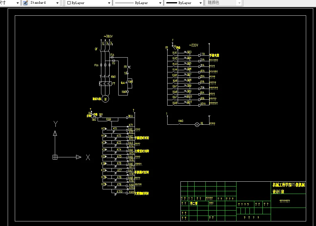
5.2电气控制原理图 32
5.3现场器件与PLC内部等效继电器对照表 35
5.4 PLC与现场器件的实际连接图 36
5.5梯形图 37
5.6指令程序 38
结束语………………………………………………………………………….42
参考文献……………………………………………………………………….43
附录一 英文文献翻译 44
附录二 英文文献原文 48
平衡臂机械手的设计之PLC逻辑顺序控制和液压系统设计
摘要:本次设计的液压传动机械手根据规定的动作顺序,综合运用所学的基本理论、基本知识和相关的机械设计专业知识,完成对机械手的设计,并绘制必要装配图、液压系统图、PLC控制系统原理图。机械手的机械结构采用油缸、螺杆、导向筒等机械器件组成;在液压传动机构中,机械手的手臂伸缩采用伸缩油缸,手腕回转采用回转油缸,立柱的转动采用齿条油缸,机械手的升降采用升降油缸,立柱的横移采用横向移动油缸;在PLC控制回路中,采用的PLC类型为FX2N,当按下连续启动后,PLC按指定的程序,通过控制电磁阀的开关来控制机械手进行相应的动作循环,当按下连续停止按钮后,机械手在完成一个动作循环后停止运动。
本设计拟开发的上料机械手可在空间抓放物体,动作灵活多样,可代替人工在高温和危险的作业区进行作业,可抓取重量较大的工件。
关键词:机械手、液压、控制回路、PLC
温馨提示:
1、题目前面的备注【字母数字编号】为本站整理分类的编号,与课题内容无关,请选题时忽视;
2、若题目上备注三维,则表示文件里包含三维源文件,由于三维组成零件数量较多,为保证预览截图的简洁性,本站将三维文件夹进行了打包。三维及CAD预览截图,均为本站电脑打开软件进行截图的,保证能够打开,下载原件超高清,下载后解压即可;
3、本站所有资源如无特殊说明,都需要本地电脑安装Office2007。图纸软件为AutoCAD,PROE,UG,SolidWorks,CATIA等;
4、本站所有图文资料仅供用户学习参考,不作为任何商用或其他用途;
5、本站不保证下载资源的准确性、安全性和完整性, 不包修改,不支持退换,同时也不承担用户因使用这些下载资源对自己和他人造成任何形式的伤害或损失;
6、 下载文件中如有侵权或不适当内容,请与我们联系,我们立即纠正。