

作品包括:
word版本说明书一份,共31页,约13000字
CAD版本图纸,共9张
Proe三维图纸一份
目 录
1 前言 1
1.1课题内容 1
1.2课题来由 1
1.2.1课题背景 1
1.2.2 课题要求 1
1.2.3 组合机床国内外发展概况 1
1.2.4 本课题主要解决的问题和总体设计思路 2
2 气缸体加工工艺设计 3
2.1确定生产类型 3
2.2确定毛坯 3
2.2.2 确定铸件加工余量及形状 4
2.3工艺规程设计 4
2.3.1基准 4
2.3.2定位基准的选择 5
2.3.3表面加工方法的选择 6
2.3.4加工阶段的划分 6
2.3.5确定工序集中及分散 6
2.3.7热处理工序的安排 7
2.3.8机床设备与工艺装备的选择 7
2.4制定工艺过程: 8
2.5制定工艺路线 8
2.6选择加工设备和工艺设备 9
2.7机械加工余量、工序尺寸及公差的确定 9
2.7.1工序01:粗铣缸盖结合面及底面 9
2.7.2 工序05:精铣水箱面及油壳底面 10
2.7.3工序10:三面粗镗 10
2.7.4工序15:钻定位孔 10
2.7.5工序16:铰定位孔25,深5 11
2.7.6工序20:攻丝 11
2.7.7工序21:扩孔 12
3夹具设计 12
3.1夹具设计的基本要求和步骤 12
3.1.1夹具设计的基本要求 12
3.1.2夹具设计的步骤 13
3.2定位机构设计及夹紧装方案确定 13
3.2.1定位元件设计 13
3.2.2确定加紧方案 14
3.3夹紧力的计算 15
3.4夹紧油缸的选择 16
3.5导向装置的设计 17
3.6夹具体的设计 17
3.7镗模架的设计 18
3.8夹具的精度分析 25
3.9安装过程 27
3.10夹具的操作说明 27
4结论 28
参考文献 29
致谢 30
附录 31
基于PROE平台的柴油机机体工艺及三面精镗夹具设计
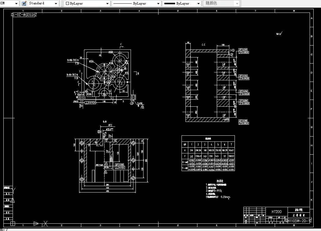
摘 要:箱体是机器和部件的基础零件,它将机器和部件中所有零件连接成一个整体,并使之保持正确的相互位置,完成必需的运动。因此,箱体的加工质量直接影响着机器的性能,精度和寿命。箱体类零件尽管形状各异,尺寸不一,但是它们均有空腔,结构复杂,壁厚不均等共同特点,在箱壁上既有许多精度较高的轴承支撑孔和平面需要加工,又有许多精度较低的紧固孔需要加工。因此,箱体不仅需要加工的部位多,而且加工的难度也较大。
本设计以柴油机汽缸箱体为例,对箱体镗孔的夹紧和定位装置进行工艺分析和夹具的设计。在对此箱体的工艺规程采用两销一面对其进行定位以限制其六个自由度。为减少箱体在加工过程中的误差,我们考虑基准的重合原则,统一原则,互为基准原则以及粗基准的选择原则,为使定位稳定夹紧可靠,要求所选用的粗基准尽可能不重复使用原则。
详细阐述了该汽缸箱体的加工工艺过程,对加工过程中进行的各道工序进行了详尽的说明,并附有零件图,加工工艺过程卡等资料加以说明,使箱体的加工过程一目了然。
关键词:箱体;工艺规程;夹具
温馨提示:
1、题目前面的备注【字母数字编号】为本站整理分类的编号,与课题内容无关,请选题时忽视;
2、若题目上备注三维,则表示文件里包含三维源文件,由于三维组成零件数量较多,为保证预览截图的简洁性,本站将三维文件夹进行了打包。三维及CAD预览截图,均为本站电脑打开软件进行截图的,保证能够打开,下载原件超高清,下载后解压即可;
3、本站所有资源如无特殊说明,都需要本地电脑安装Office2007。图纸软件为AutoCAD,PROE,UG,SolidWorks,CATIA等;
4、本站所有图文资料仅供用户学习参考,不作为任何商用或其他用途;
5、本站不保证下载资源的准确性、安全性和完整性, 不包修改,不支持退换,同时也不承担用户因使用这些下载资源对自己和他人造成任何形式的伤害或损失;
6、 下载文件中如有侵权或不适当内容,请与我们联系,我们立即纠正。