

作品包括:
说明书1份,共48页,约16000字左右
CAD图版本图纸,共5张
多功能智能护理床控制系统的设计
摘 要
在当前世界,人口老龄化已经成为各国的主要难题之一,护理床在妥善解决养老问题上必不可少。多功能偏瘫病人护理床和机器人作为一种新型的辅助偏瘫病人护理医疗器械,对于提高和改善有疾病和失能的老人、残疾人的健康品质能够充分发挥重要的作用。本课题在前期调研的基础上,针对老年人的日常护理需求设计出一种新型的护理床控制系统。
该护理床不仅能提供翻身、支背、抬腿得基本功能,还添加了对使用人员生理参数的测量监测、下肢体辅助康复、自助下床、护理床机位记忆等实用功能。所设计的护理床控制系统主要分为Arduino和PLC两个子控制模块,PLC模块功能动力由5个伺服电机来提供。传感器监测到的生理参数电信号传到Arduino上,该集成系统将采集到的体征数据进行分析,分析完的数据通过ESP8266网络模块发送到one-net服务器,并且实时数据在手机APP上显示。经过护理床调试和仿真结果表明,设计的多功能智能护理床控制系统很好地满足了日常护理需求,操作简单、可靠,达到了预期的功能。
关键词:康复护理床;伺服电机;HMI;网络通信;下肢康复
目 录
第一章 绪 论 1
1.1 研究背景及意义 1
1.2 护理床国内外发展现状 1
1.2.1国内研究状况 2
1.2.2国外的发展情况 2
1.3 预期目标 2
第二章 多功能护理床控制系统总体方案设计 4
2.1 多功能护理床功能设计 4
2.2 多功能护理床控制系统总体方案 4
2.2.1 总体布局 4
2.2.2 控制器的方案 5
2.2.3 动力系统的方案 6
2.2.4 传感器检测方案 7
2.3 本章小结 7
3.1 PLC的选型 8
3.1.1 PLC 特点介绍 8
3.1.2 I/O地址的分配 8
3.1.3 PLC 机型的选择 10
3.2 PLC控制电路设计 11
3.3 PLC主电路图设计 12
3.4 Arduino平台电路设计 13
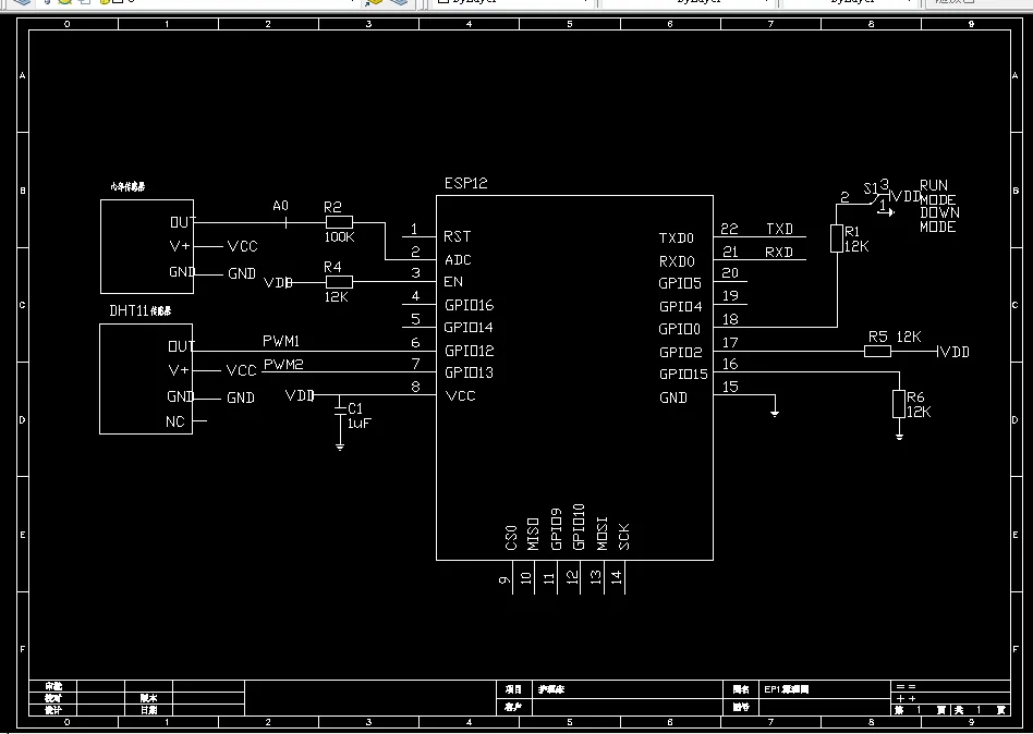
3.4.1 ESP8266模块 13
3.4.2 模拟式心率传感器 13
3.4.3 DHT11温湿度传感器 14
3.5 ESP8266控制电路设计 15
3.6 本章小结 15
第四章 多功能护理床控制系统软件设计 16
4.1 控制系统软件设计方案 16
4.2 PLC控制系统软件设计 17
4.2.1 设备组态 17
4.2.2 伺服电机驱动程序 17
4.3 PLC部分程序介绍 18
4.3.1 系统初始化程序 18
4.3.2 系统复位程序 19
4.3.3 伺服电机定位及点动程序 22
4.3.4 康复功能处理程序 25
4.3.5 伺服电机数据处理程序 28
4.4 Arduino部分程序介绍 30
4.4.1 系统初始化 30
4.4.2 数据采集与发送 30
4.4.3 HTTP通信设置程序 32
4.5 HMI人机界面设计 33
4.5.1 HMI的通信组态 33
4.5.2 HMI的画面显示 34
4.7 本章小结 35
第五章 多功能护理床控制系统调试 36
5.1 PLC程序的调试与仿真 36
5.2 HMI的调试与仿真 37
5.3 本章小结 39
全文总结 40
致 谢 42
参 考 文 献 43
温馨提示:
1、题目前面的备注【字母数字编号】为本站整理分类的编号,与课题内容无关,请选题时忽视;
2、若题目上备注三维,则表示文件里包含三维源文件,由于三维组成零件数量较多,为保证预览截图的简洁性,本站将三维文件夹进行了打包。三维及CAD预览截图,均为本站电脑打开软件进行截图的,保证能够打开,下载原件超高清,下载后解压即可;
3、本站所有资源如无特殊说明,都需要本地电脑安装Office2007。图纸软件为AutoCAD,PROE,UG,SolidWorks,CATIA等;
4、本站所有图文资料仅供用户学习参考,不作为任何商用或其他用途;
5、本站不保证下载资源的准确性、安全性和完整性, 不包修改,不支持退换,同时也不承担用户因使用这些下载资源对自己和他人造成任何形式的伤害或损失;
6、 下载文件中如有侵权或不适当内容,请与我们联系,我们立即纠正。