

作品包括:
说明书1份,共78页,约27000字左右
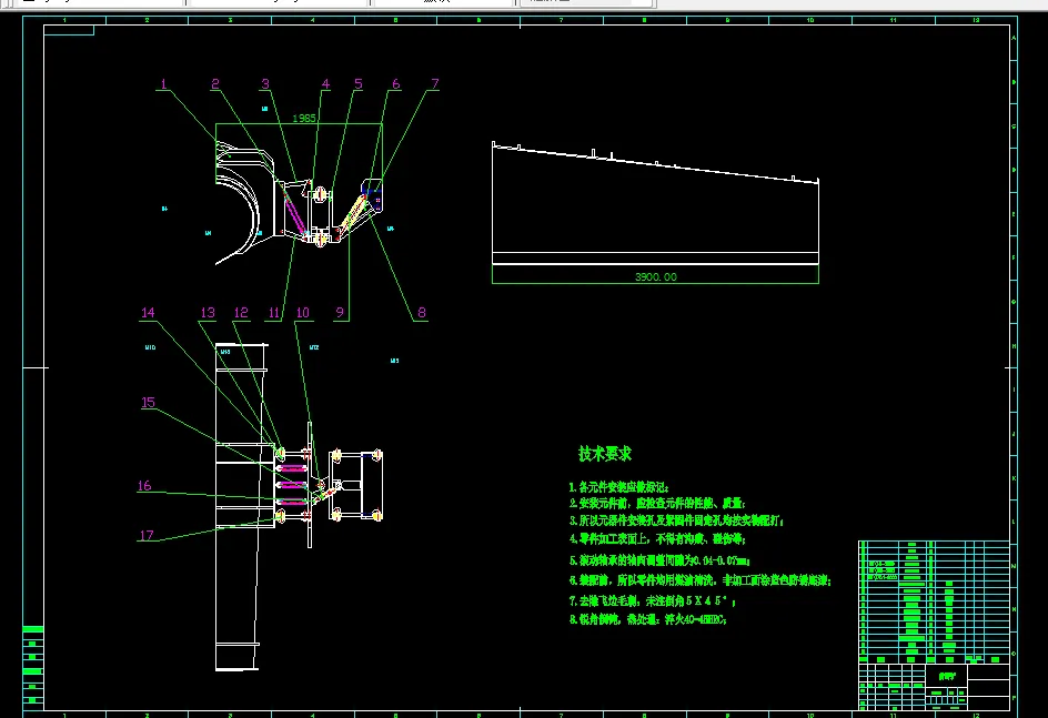
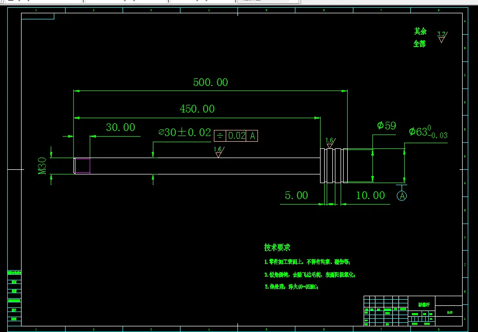
CAD版本本图纸,共4张
Proe三维图一份
摘 要
清雪车(亦称为除雪车、清雪机)是用于清除路面冰雪,保障车辆、飞机
和行人安全的冬季路场养护专用设备。
我国降雪地区范围大,冬季降雪地区的道路积雪清除任务艰巨,清雪车市
场空间广阔。随着我国经济建设的不断发展,高速公路、城市高架桥、飞机场
等的大量兴建。现有的国内除雪机械的生产研发远不能满足市场的需要,而从
国外进口的新型清雪车,价格昂贵,服务和配件的供应周期长、费用高,不能
完全适应我国的路况。因此开发适应我国多雪地区的高效的清雪车具有重大的
实际意义和巨大的经济效益。
本文是结合国家经贸委项目“多功能路面清雪车”的试制样车——DQX 型
清雪车的前雪铲进行的。单向犁板式清雪车是各类除雪机械中应用最为广泛
的。研制单向犁板式清雪车的主要工作是进行前雪铲结构设计、铲板空间曲面
设计、弹性避障机构研究、整车性能的匹配计算等。
由于积雪的物理性质变化范围大,路面情况复杂。清雪车设计、分析、计
算的试验性很强。为节约人力物力,缩短研制周期,本文采用的研究方法是:
以 Pro/E 建模为基础,通过三维模型进行被除积雪的运动分析;进行避障四杆机构的仿真分析;查阅资料引进相关的经验系数进行整车性能计算。分析计算得到的结果能够起到正确指导改进的作用。
本文的主要工作如下:
(1)结合课题对清雪车的国内外现状进行研究分析,参考大量资料对除
雪车(又称清雪车)的分类进行总结,提出了较为完整的分类方法。
(2)利用 Pro/E 建立原设计的三维模型作为分析、研究、改进的基础。
(3)通过分析,选择更为合理的铲板曲线类型。在高速犁板上,被除雪
粒紧贴犁板,做空间旋移运动。推雪铲铲板的形状直接影响被除颗粒的空间旋移轨迹,是除雪阻力、除雪效率等的重要影响因素。本文考虑除雪作业要求、
工艺性、结构性等因素,参照相关数据选取了合适的前雪铲参数。利用 Pro/E 建
模,提出了一种新型的 II 类渐开线型直纹空间铲板曲面。
(4)结合除雪作业的实际工作特点,利用球面三角形的知识,推导了雪
粒在铲板上运动轨迹的求解方法,并利用 Pro/E,直接在三维模型上进行分析,
做出了仅考虑铲板形状和运动速度的影响时的雪粒运动轨迹,以此对所设计的
新型铲板曲面除雪性能进行运动学分析。结果证明前雪铲新铲形具有良好的排
雪性能和工艺性能。推导出的运动轨迹求解方法对进一步研究铲板空间曲面优
化设计也具有一定参考价值。
(5)通过分析推雪铲的结构及工作原理,进行运动仿真分析,
改进了原避障机构的不合理之处,最终确定了具有良好避障功能的前雪铲避障
机构的铰点位置,以及弹簧挂钩位置。所设计的避障机构使得铲刃的避障轨迹
为上凸的避障曲线,结果甚为理想。
(6)查阅相关资料引进经验系数对前雪铲工作时的整车性能进行计算分
析。除雪车的除雪作业效果不仅取决于所装配除雪装置的结构,还取决于机动
车底盘的性能及其与工作装置间相关参数的匹配是否协调。只有正确选择机动
车底盘并合理匹配工作装置的性能参数,才能使设备的技术经济指标得到充分
发挥,完善整机性能。因为本设计采用的是兼用底盘,整车性能的匹配计算尤
为重要,通过计算分析发现,DQX 路面清雪车前雪铲正常工作时,除雪作业时
的牵引力、侧向稳定性与选用底盘类型匹配,能满足设计需求;但是,清雪车
额定作业的除雪速度或者动力车的发动机功率有待进一步调整。
关键词:清雪车 铲板曲面 避障机构 仿真分析 整车性能
目录
摘 要 4
Abstract 6
第一章 绪论 8
1.1 课题研究的目的和意义 8
1.2 国外研究现状及发展趋势 8
1.3国内研究现状及发展趋势 10
1.4本文研究内容 11
第二章 冰雪物理机械性质及除雪车结构 12
2.1冰雪物理机械性质 12
2.1.1 冰雪分类 12
2.1.2 冰雪密度 13
2.1.3 雪的抗压强度 15
2.1.4 雪的抗切强度 17
2.1.5 雪的摩擦系数 18
2.2 除雪原理与方法 20
2.3 除雪车分类 22
2.3.1 按工作装置特点分类 22
2.3.2 按整车特点分类 26
2.4 本章小结 27
第三章 前雪铲铲板设计 28
3.1 相关概念及名词解释 28
3.2 前雪铲铲板曲面结构参数确定 31
3.3 模型建立 34
3.4 本章小结 35
第四章 清除积雪运动分析 36
4.1 球面三角基本概念 36
4.2 清除积雪运动分析 39
4.2.1 清除积雪运动过程 39
4.2.2 雪在推雪铲上的运动速度 40
4.2.3 雪在推雪铲上的运动轨迹方程 47
4.2.4 雪离开铲板后的运动 51
4.3 雪在新型推雪铲上的轨迹 51
4.4 本章小结 54
第五章 避障机构仿真分析 55
5.1 避障机构的作用及分类 55
5.1.1 避障机构的作用 55
5.1.2 避障装置的分类 55
5.2 前铲机械避障装置设计 57
5.2.1 设计思想 57
5.2.2 原避障装置分析 57
5.2.3 避障装置改进设计与分析 59
5.3 本章小结 64
第六章 除雪车作业计算 65
6.1 计算内容及已知相关参数 65
6.2 除雪阻力计算 66
6.2.1 雪阻力计算 66
6.2.2 行驶阻力计算 69
6.2.3 除雪阻力计算 70
6.3 切线牵引力计算 70
6.4 除雪功率计算 71
6.5 车辆的侧向稳定分析 72
6.6 本章小结 73
第七章 结论与展望 74
7.1 结论 74
7.2 展望 75
参考文献 77
温馨提示:
1、题目前面的备注【字母数字编号】为本站整理分类的编号,与课题内容无关,请选题时忽视;
2、若题目上备注三维,则表示文件里包含三维源文件,由于三维组成零件数量较多,为保证预览截图的简洁性,本站将三维文件夹进行了打包。三维及CAD预览截图,均为本站电脑打开软件进行截图的,保证能够打开,下载原件超高清,下载后解压即可;
3、本站所有资源如无特殊说明,都需要本地电脑安装Office2007。图纸软件为AutoCAD,PROE,UG,SolidWorks,CATIA等;
4、本站所有图文资料仅供用户学习参考,不作为任何商用或其他用途;
5、本站不保证下载资源的准确性、安全性和完整性, 不包修改,不支持退换,同时也不承担用户因使用这些下载资源对自己和他人造成任何形式的伤害或损失;
6、 下载文件中如有侵权或不适当内容,请与我们联系,我们立即纠正。