

作品包括:
word版本说明书一份,共35页,约12000字
外文翻译一份
开题报告一份
PROE三维图纸一套
UG三维图一份
运动仿真动画一套
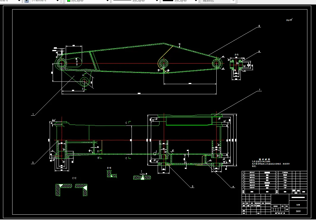
CAD版本图纸,共9张
摘要:近年来,随着钢铁业、煤炭业、电力业的持续迅猛发展,挖掘机等工程机械的需求日益增加,并广泛地运用于房屋建筑、筑路工程、水利建设、农林开发、港口建设、国防工事的土石方施工和矿山采掘工业中。由于其作业工况复杂多变,挖掘方式往往是凭借操作者的经验,根据实际作业工况决定,为了减小操作者的挖掘经验对挖掘效果的影响,就迫切需要建立起铲斗挖掘轨迹与各液压缸的直接对应关系,实现挖掘机操作的自动化。同时由于挖掘机的工作环境的复杂性及工况的多变性,就要求液压挖掘机本身结构要根据环境的不同作相应的调整,这就决定了挖掘机设计的平凡性、重复性。然而液压挖掘机的工作装置又是一个多自由度的多杆系统,各铰点的确定非常复杂,这些因素就造成了液压挖掘机的投资大、设计周期长,严重地影响了厂商的经济效益及国民经济的发展。
本文主要的设计工作主要有以下几个方面:在现场测绘及参考有关资料的基础上了解液压挖掘机的工作方式及工作环境。确定液压挖掘机各个工作装置的结构,查找相关资料并结合经验公式对挖掘机工作装置的总体进行设计,用比例法和经验公式计算出工作装置各部分的基本尺寸并对其进行应力分析,然后绘制出其二维CAD图纸,继而用PRO/E画出各装置的三维模型。将各装置装配后对其进行运动模拟仿真。
关键词:挖掘机;工作装置;CAD;PRO/E;运动仿真
目录
1 前言 1
1.1课题研究的背景和意义 1
1.2 液压挖掘机研究现状及发展动态 1
1.2.1 国外的研究现状及发展动态 2
1.2.2 国内的研究现状及发展动态 3
1.3 本文研究的主要内容 4
2液压正铲挖掘机工作装置的运动分析 5
2.1 液压正铲挖掘机的基本组成和工作原理 5
2.2 工作装置结构方案的确定 6
2.3 工作装置运动分析 9
2.3.1动臂运动分析 9
2.3.2斗杆运动分析 11
2.3.3斗齿尖的几种特殊工作位置的计算 12
3 工作装置尺寸的设计确定 15
3.1应用举例 15
3.1.2动臂及斗杆长度确定 …………………………………………………16
3.1.2机构转角范围确定 17
3.2 油缸铰点及行程确定 17
3.2.1动臂油缸的铰点及行程确定 17
3.2.2 斗杆油缸铰点及行程确定 17
3.2.3 铲斗油缸铰点及行程确定 18
3.3工作装置的位置模型建立 18
3.3.1 动臂与平台铰点位置C的确定 18
3.3.2 动臂及斗杆长度的确定 19
3.3.3 机构转角范围确定 19
3.4工作装置油缸铰点及行程确定 24
3.4.1动臂油缸的铰点及行程确定 24
3.4.2斗杆油缸铰点及行程确定 27
3.4.3铲斗油缸铰点及行程确定 30
3.5液压正铲挖掘机三维模型 32
4 结论 33
参考文献 34
致谢 35
温馨提示:
1、题目前面的备注【字母数字编号】为本站整理分类的编号,与课题内容无关,请选题时忽视;
2、若题目上备注三维,则表示文件里包含三维源文件,由于三维组成零件数量较多,为保证预览截图的简洁性,本站将三维文件夹进行了打包。三维及CAD预览截图,均为本站电脑打开软件进行截图的,保证能够打开,下载原件超高清,下载后解压即可;
3、本站所有资源如无特殊说明,都需要本地电脑安装Office2007。图纸软件为AutoCAD,PROE,UG,SolidWorks,CATIA等;
4、本站所有图文资料仅供用户学习参考,不作为任何商用或其他用途;
5、本站不保证下载资源的准确性、安全性和完整性, 不包修改,不支持退换,同时也不承担用户因使用这些下载资源对自己和他人造成任何形式的伤害或损失;
6、 下载文件中如有侵权或不适当内容,请与我们联系,我们立即纠正。