

作品包括:
word版本说明书一份,共30页,约9000字
CAD版本图纸,共6张
毕业设计说明书(论文)中文摘要
自动垂直提升仓储系统是集光、机、电、微机控制、数据库为一体的新型产品。自动垂直提升仓储系统主要用于电子元器件、标准件、标准工具、数控机床刀柄和小型货物的储存和管理。具有外形美观,占地面积小,存储量大,存取操作方便,便于管理等特点。是一些具有一定经济实力的企业改造首选设备。自动化仓储系统是由电脑控制处理设备,记忆物料存放的位置,利用自动化控制系统、自动存取臂与条形码扫描设备,不需人工拣货或上架,通过电脑控制可自动存取货物的系统。其优点为节省空间和人力,为提高作业效率 。是一些具有一定经济实力的企业改造首选设备。
关键词仓储系统 产品结构总体 垂直升降机构 托盘组件 拨叉运动
目录
1 引言..................................................................2
2 现状..................................................................2
3 发展趋势..............................................................3
4 国内外自动仓储系统的研究..............................................3
4.1 国外自动仓储系统的研究..............................................3
4.2 国内自动仓储系统的研究..............................................4
5 产品简介..............................................................4
5.1 仓储系统的主要功能..................................................4
5.2 自动垂直提升仓储系统组成............................................5
6 产品结构总体..........................................................5
6.1 各机构的动作顺序....................................................5
6.1.1 取货物............................................................5
6.1.2 存放货物..........................................................6
6.2 主体................................................................6
6.3 垂直升降机构........................................................6
6.4 水平存取机构........................................................6
6.5 关开门机构..........................................................7
6.6 托盘组件............................................................7
6.7 刀架组件............................................................7
6.8 产品结构总体设计中主要的难题和解决方法..............................7
6.8.1 拨叉运动的实现....................................................7
6.8.2 托盘组件的设计..................................................11
7 关键零部件的设计与校核..............................................12
7.1 链轮的设计与校核..................................................12
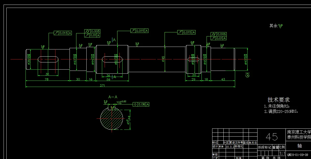
7.2 轴的设计与校核....................................................15
7.2.1 输入轴的设计.....................................................15
7.2.2 输入轴的校核.....................................................17
总结...................................................................25
致谢...................................................................26
参考文献...............................................................27
温馨提示:
1、题目前面的备注【字母数字编号】为本站整理分类的编号,与课题内容无关,请选题时忽视;
2、若题目上备注三维,则表示文件里包含三维源文件,由于三维组成零件数量较多,为保证预览截图的简洁性,本站将三维文件夹进行了打包。三维及CAD预览截图,均为本站电脑打开软件进行截图的,保证能够打开,下载原件超高清,下载后解压即可;
3、本站所有资源如无特殊说明,都需要本地电脑安装Office2007。图纸软件为AutoCAD,PROE,UG,SolidWorks,CATIA等;
4、本站所有图文资料仅供用户学习参考,不作为任何商用或其他用途;
5、本站不保证下载资源的准确性、安全性和完整性, 不包修改,不支持退换,同时也不承担用户因使用这些下载资源对自己和他人造成任何形式的伤害或损失;
6、 下载文件中如有侵权或不适当内容,请与我们联系,我们立即纠正。