

作品包括:
word版本说明书一份,共55页,约23000字
CAD版本图纸,共2张
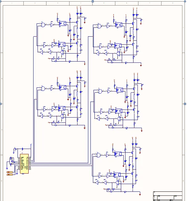
步进驱动电路
步进驱动电路.SchDoc
总气压传动图.dwg
气缸装配图.dwg
摘 要
母线槽是一种新型配电导线,它的两个主要技术参数是指绝缘强度和导线的电阻。论文根据自动检测母线槽导电片电阻和导电片之间绝缘强度的要求,主要介绍了母线槽参数检测机构中气压传动控制系统的设计方法、过程参数和结果等,另外还介绍了步进电机驱动电路的设计。
本传动机构共有六个动作需要由气压传动装置控制,需要八只气缸。其中,两只气缸控制母线槽两端测量头的伸缩;两只气缸控制测量头横向定位;两只气缸控制母线槽长度方向定位;两只气缸控制母线槽的升降(然后对其进行包装)。论文涉及到各个气压传动回路图的设计,各个气缸及辅助元件的相关尺寸的计算,接着是控制回路中的各种气压元件的选择。另外还计算出了普通型单活塞双作用气缸的各个参数值,并设计出了它的结构图。
设计五相十拍步进电动机驱动电路时选择了89C2051作为环形分配器,而功率器件选用电压型的VMOS管。该电路设计成恒流斩波电路,论文中大概介绍了步进电机的相关知识和基本工作原理,并详细介绍了斩波恒流细分驱动方案的原理。此外,本次设计还分别对相序分配的硬件接线和软件程序部分做了设计和说明。
关键词:母线槽;气压传动;步进电机驱动器
目 录
第一章 绪论 1
1.1 引言 1
1.2 选题的背景及意义 1
1.3母线槽简介 2
1.4检测内容 3
1.5 自动检测系统的组成及控制流程 5
1.5.1 母线槽参数检测系统的组成 5
1.5.2 母线槽参数检测系统的工作流程 5
第二章 气压传动系统设计与计算 9
2.1气压传动概述 9
2.1.1气动技术的应用 9
2.1.2气压传动的组成及工作原理 9
2.1.3气压传动的优缺点 10
2.2 气压传动系统控制对象 10
2.3 总气压传动系统回路设计 11
2.3.1选择总气压回路的控制方式 11
2.3.2选择气压发生装置与辅助元件 11
2.3.3选择执行元件 11
2.3.4选择控制元件 13
2.3.5设计总气压传动回路 15
2.4包装台纵向定位装置气压传动回路设计与计算 16
2.4.1 回路设计 16
2.4.2 回路计算 16
2.4.3 元件选择 18
2.5 检测台侧向定位装置气压传动回路设计与计算 19
2.5.1 回路设计 19
2.5.2 回路计算 19
2.5.3 元件选择 21
2.6 测量头动作控制气压传动回路设计与计算 22
2.6.1 回路设计 22
2.6.2 回路计算 22
2.6.3 元件选择 23
2.7 包装台升降机构气压传动回路设计与计算 24
2.7.1 回路设计 24
2.7.2 回路计算 25
2.7.3 元件选择 26
2.8 气缸设计 26
2.8.1 气缸的主要尺寸设计 26
2.8.2 气缸的主要结构设计 27
第三章 驱动电路设计 30
3.1 步进电机的种类以及工作原理 30
3.1.1 步进电机的种类 31
3.1.2 步进电机的工作原理 31
3.2 控制方案拟定 32
3.3 步进电动机相序分配电路 33
3.3.1 相序分配电路 33
3.3.2 相序分配软件 35
3.4 步进电机驱动电路设计 38
第四章 结论 41
4.1 论文总结 41
4.2 感想 42
致谢 43
参考文献 44
附录A:英文资料 45
附录B:英文资料翻译 60
附录C:驱动电路原理图和PCB图 72
附录D:总气压传动图 74
附录E:气缸装配图 75
附件: 毕业论文光盘资料
温馨提示:
1、题目前面的备注【字母数字编号】为本站整理分类的编号,与课题内容无关,请选题时忽视;
2、若题目上备注三维,则表示文件里包含三维源文件,由于三维组成零件数量较多,为保证预览截图的简洁性,本站将三维文件夹进行了打包。三维及CAD预览截图,均为本站电脑打开软件进行截图的,保证能够打开,下载原件超高清,下载后解压即可;
3、本站所有资源如无特殊说明,都需要本地电脑安装Office2007。图纸软件为AutoCAD,PROE,UG,SolidWorks,CATIA等;
4、本站所有图文资料仅供用户学习参考,不作为任何商用或其他用途;
5、本站不保证下载资源的准确性、安全性和完整性, 不包修改,不支持退换,同时也不承担用户因使用这些下载资源对自己和他人造成任何形式的伤害或损失;
6、 下载文件中如有侵权或不适当内容,请与我们联系,我们立即纠正。