

作品包括:
word版设计说明书一份,共73页,约22000字
任务书一份
翻译一份
CAD版本图纸,共10张
毕业设计任务书
毕业设计题目:大采高支撑掩护式液压支架设计
毕业设计专题题目:
毕业设计主要内容和要求:
毕业论文的主要内容:
1、 根据所给参数进行液压支架的选型和各结构参数的设计;
2、 对液压支架的四连杆机构进行分析,计算并优化;
3、 对所设计的支架的主要部件进行受力分析和强度校核;
毕业设计的要求:
1、 完成图纸量至少3张半A0图纸;
2、 独立编写毕业设计计算说明书;
摘 要
本论文主要阐述了支撑掩护式液压支架的设计过程。设计内容包括:选架型、总体设计、主要零部件的设计、主要零部件的校核和液压系统的设计。
ZZ12000/30/50支撑掩护式液压支架最大工作阻力为12000kN/架,主要基本组成部分有:顶梁,底座,液压支柱,千斤顶,掩护梁,四连杆机构等。本文介绍了:液压支架的组成、工作原理、作用和分类;对重要结构件如前梁、顶梁、底座和铰接销轴等进行了分析,根据其常见失效形式、影响因素及基本设计要求,给出了重要结构件的受力分析、强度和刚度的设计方法,并对其进行了受力分析和强度计算。
关键词:液压支架; 四连杆机构; 结构设计; 强度分析
目 录
1 概述
1.1液压支架的用途……………………………………………………………3
1.2 液压支架的组成……………………………………………………………3
1.2.1顶梁…………………………………………………………………3
1.2.2 底座…………………………………………………………………4
1.2.3 掩护梁…………………………………………………………………4
1.2.4 前后连杆………………………………………………………………4
1.2.5立柱 …………………………………………………………………… 4
1.2.6推移装置 ………………………………………………………………5
1.2.7活动侧护板 ……………………………………………………………5
1.2.8操纵控制系统 …………………………………………………………5
1.3 液压支架的工作原理………………………………………………………5
1.3.1 支架升降……………………………………………………………6
1.3.2 支架移动和推移输送机………………………………………………7
1.4 液压支架架型的分类…………………………………………………7
1.4.1支撑式支架 ……………………………………………………………8
1.4.2掩护式支架 ……………………………………………………………8
1.4.3支撑掩护式支架 ………………………………………………………9
2 液压支架的结构设计
2.1 液压支架基本尺寸的确定……………………………………………9
2.1.1 支架高度的确定……………………………………………………9
2.1.2 支架的伸缩比和行程的确定……………………………………10
2.1.3 支架间距的确定………………………………………………………11
2.2 四连杆机构设计 …………………………………………………………11
2.2.1 四连杆机构的作用 …………………………………………………11
2.2.2 四连杆机构的几何特性 ……………………………………………12
2.2.3四连杆机构的几何作图法……………………………………………13
2.3确定顶梁长度………………………………………………………………17
2.4液压支架的性能参数………………………………………………………18
2.4.1 液压支架的支护强度及验算…………………………………………18
2.4.2 液压支架的初撑力……………………………………………………19
2.4.3 液压支架的移架力和推溜力………………………………………19
2.4.4 覆盖率…………………………………………………………………19
2.5 立柱布置 …………………………………………………………………20
2.5.1 立柱数…………………………………………………………………20
2.5.2 立柱间距………………………………………………………………20
2.5.3 立柱支撑方式…………………………………………………………20
2.6 立柱的计算 ………………………………………………………………20
2.6.1 单伸缩立柱缸径的确定………………………………………………20
2.6.2泵站压力和立柱安全阀的调整压力…………………………………21
2.6.3 立柱初撑力的计算……………………………………………………22
2.7推移千斤顶…………………………………………………………………22
3液压支架受力分析与计算
3.1 顶梁的受力分析与计……………………………………………………25
3.1.1 顶梁载荷分布…………………………………………………………26
3.2 掩护梁的受力分析与计算………………………………………………27
3.3 液压支架的底座设计……………………………………………………29
3.3.1 底座的受力分析与计算………………………………………………29
3.3.2 底座接触比压的计算…………………………………………………30
4 液压支架部件的安全强度校核
4.1强度条件……………………………………………………………………31
4.2顶梁的强度校核…………………………………………………………32
4.3掩护梁的强度校核…………………………………………………………36
4.4 底座的强度校核…………………………………………………………39
4.4.1后柱窝处的强度校核…………………………………………………41
4.4.2前连杆处的强度校核…………………………………………………43
4.4.3 Fn受力处的强度校核…………………………………………………45
4.5 立柱强度的计算 …………………………………………………………47
4.5.1 立柱缸体壁厚计算 …………………………………………………48
4.5.2 缸体与缸底焊缝强度计算……………………………………………48
4.5.3油缸的稳定性验算……………………………………………………49
4.5.4 验算活柱的稳定性……………………………………………………50
4.5.5 立柱活塞杆强度验算…………………………………………………52
4.6 销轴及耳板的强度校核 …………………………………………………54
4.6.1 顶梁与掩护梁联接处的强度校核……………………………………54
4.6.2 前连杆与底座联接处的强度校核……………………………………56
4.6.3 后连杆与底座联接处耳板强度校核…………………………………57
5 结论
参考文献……………………………………………………………………60
翻 译
英文原文……………………………………………………………………61
中文译文……………………………………………………………………67
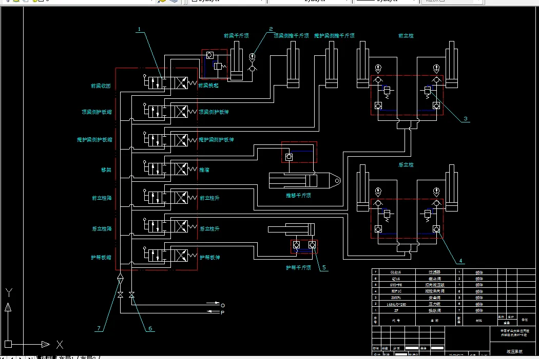
液压系统 ……………………………………………………………………71
温馨提示:
1、题目前面的备注【字母数字编号】为本站整理分类的编号,与课题内容无关,请选题时忽视;
2、若题目上备注三维,则表示文件里包含三维源文件,由于三维组成零件数量较多,为保证预览截图的简洁性,本站将三维文件夹进行了打包。三维及CAD预览截图,均为本站电脑打开软件进行截图的,保证能够打开,下载原件超高清,下载后解压即可;
3、本站所有资源如无特殊说明,都需要本地电脑安装Office2007。图纸软件为AutoCAD,PROE,UG,SolidWorks,CATIA等;
4、本站所有图文资料仅供用户学习参考,不作为任何商用或其他用途;
5、本站不保证下载资源的准确性、安全性和完整性, 不包修改,不支持退换,同时也不承担用户因使用这些下载资源对自己和他人造成任何形式的伤害或损失;
6、 下载文件中如有侵权或不适当内容,请与我们联系,我们立即纠正。