

作品包括:
word版设计说明书一份,共107页,约39000字
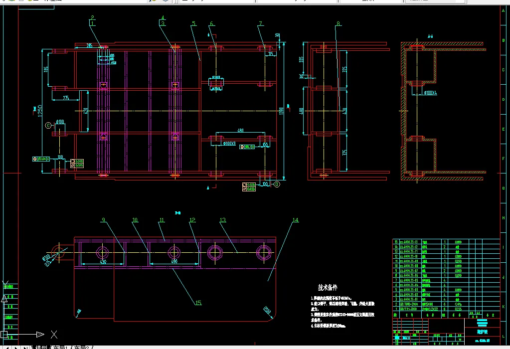
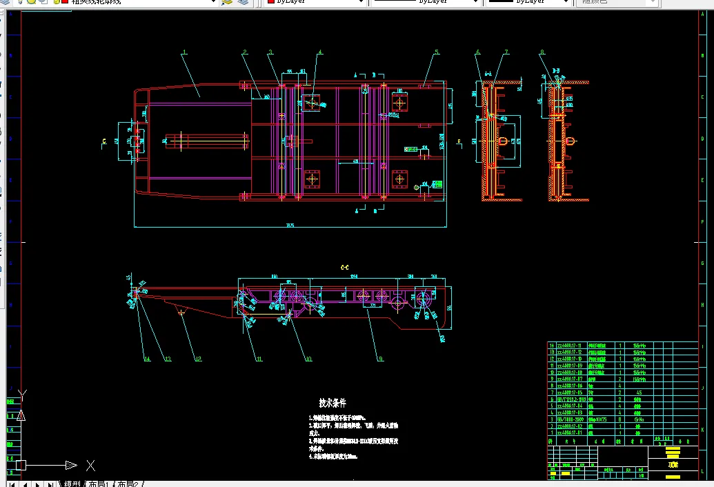
CAD版本图纸,共7张
毕业设计任务书
毕业设计题目:支撑掩护式液压支架
毕业设计专题题目:
毕业设计主要内容和要求:
主要内容:
支撑掩护式液压支架的设计:
1、液压支架的绪论、原理、发展等;
2、根据围岩性质、煤层赋存条件、初选配套设备的相关尺寸,确定支架基本架型及支架结构;液压支架的基本参数确定及其尺寸计算
3、液压支架的受力分析合强度校核 。
基本要求:
工作阻力4000KN,最小高度1.7m,最大高度3.5,中心距1.5。完成主要部件、组件及主要零件工作图的设计,编写完成整机设计计算说明;设计图纸量折合成A0图纸不少于3张,并完成设计说明书,要求说明书正文不少于70页,要有英文相关文章的翻译,翻译成中文后不少于3000字。
摘 要
我课题的研究内容是支撑掩护式液压支架的总体设计。
现代长壁工作面采煤已经在开采区使用液压支架。液压支架不仅支撑顶板,推动刮板输送机工作面和自移式支架本身,而且还为相关的采煤设备提供一个安全的工作环境。因此正确的选择和应用液压支架是长壁工作面采煤成功的先决条件。此外,由于对液压支架需求数量很大,对液压支架的投资经常要占到长壁采煤工作面初始投资的一半以上。因此,从技术和经济两方面的观点看,液压支架是长壁采煤工作面设备中十分重要的一部分。
本文主要介绍了以下几个方面:液压支架的发展历程及发展趋势;液压支架的组成、作用和分类;液压支架的液压控制系统;液压支架设计的一般步骤;对支架重要结构件的受力分析、强度的校核;液压支架的操纵、维护、故障分析及处理等。在本支架的设计过程中,着重对顶梁、掩护梁、四连杆机构、底座、和立柱以及进行了分析和设计。
关键词:支撑掩护式支架;顶梁;四连杆;强度
目 录
1 液压支架概述 1
1.1国内外液压支架的现状 1
1.2液压支架的发展趋势 1
1.3液压支架的组成和用途 2
1.3.1液压支架的组成 2
1.3.2液压支架的用途 2
1.4液压支架的工作原理 3
1.4.1升柱 3
1.4.2降柱 3
1.4.3支架和输送机前移 3
1.5液压支架设计目的、要求和设计支架必要的基本参数 4
1.5.1设计目的 4
1.5.2液压支架的基本要求 4
1.5.3设计液压支架必需的基本参数 5
1.6液压支架的选型 5
1.6.1液压支架的支撑力与承载关系 5
1.6.2液压支架架型的分类 6
1.6.3液压支架选型原则 7
1.6.4液压支架设计的原始条件 8
2 液压支架基本技术参数的确定 10
2.1基本技术参数 10
2.1.1设计的原始条件 10
2.1.2支架的高度 10
2.1.3支架伸缩比 10
2.1.4架间距 10
2.1.5底座的确定 11
2.1.6支架强度 11
2.2液压支架配套设备的确定 12
2.2.1采煤机和运输机型号的确定 12
2.2.2配套尺寸、配套图的确定 12
2.2.3液压支架配套关系图 12
2.3顶梁型式的确定 13
2.3.1顶梁的作用及用途 13
2.3.2顶梁的结构型式的确定 13
2.3.3对顶梁长度的影响 14
2.4顶梁主要参数的确定 14
2.4.1顶梁长度Lg 14
2.4.2顶梁面积A 14
2.4.3支护面积 15
2.4.4支架的理论支护阻力 15
2.4.5顶板覆盖率 15
2.4.6前梁千斤顶 16
2.4.7顶梁其他有关尺寸的确定 16
2.5掩护梁的结构及参数的确定 16
2.5.1掩护梁的作用和用途 16
2.5.2掩护梁的结构型式 16
2.5.3掩护梁的参数确定 17
2.6立柱及主要参数的确定 17
2.6.1立柱布置 18
2.6.2立柱主要参数的确定 19
2.6.3立柱柱窝位置的确定 20
2.6.4 立柱材料的选择 20
2.7推移千斤顶的技术参数的确定 21
2.7.1框架连接方式推移千斤顶的动作原理 21
2.7.2 框架连接方式推移千斤顶 22
2.8侧护装置 23
2.8.1 侧护板的种类 23
2.8.2侧护装置的作用 23
2.8.3侧护板的结构和型式 23
2.8.4侧护板尺寸的确定 24
2.8.5侧推千斤顶的控制方式和位置的确定 25
2.9辅助装置 25
2.9.1护帮装置 25
2.9.2防倒、防滑装置 26
2.10支架液压系统图 26
3 四连杆机构的设计 28
3.1四连杆机构的作用 28
3.2几何作图法求四连杆机构 29
3.2.1掩护梁和后连杆长度的确定 29
3.2.2四连杆机构的几何特征 30
3.2.3几何作图法作图过程 31
4 液压支架的受力分析 39
4.1液压支架的受力分析 34
4.1.1液压支架的支护性能与外载荷 34
4.1.2液压支架的受力分析与计算 35
4.2支撑掩护式液压支架的受力分析和计算 35
4.2.1顶梁受力分析和计算 36
4.2.2顶梁载荷的分布 42
4.2.3支护强度 44
4.2.4支护效率 44
4.3液压支架受力的影响因素 44
4.3.1支架高度对支架受力的影响 45
4.3.2摩擦系数对支架受力的影响 45
4.3.3 值支架受力的影响 45
4.3.4 摩擦力方向对支架受力的影响 46
5 液压支架的底座设计 47
5.1底座的作用及用途 47
5.2底座的结构型式及尺寸确定 47
5.2.1 底座的结构型式 47
5.2.2底座主要尺寸的确定 48
5.3液压支架的底座受力分析及计算 49
5.4液压支架底座接触比压计算 49
5.4.1底座平均接触比压 49
5.4.2底座最大、最小接触比压 50
5.5对底座设计的要求及减少底座前端比压的措施 52
5.5.1对底座设计的要求 52
5.5.2减少底座前端比压的措施 53
6 主要零、部件的强度校核 54
6.1液压支架在强度设计时的强度条件 54
6.2液压支架的强度校核 55
6.2.1顶梁强度的校核 55
6.2.2掩护梁的最大弯矩计算 61
6.2.3立柱强度的验算 64
6.2.4销轴强度的校核 67
7 液压支架的使用和维护 69
7.1 液压支架操作 69
7.1.1 操作前的准备 69
7.1.2 操作方式与顺序 69
7.1.3 支架使用中的注意事项 70
7.2 液压支架操作维护要求 71
7.3 液压支架操作管理事项 71
7.4 维护和管理的具体内容 72
7.5 维修与管理注意事项 72
7.6 支架的合理工作状态 74
8 液压支架常见故障及其排除 77
8.1 结构件和连接销轴 77
8.2 液压系统及液压元件 77
8.3 支架在操作和支护过程中的故障 78
设计总结 80
参考文献 81
翻译部分 82
英文原文 82
中文译文 93
致 谢 103
温馨提示:
1、题目前面的备注【字母数字编号】为本站整理分类的编号,与课题内容无关,请选题时忽视;
2、若题目上备注三维,则表示文件里包含三维源文件,由于三维组成零件数量较多,为保证预览截图的简洁性,本站将三维文件夹进行了打包。三维及CAD预览截图,均为本站电脑打开软件进行截图的,保证能够打开,下载原件超高清,下载后解压即可;
3、本站所有资源如无特殊说明,都需要本地电脑安装Office2007。图纸软件为AutoCAD,PROE,UG,SolidWorks,CATIA等;
4、本站所有图文资料仅供用户学习参考,不作为任何商用或其他用途;
5、本站不保证下载资源的准确性、安全性和完整性, 不包修改,不支持退换,同时也不承担用户因使用这些下载资源对自己和他人造成任何形式的伤害或损失;
6、 下载文件中如有侵权或不适当内容,请与我们联系,我们立即纠正。