

作品包括:
Word版说明书一份,共44页,约23000字
外文翻译一份
CAD版本图纸,共7张
摘要
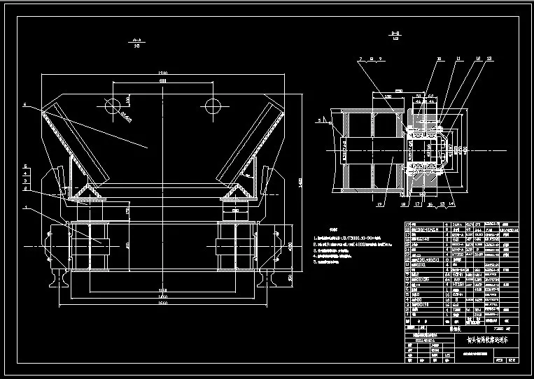
连铸生产是钢坯生产中重要的一种生产工艺,它具有节省工序,缩短流程等优点。在生产过程中,钢坯从连铸机中出来后,由于钢坯的头部和尾部不齐整,需要切去,切下的那部分废料就需要一个专门的装置来收集,并将废料运走,以免堆积影响生产。而本设计就是设计这样的一个收集运送装置。虽然作为连铸生产的辅助装置,但有不可取代的作用,该收集运送装置采用卷扬驱动的方式,小车行驶总长为10900mm,选用YEJ型电磁动异步电动机,可以准确的使小车运行到指定的位置。该收集运送装置采用自动控制系统控制,可使收集运送装置按指定的要求运行。
本设计主要对手机运送装置进行了转动方案的比较、力能参数计算和运动参数计算,选择电动机的型号,和对关键部件的强度校核,最后给出该收集运送装置的操作、安装与维护。
关键词:收集运送装置;卷扬机驱动方式;转动方式;安装与维护
摘要 4
Abstract 5
第一章 概述 6
1.1铸钢技术的概述 6
1.1.1铸钢的分类 6
1.1.2铸钢的铸造工艺特点 7
1.1.3铸钢件的热处理 8
1.1.4 铸钢的熔炼 8
1.2连铸机的工艺设备及流程 9
1.2.1连铸的主要工艺设备介绍 9
1.2.1.1钢包回转台 9
1.2.1.2中间包 9
1.2.1.3拉矫机 10
1.2.1.4 电磁搅拌器 11
1.2.2 连铸机工艺流程 11
1.3连铸机切头切尾收集运送装置设计概述 12
第二章 方案分析比较及确定 13
2.1 已知条件 13
2.2运送装置具体部件设计方案的确定 14
2.3方案的选择比较及确定 15
2.4 系统工作原理 17
第三章 切头切尾收集运送装置运动参数计算 18
3.1 对运送小车受力分析 18
3.2运行阻力计算 19
3.3电动机的选择 20
3.3.1 选择电动机应考虑的问题 20
3.3.2电动机容量的选择 21
3.3.3电动机功率的确定 22
3.3.4 电动机转速的选择 23
3.3.5 电动机过载能力校验 24
3.4 钢丝绳 25
3.4.1 钢丝绳的类型及选择 26
3.4.2 钢丝绳的强度和韧性 27
3.4.3 钢丝绳的计算 27
3.4.4 钢丝绳的使用与维护 30
3.5 滑轮设计计算 30
3.5.1滑轮的选择 30
3.5.2 确定滑轮主要尺寸 31
3.6卷筒的设计计算及强度校核 31
3.6.1 卷筒的类型与结构 31
3.6.2 卷筒的技术要求 32
3.6.3 卷筒的几何尺寸计算 32
3.6.4 卷筒强度校核 35
3.7 减速器的选择 37
3.7.1 减速器的概述 38
3.7.2减速器的分类 38
3.7.3减速器选择计算 39
3.8联轴器的选择 40
3.8.1联轴器的功用 40
3.8.2 联轴器的类型特点 40
3.8.3 联轴器选择应考虑的问题 41
3.8.4 联轴器选择计算 41
3.9 制动器的选择与计算 42
3.9.1 制动器的概述 42
3.9.2 制动器的分类 43
3.9.3 制动器力矩的计算 43
第四章 设备操作和安装与维护 45
4.1 卷扬机的操作 45
4.2 设备的安装 46
4.3设备的维护 47
结束语 48
参考文献 49
温馨提示:
1、题目前面的备注【字母数字编号】为本站整理分类的编号,与课题内容无关,请选题时忽视;
2、若题目上备注三维,则表示文件里包含三维源文件,由于三维组成零件数量较多,为保证预览截图的简洁性,本站将三维文件夹进行了打包。三维及CAD预览截图,均为本站电脑打开软件进行截图的,保证能够打开,下载原件超高清,下载后解压即可;
3、本站所有资源如无特殊说明,都需要本地电脑安装Office2007。图纸软件为AutoCAD,PROE,UG,SolidWorks,CATIA等;
4、本站所有图文资料仅供用户学习参考,不作为任何商用或其他用途;
5、本站不保证下载资源的准确性、安全性和完整性, 不包修改,不支持退换,同时也不承担用户因使用这些下载资源对自己和他人造成任何形式的伤害或损失;
6、 下载文件中如有侵权或不适当内容,请与我们联系,我们立即纠正。