

作品包括:
Word版说明书一份,共57页,约19000字
外文翻译一份
专题小论文一份
CAD版本图纸,共6张
摘 要
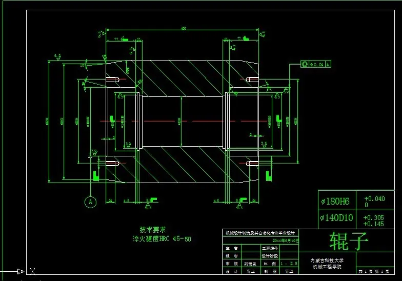
本次设计的题目是三辊导向装置Ⅱ。该设备处于穿孔机的后台工作段,对穿孔出来的钢管起到导向和定心的作用,是穿孔机上一个重要的部件。主要要求定心的精度较高,以便以后的加工。
具体功能如以下:
1.穿孔时抱紧顶杆,保证顶头位于轧机中心线。
2.起导向作用,使穿孔机穿出的荒管沿轧机线正常前进。
3.起定心作用,通过对荒管的良好导向作用,保证荒管良好的外径及壁厚公差。
4.使穿出的荒管与顶杆分离,并且将荒管从轧机线侧面拔离轧机线,进入下道工序。
从它的的作用中可以看出穿孔是否能够轧出合格的钢管,与三辊导向装置Ⅱ有着极为重要的关系,所以对三辊导向装置Ⅱ的设计也有一定的要求,根据这些基本要求,设计出一个合格的三辊导向装置,以保证钢管的质量。
在本说明书中首先对钢管的生产工艺作了一个简单的介绍,接着对穿孔机的主要设备构成及结构特点进行说明,然后是三辊导向装置的总体方案进行了初步选择,之后对一些重要部件进行强度校核,最后对三辊导向装置的使用维护作了简单的介绍。
关键词:轧机钢管;穿孔机;轧辊;强度校核
目 录
摘要 I
Abstract II
第一章 概述 1
1.1 研究背景 2
1.2 无缝钢管生产工艺简介 2
1.3 无缝钢管的生产方法 2
1.4 无缝钢管生产工艺流程图 3
1.5 钢管生产新技术的应用 4
1.6 三辊穿孔机概述 4
1.7 三辊穿孔机的结构简介 5
1.7.1 主转动装置 5
1.7.2 前台 6
1.7.3 工作机座 6
1.7.4 后台 7
第二章 总体方案设计 8
2.1 设计内容简介 8
2.2 确定方案 10
2.2.1 方案一 10
2.2.2 方案二 11
2.2.3 方案三 12
2.3 三辊导向装置的原理分析及位置确定 13
2.3.1 原理分析 14
2.3.2 位置以及尺寸的确定 14
第三章 部分零件设计 20
3.1 轴 20
3.1.1 轴的概述 20
3.1.2 轴的强度计算 26
3.2 杠杆1的计算 34
3.3 杠杆2的计算 35
3.3.1 对杠杆2进行受力分析 35
3.3.2 截面校核 36
3.4 支撑杠杆2的轴计算 37
3.4.1 计算各点的支反力 38
3.4.2 分析危险截面 38
3.4.3 确定轴颈 38
3.5 对辊子数控加工 39
3.6 滚动轴承 41
3.6.1 滚动轴承的组成 41
3.6.2 滚动轴承的类型及特点 42
3.6.3 滚动轴承类型的选择 42
3.6.4 滚动轴承的强度计算 42
第四章 穿孔机的使用和维修 45
4.1 穿孔机的使用 45
4.1.1 开车前的规定 45
4.1.2 动转中的规定 45
4.1.3 停车后的规定 46
4.1.4 严禁事项 46
4.2 穿孔机的维护 46
结束语 50
参考文献 51
温馨提示:
1、题目前面的备注【字母数字编号】为本站整理分类的编号,与课题内容无关,请选题时忽视;
2、若题目上备注三维,则表示文件里包含三维源文件,由于三维组成零件数量较多,为保证预览截图的简洁性,本站将三维文件夹进行了打包。三维及CAD预览截图,均为本站电脑打开软件进行截图的,保证能够打开,下载原件超高清,下载后解压即可;
3、本站所有资源如无特殊说明,都需要本地电脑安装Office2007。图纸软件为AutoCAD,PROE,UG,SolidWorks,CATIA等;
4、本站所有图文资料仅供用户学习参考,不作为任何商用或其他用途;
5、本站不保证下载资源的准确性、安全性和完整性, 不包修改,不支持退换,同时也不承担用户因使用这些下载资源对自己和他人造成任何形式的伤害或损失;
6、 下载文件中如有侵权或不适当内容,请与我们联系,我们立即纠正。