

作品包括:
Word版说明书一份,共53页,约28000字
CAD版本图纸,共7张
摘要
本文旨在探索板材坡口机的总体结构设计,即板材坡口机的设计,又称板材坡口机设计。当前我国板材坡口机技术已经有了一定的发展,而且逐渐趋于自动化。
本文根据板材坡口机的工作原理和基本结构,初步设计板材坡口机。在此基础上通过对此题目的分析以及对一些相关书籍和文献的查阅,进一步研究了板材坡口机的总体结构设计。本文所设计的板材铣边用于电厂中铝板焊接前的坡口成型,板材坡口机的设计重点应在于液压系统和板材坡口机的铣削系统的设计。已完成的主要工作可以概括为以下四方面:
1.对课题的来源、选题的目的、以及板材坡口机在国内外发展的形势及所存在的问题进行了相关的论述。
2.阐述了板材坡口机的一般结构,然后根据自身的需求选取适当的结构组件。简易的叙述了总体方案设计。
3.对液压系统的基本概念、特点、应用以及基本工序做了简要的介绍,进而分析了板材坡口机技术的现状和发展方向。
4.对本设计的重点-板材坡口机的铣削系统进行设计。分析了铣削控制系统的过程,进而对铣削件进行了工艺分析,为板材坡口机铣削系统设计奠定了基础,最后对板材坡口机铣削系统重要的各个尺寸参数进行了校核。
本文通过研究设计板材坡口机的基本原理,获得了大量有关设计板材坡口机的要领。论文的完成对进一步完成生产性设计和探索设计板材坡口机过程有一定的参考价值。
关键词:坡口机;剪板机;传动;液压;自动化
目录
前言 1
1 绪论 2
1.1 课题来源 2
1.2 课题的设计目的及意义 2
1.3 与课题相关的国内外研究现状分析 2
1.3.1 板材坡口机在国内的发展情况 2
1.3.2 板材坡口机在国外的发展情况 4
1.3.3 对板材坡口机行业在国内发展的建议 5
1.4 刨边机与坡口机的优缺点 6
1.5 铣边与剪边工艺的比较 7
1.5.1板边加工在焊接工艺中的必要性 7
1.5.2 板边加工工艺常用的带钢板边加工工艺 7
1.5.3 圆盘剪剪边工艺 7
1.5.4 粗铣+精铣工艺 8
1.5.5 单台铣边工艺 8
1.5.6 圆盘剪剪边+单坡口机铣边工艺 8
1.5.7 板材焊接质量好 8
1.5.8 板材成材率高 8
1.5.9 易加工厚板 9
1.5.10 铣边坡口参数 9
1.5.11 铣边工艺对工作条件的要求 9
1.5.12 存在问题 10
1.5.13 结论 10
1.6 主要设计内容和预期结果 11
1.6.1 设计内容 11
1.6.2 预期结果 11
2 板材坡口机的总体结构概述 12
2.1 板材坡口机的结构 12
2.2板材坡口机的总体方案设计 13
3 控制系统的选择及设计 14
3.1 控制系统的选择 14
3.2 液压传动系统的设计 14
3.2.1 液压缸主要参数的确定 14
3.2.2 缸筒壁厚和外径计算 15
3.2.3 液压缸的强度校核 16
3.3 液压元件的选择 18
3.4 液压系统的性能验算 20
4 板材坡口机铣削系统设计 21
4.1 电动机的选择 21
4.2轴的设计 21
4.2.1轴的转矩强度计算 21
4.2.2 轴的结构设计 21
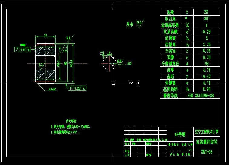
4.3 齿轮的选择及计算 23
4.4 导轨的设计 24
4.4.1 导轨的功用 24
4.4.2 直线运动导轨的特点 24
4.4.3 普通滑动导轨的特点 24
4.4.4 V型导轨的选用 25
5 经济性分析 26
6 结论 27
致谢 28
参考文献 29
附录A 30
附录B 38
温馨提示:
1、题目前面的备注【字母数字编号】为本站整理分类的编号,与课题内容无关,请选题时忽视;
2、若题目上备注三维,则表示文件里包含三维源文件,由于三维组成零件数量较多,为保证预览截图的简洁性,本站将三维文件夹进行了打包。三维及CAD预览截图,均为本站电脑打开软件进行截图的,保证能够打开,下载原件超高清,下载后解压即可;
3、本站所有资源如无特殊说明,都需要本地电脑安装Office2007。图纸软件为AutoCAD,PROE,UG,SolidWorks,CATIA等;
4、本站所有图文资料仅供用户学习参考,不作为任何商用或其他用途;
5、本站不保证下载资源的准确性、安全性和完整性, 不包修改,不支持退换,同时也不承担用户因使用这些下载资源对自己和他人造成任何形式的伤害或损失;
6、 下载文件中如有侵权或不适当内容,请与我们联系,我们立即纠正。