

作品包括:
word说明书一份,32页,约14000字左右
任务书一份
外文翻译一份
CAD版本图纸,共13张
液压试验台设计
摘要:液压系统的组成、功能日益复杂,因而发生故障的机率也随之增多。液压系统的故障具有隐蔽性、变换性和诱发因素的多元性,所以在故障诊断和排除时,不但需要有熟练的技术人员,同时还要有完善的检测设备。检测液压元件性能参数的试验设备多为性能单一的液压试验台。而且一般为液压件生产厂家和研究所专用。从使用方面来看,一旦液压系统发生故障,常常需检测多种液压元件的技术指标,才能找出故障部位和根源,达到及时修理的目的。本文阐述了一种液压试验台的设计、工作原理及主要技术指标。它综合了液压阀和液压缸专用试验台的性能,达到了一机多用的目的,该试验台具有测试可靠、制造容易、维护方便、成本低廉等特点。
关键词:液压试验台;油箱;液压阀;液压缸;压力机
目 录
摘要 1
Abstract. 2
1 绪论 3
1.1 课题背景及目的 3
1.2 国内外研究状况 3
1.2.1 国内外发展现状 3
1.2.2 发展趋势 5
1.2.2.1 以计算机软件为平台,实现液压传动实验的虚拟化 5
1.2.2.2 以计算机网络为平台实现液压传动实验的网络化 5
1.2.2.3 利用PLC编程实现液压传动实验的智能化 5
1.2.2.4 以液压故障诊断系统为平台,实现液压系统的检测与故障分析 5
1.2.2.5 利用纯水液压传动节约能源、保护环境 6
1.3 论文构成及研究内容 6
2 液压试验台基本设计计算 7
2.1 液压系统设计步骤与设计要求 7
2.2 初选系统工作压力 7
2.3 计算液压缸的主要结构尺寸 7
2.4 制定基本方案和绘制液压系统图 10
2.4.1 制定基本方案 10
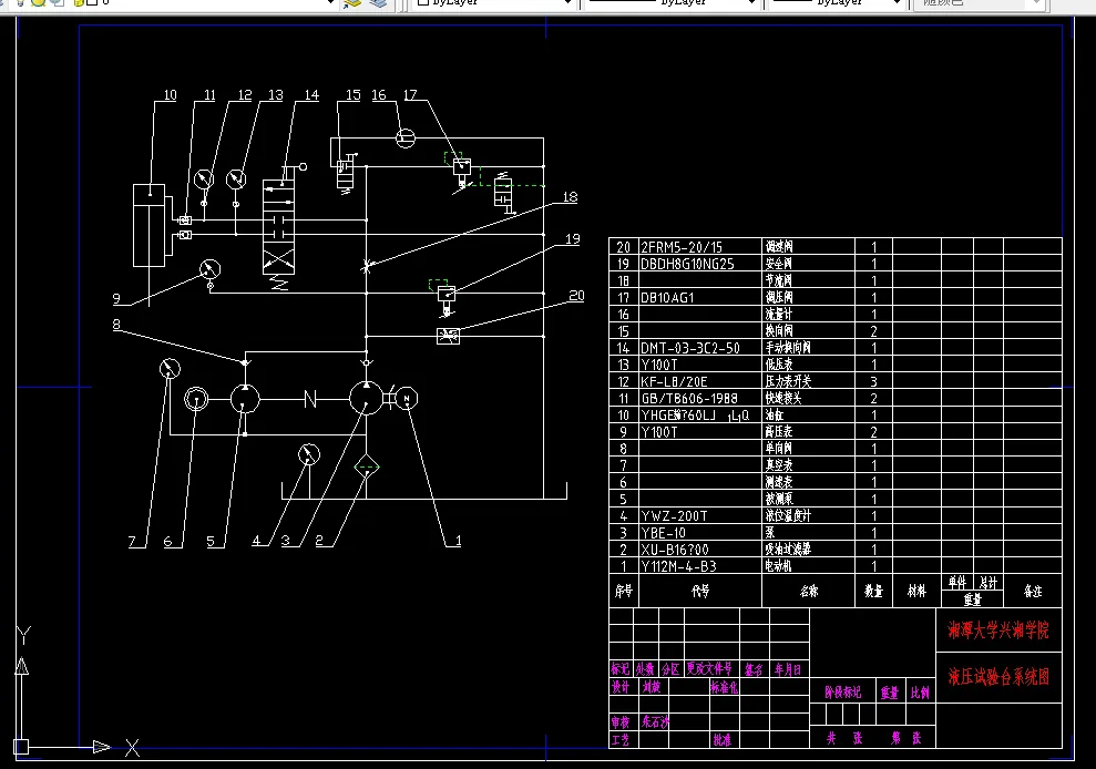
2.4.2 液压试验台系统原理图 11
3 液压试验台选用设计 14
3.1 液压泵的选型与安装 14
3.1.1 液压泵工作压力的确定 14
3.1.2 液压泵流量的确定 14
3.1.3 液压泵的安装方式 14
3.2 电动机功率的确定 17
3.3 液压阀的选型与安装 17
3.4 液压油缸的选型 19
3.5 液压油管的选型 19
3.6 液压油箱的设计 20
3.6.1 液压油箱有效容积的确定 20
3.6.2 液压油箱的散热计算 20
3.6.3 液压油箱的容量计算 21
3.6.4 液压油箱的结构设计 21
4 简易轻载压力机设计 25
4.1 概述 25
4.2 简易压力机设计 26
5 结论 27
参考文献 28
致谢 29
温馨提示:
1、题目前面的备注【字母数字编号】为本站整理分类的编号,与课题内容无关,请选题时忽视;
2、若题目上备注三维,则表示文件里包含三维源文件,由于三维组成零件数量较多,为保证预览截图的简洁性,本站将三维文件夹进行了打包。三维及CAD预览截图,均为本站电脑打开软件进行截图的,保证能够打开,下载原件超高清,下载后解压即可;
3、本站所有资源如无特殊说明,都需要本地电脑安装Office2007。图纸软件为AutoCAD,PROE,UG,SolidWorks,CATIA等;
4、本站所有图文资料仅供用户学习参考,不作为任何商用或其他用途;
5、本站不保证下载资源的准确性、安全性和完整性, 不包修改,不支持退换,同时也不承担用户因使用这些下载资源对自己和他人造成任何形式的伤害或损失;
6、 下载文件中如有侵权或不适当内容,请与我们联系,我们立即纠正。