

作品包括:
word说明书一份,共42页,约15000字
任务书一份
开题报告一份
外文翻译一份
CAD版本图纸,共4张
摘 要
城市的发展带动了整个城市轨道交通的快速发展。单轨交通是其中的一种,它有着与常规地铁比较明显的区别,它有自己独特的方式和较为灵活的发展条件。在未来城市轨道交通发展过程中,必将会发挥重要的作用。
本设计是通过分析跨坐式城市轨道交通的发展现状和市场需求,在选定了轨道车辆动力转向架驱动装置类型的基础上,进行驱动装置的总体设计。通过选择减速齿轮箱的结构形式、确定齿轮箱总体尺寸和齿轮的主要尺寸参数,完成了减速齿轮箱的结构设计。
关键词:单轨,动力转向架,驱动装置,设计
目 录
摘 要 I
ABSTRACT II
第1章绪 论 1
1.1跨坐式城市轨道交通的发展现状和市场要求 1
1.2跨坐式城市轨道交通的发展方向 1
1.3基本参数 2
第2章 跨坐式城市轨道车辆牵引驱动系统装置 3
2.1牵引驱动系统的结构特点 3
2.2轨道车辆转向架的基本作用和要求 3
第3章 牵引驱动装置总布置设计 5
3.1驱动装置的设计原则 5
3.2驱动系统的方案选择 7
3.3 减速器类型的选择 8
3.3.1 基本参数 8
3.4牵引电机的选择 8
3.4.1 选择牵引电机的容量 9
3.4.2 查表选取牵引电动机 10
3.5确定传动比以及传动比的选择 10
3.5.1总传动比 10
3.5.2 传动比的分配 10
3.6动力参数的计算 11
3.6.1各轴转速 11
3.6.2各轴输入功率 11
3.6.3各轴输入转矩 11
第4章 齿轮的设计和计算 12
4.1高速级齿轮计算 12
4.1.1材料选择 12
4.1.2选择小齿轮齿数 12
4.1.3按齿面接触强度设计 12
4.1.4按齿面接触强度计算 13
4.1.5按齿根弯曲强度设计 14
4.1.6几何尺寸计算 16
4.2低速齿轮计算 17
4.2.1 材料选择 17
4.2.2 选择小齿轮齿数 17
4.2.3 按齿面接触强度设计 17
4.2.4按齿面接触强度设计计算 18
4.2.5 按齿根弯曲强度设计 19
4.2.6 按齿根弯曲强度设计设计计算 20
4.2.7 几何尺寸计算 20
4.2.8验算 21
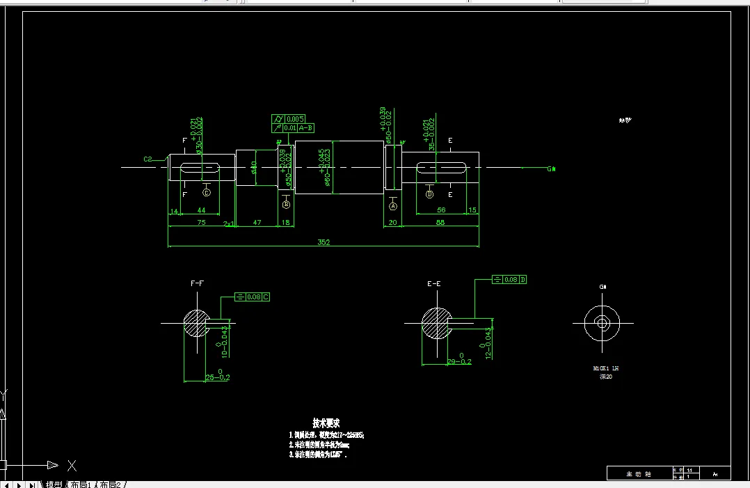
第5章 减速箱轴的设计和计算 22
5.1主动轴的设计 22
5.1.1选择材料 22
5.1.2求作用在齿轮上的力 23
5.1.3确定轴的最小直径 23
5.1.5校核轴的强度 24
5.1.6按弯扭合成应力校核轴的强度 25
5.2中间轴的设计 25
5.2.1选择材料,确定许用应力 25
5.2.2确定轴的最小直径 25
5.2.3确定各轴段尺寸 25
5.2.4校核轴的强度 26
5.2.5按弯扭合成应力校核轴的强度 27
5.3驱动车轴设计 28
5.3.1选择材料 28
5.3.2确定轴的最小直径 28
5.3.4校核轴的强度 29
5.3.5按弯扭合成应力校核轴的强度 30
第6章 相关结构说明 31
6.1联轴节 31
6.2中心销 31
6.3角接触球轴承 31
6.4圆锥滚子轴承 32
第7章 结论与展望 33
致 谢 34
参考文献 35
温馨提示:
1、题目前面的备注【字母数字编号】为本站整理分类的编号,与课题内容无关,请选题时忽视;
2、若题目上备注三维,则表示文件里包含三维源文件,由于三维组成零件数量较多,为保证预览截图的简洁性,本站将三维文件夹进行了打包。三维及CAD预览截图,均为本站电脑打开软件进行截图的,保证能够打开,下载原件超高清,下载后解压即可;
3、本站所有资源如无特殊说明,都需要本地电脑安装Office2007。图纸软件为AutoCAD,PROE,UG,SolidWorks,CATIA等;
4、本站所有图文资料仅供用户学习参考,不作为任何商用或其他用途;
5、本站不保证下载资源的准确性、安全性和完整性, 不包修改,不支持退换,同时也不承担用户因使用这些下载资源对自己和他人造成任何形式的伤害或损失;
6、 下载文件中如有侵权或不适当内容,请与我们联系,我们立即纠正。