

作品包括:
word说明书一份,共37页,约16000字
任务书一份
开题报告一份
CAD版本图纸,共7张
摘 要
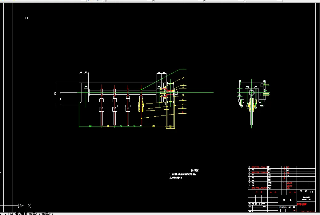
汽车是当今人类使用最广泛的交通工具。汽车发动机的自动化装配程度在一定程度上限制了汽车的自动化生产水平。因此对汽车发动机自动装配生产线的研究,对提高生产线水准具有十分重要的现实意义。在对进气口清洗装置的设计中,有几个关键的问题,首先是顶开阀杆的凸轮机构的设计;其次是驱动凸轮机构转动的电动机及皮带传动部分;再次就是缸盖的固定问题,因为在进气口和出气口进行高压空气清洗时,会给气缸盖向上的力,所以要做好固定工作。一旦进气口有一些杂质或者灰尘粒,就会导致密封不严,或者漏气的现象,这样就会影响发动机的正常工作,所以对进气口的清洗装置的设计就显得尤其关键。清洗装置的设计直接影响到发动机缸盖的密封性,对发动机的工作也有很大影响,所以设计出一套完整、完善的清洗装置是十分必要的。本文在对汽车、汽车构造、发动机的构造、分类,、工作原理、发动机气缸缸盖和生产线进行了比较详细的阐述的基础上,论述了汽车发动机缸盖生产线自动装配进气门清洗装置的设计,并对其进行了理论分析和设计计算。完成了该装置总体结构及凸轮机构、电机、带传动、气缸及清洗等主要部件的设计,为实现汽车发动机生产线自动化装置提供了参考价值。
关键词:汽车发动机;缸盖;生产线;进气口清洗;东安465Q发动机
目 录
摘要 Ⅰ
ABSTRACT Ⅱ
第1章 绪论 1
1.1 选题背景,目的及意义 1
1.2 课题研究现状 6
1.3 研究内容及研究方法 6
1.3.1 设计主要内容 6
1.3.2 研究方法 7
第2章 汽车概述及DA465Q发动机简介 8
2.1汽车概述 8
2.1.1 汽车的构造 8
2.1.2 汽车发动机的构造 8
2.1.3 发动机的分类 9
2.1.4 发动机的工作原理 9
2.1.5 发动机气缸盖 9
2.2 生产线 10
2.2.1 生产线的概况 10
2.2.2 生产线的形式 11
2.2.3 发动机装配线 12
2.3 东安465Q发动机 12
2.3.1 东安动力集团有限公司 13
2.3.2 DA465Q发动机 14
2.4 本章小结 15
第3章 清洗装置总体及主要部件设计 16
3.1 清洗目的及清洗方式的确定 16
3.2 缸盖进气门清洗装置设计 16
3.3 凸轮机构设计 16
3.3.1 凸轮机构基本尺寸设计 19
3.3.2 凸轮的最大压力角 19
3.3.3 凸轮机构运动线图 19
3.3.4 凸轮的材料及热处理 20
3.3.5 凸轮的强度校核及许用应力 20
3.4 电动机选择 21
3.4.1 电动机的功率计算 21
3.4.2 电动机型号选择 21
3.5 带传动设计 22
3.5.1 带传动的选择 22
3.5.2 带传动的设计计算 22
3.6 气缸选择 24
3.6.1 顶部气缸的选择 24
3.6.2 进气口端的气缸的选择 24
3.7 缸盖的固定 25
3.8 进气口清洗机构的设计 26
3.8.1 工件进气口清洗机构设计 26
3.8.2 清洗装置上的进气口密封圈设计 26
3.9 本章小结 27
第4章 进排气门清洗装置总体装配图 28
4.1 装配工艺规程及原则 28
4.2 进排气门清洗装置总体装配图 28
4.3 主要部件图装配图 28
4.3.1 顶开进气门机构装配图 28
4.3.2 驱动凸轮机构装配图 28
4.3 本章小结 28
结论 31
参考文献 32
致谢 33
附录 34
温馨提示:
1、题目前面的备注【字母数字编号】为本站整理分类的编号,与课题内容无关,请选题时忽视;
2、若题目上备注三维,则表示文件里包含三维源文件,由于三维组成零件数量较多,为保证预览截图的简洁性,本站将三维文件夹进行了打包。三维及CAD预览截图,均为本站电脑打开软件进行截图的,保证能够打开,下载原件超高清,下载后解压即可;
3、本站所有资源如无特殊说明,都需要本地电脑安装Office2007。图纸软件为AutoCAD,PROE,UG,SolidWorks,CATIA等;
4、本站所有图文资料仅供用户学习参考,不作为任何商用或其他用途;
5、本站不保证下载资源的准确性、安全性和完整性, 不包修改,不支持退换,同时也不承担用户因使用这些下载资源对自己和他人造成任何形式的伤害或损失;
6、 下载文件中如有侵权或不适当内容,请与我们联系,我们立即纠正。