

作品包括:
word说明书一份,共30页,约14000字
任务书一份
开题报告一份
CAD版本图纸,共7张
摘 要
论文系统的介绍了汽车发动机缸盖生产线的发展状况,围绕东安汽车发动机的实际装配与检验过程,进行了自动装配与检验生产线的经济可行性分析,生产类型分析,生产条数分析,生产规模分析。并结合实际条件,确定了装配与检验工序的基准、生产用量和工时定额。在此基础上,确立了最终装配与检验生产线。同时,针对以东安为代表的国内特定的生产技术与劳动条件,对其装配与检验工艺规程进行了详细设计。并用系统工程学的原理对发动机缸盖各部件的装配与检验时间定额,以及生产线的配置进行了初步优化,对自动装配与检验过程提出详细的要求,最终确立了一套完整的适合国内生产实际的生产线。
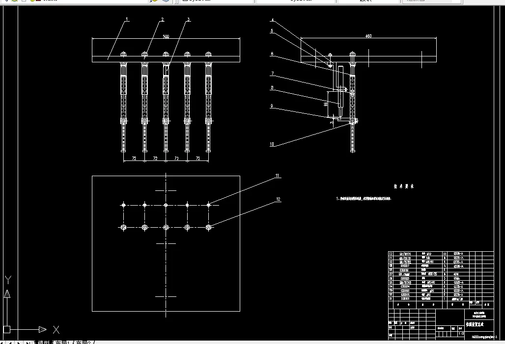
汽车发动机缸盖连接螺栓自动检查装置的设计,是完全自动化的检查装置,检查时间为60秒。没有连接螺栓检查装置的生产线,主要凭借工人的肉眼来检查螺栓安装的正确性,不仅工作单调,而且容易产生疲劳,进而容易导致生产事故。而自动化的检查装置完全可以弥补这一不足。同样可以做到检查的准确性和可靠性,大大地节约了劳动资源。本设计就是要检查螺栓和垫片安装的正确性。
本生产线是为东安465发动机缸盖而设计的。发动机的缸盖共有10个螺栓孔分别分布在缸盖的两侧,设计的任务是检查上一道缸盖连接螺栓的安装工序中,垫圈和螺栓的安装是否正确,综合所有出现的安装错误,大致会出现五种情况:① 只有两个垫圈没有螺栓 ②没有垫圈也没有螺栓 ③只有一个垫圈没有螺栓 ④没有垫圈只有螺栓⑤ 有两个垫圈一个螺栓。正确的安装是只有一个垫圈和一个螺栓,检查时间不得超过60秒。
本文着重介绍了汽车发动机缸盖连接螺栓装配自动检查装置的设计方法及工作原理。说明书在检查装置中大胆提出了自己的观点,重点对检查装置进行了结构的设计和理论的分析,对其主要部件进行了理论设计。本设计中自动检查装置主要部件的设计:1、整体机架的设计2、检查机构的设计3、传动机构的设计4、平衡机构的设计
关键词: 发动机缸盖;螺栓装配;自动检查;生产线
目 录
摘要 I
Abstract II
第1章 绪 论 1
1.1 汽车及汽车工业概述 1
1.2.1 发动机的概述 1
1.2.2 发动机的组成 2
1.2.3 发动机的分类 2
1.2.4 发动机的构造 3
1.2.5 汽车发动机行业的发展前景 3
1.3 汽车生产线 4
1.3.1 生产线的概述 4
1.3.2 装配线型式 4
1.3.3 装配线的长度 5
1.3.4 装配线的劳动量 5
1.3.5 生产线的展望 6
1.4 生产线的方案选择 6
1.4.1 汽缸盖自动装配与检验生产线的总体方案选择 6
1.4.2 方案的择优与拟定 7
1.5 本课题的研究意义 8
1.6 设计的预期成果 8
第2章 自动检查装置的总体设计 9
2.1 研究的主要内容 9
2.2 发动机缸盖装配生产线的工艺要求 9
2.3 设计的目的 9
2.4 连接螺栓自动检查装置的构思 10
2.5本章小结 12
第3章 自动检查装置主要部件的设计 13
3.1 检查装置的设计 13
3.1.1 检查装置的原理 13
3.1.2 数字侧长传感器个数的选择 14
3.1.3 检查机构的连接和固定 14
3.2 整体机架的设计 16
3.2.1 机架形式的确定 16
3.2.2 挠度的计算 17
3.3 传动机构的设计 18
3.4 螺栓连接计算 20
3.4.1 水平汽缸螺栓的链接和校核: 20
3.4.2 竖直气缸螺栓的连接和校核 23
3.5 平衡机构的设计 26
3.6 本章小结 27
结 论 28
参考文献 29
致 谢 30
温馨提示:
1、题目前面的备注【字母数字编号】为本站整理分类的编号,与课题内容无关,请选题时忽视;
2、若题目上备注三维,则表示文件里包含三维源文件,由于三维组成零件数量较多,为保证预览截图的简洁性,本站将三维文件夹进行了打包。三维及CAD预览截图,均为本站电脑打开软件进行截图的,保证能够打开,下载原件超高清,下载后解压即可;
3、本站所有资源如无特殊说明,都需要本地电脑安装Office2007。图纸软件为AutoCAD,PROE,UG,SolidWorks,CATIA等;
4、本站所有图文资料仅供用户学习参考,不作为任何商用或其他用途;
5、本站不保证下载资源的准确性、安全性和完整性, 不包修改,不支持退换,同时也不承担用户因使用这些下载资源对自己和他人造成任何形式的伤害或损失;
6、 下载文件中如有侵权或不适当内容,请与我们联系,我们立即纠正。