

作品包括:
word说明书一份,共71页,约22000字
任务书一份
开题报告一份
CAD版本图纸,共11张
摘 要
高空作业车是目前最常见的专用汽车之一。由于高空作业车近几年的快速发展,高空作业行业出现了部分车型产量过剩苗头的同时,也存在着部分车型供不应求、生产能力不足的现象,因此,结构性过剩是当前汽车工业产能过剩的基本特点,也是当前汽车工业发展存在的主要问题。高空作业车是汽车工业的一部分,它的发展中也会出现同样的问题,因此研究高空作业车的改装技术,不仅可以推动高空作业车行业的发展,而且对于推动专用汽车行业的发展,调整企业产品开发战略无疑具有重要意义。在这次的设计工作中,我主要设计了一种折叠臂的高空作业车,主要以上、下臂,转台,液压部分为研究对象。
本设计主要设计的是作业高度为10米的高空作业车,在满足作业高度的前提下,对高空作业臂,转台,液压部分进行设计:首先根据使用要求选择作业臂材料的类型;其次根据最大作业高度确定上、下臂的长度;再经过受力分析利用强度来确定臂的截面尺寸及油缸的铰接位置;再进行强度、刚度、稳定性的校核,查看作业臂的尺寸是否符合要求;转台和液压部分同样原理也要进行计算与校核。
关键词:高空作业车;高空作业臂;转台;液压系统;改装设计
目 录
摘 要 I
Abstract II
第1章 绪 论 1
1.1 概述 1
1.2 高空作业车的发展现状 2
1.2.1 专用车的现状 2
1.2.2 我国高空作业车的现状和发展 2
1.3 高空作业车的组成 5
1.3.1 工作装置 5
1.3.2 金属结构 5
1.3.3 控制系统 5
1.3.4 动力传动装置 5
1.4 本课题所研究的任务 6
1.5 本课题研究的意义 6
第2章 确定设计方案 8
2.1 总体设计要求 8
2.2 动作要求 8
2.3 技术性能要求 8
2.4 总体设计方案 8
2.5 确定执行元件的形式 9
2.6 整体设计结构图 9
2.7 本章小结 9
第3章 底盘的选择 10
3.1 高空作业车底盘的类型 10
3.2 底盘的选择 10
3.3 本章小结 11
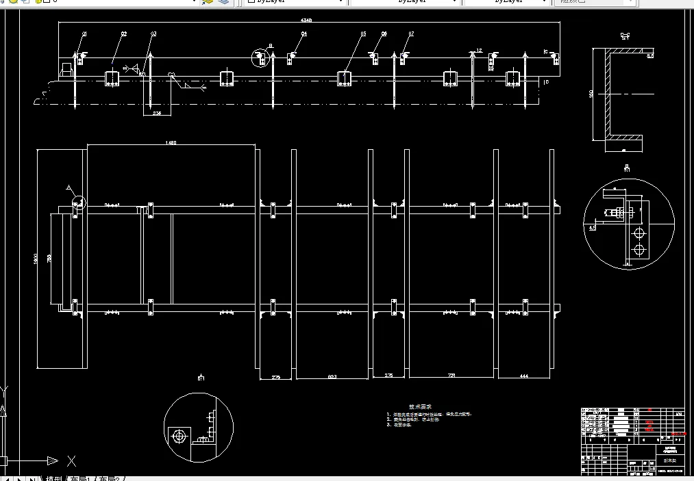
第4章 高空作业车臂的设计 12
4.1 材料的选择 12
4.2 计算上、下臂的长度 12
4.3 确定液压缸铰点的位置 13
4.3.1 确定上臂液压缸铰点的位置 13
4.3.2 确定下臂液压缸铰点的位置 13
4.4 上臂截面尺寸的确定 13
4.4.1 对上臂进行受力分析 14
4.4.2 计算上臂截面尺寸 15
4.4.3 对上臂进行强度校核 16
4.5 下臂截面尺寸的确定 17
4.5.1 对下臂进行受力分析 17
4.5.2 计算下臂的截面尺寸 19
4.5.3 对下臂进行强度校核 20
4.6 本章小结 21
第5章 高空作业车转台结构的设计 22
5.1 高空作业车转台总体结构设计 22
5.2 转台的受力分析 27
5.2.1 转台的自重 27
5.2.2 转台受到的其余的力 29
5.3 回转支承装置的计算 29
5.3.1 回转支承的计算载荷 29
5.3.2 转盘式回转支承装置的计算 30
5.3.3 按承载能力确定圆柱滚子数目 30
5.4 传动齿轮的计算 31
5.4.1 选择齿轮材料 31
5.4.2 选择齿轮齿数和齿宽系数 31
5.4.3 确定轮齿的许用应力 32
5.4.4 齿面接触强度设计 32
5.4.5 确定模数和齿宽 32
5.4.6 验算齿根的弯曲强度 33
5.4.7 传动齿轮的几何尺寸 33
5.5 本章小结 33
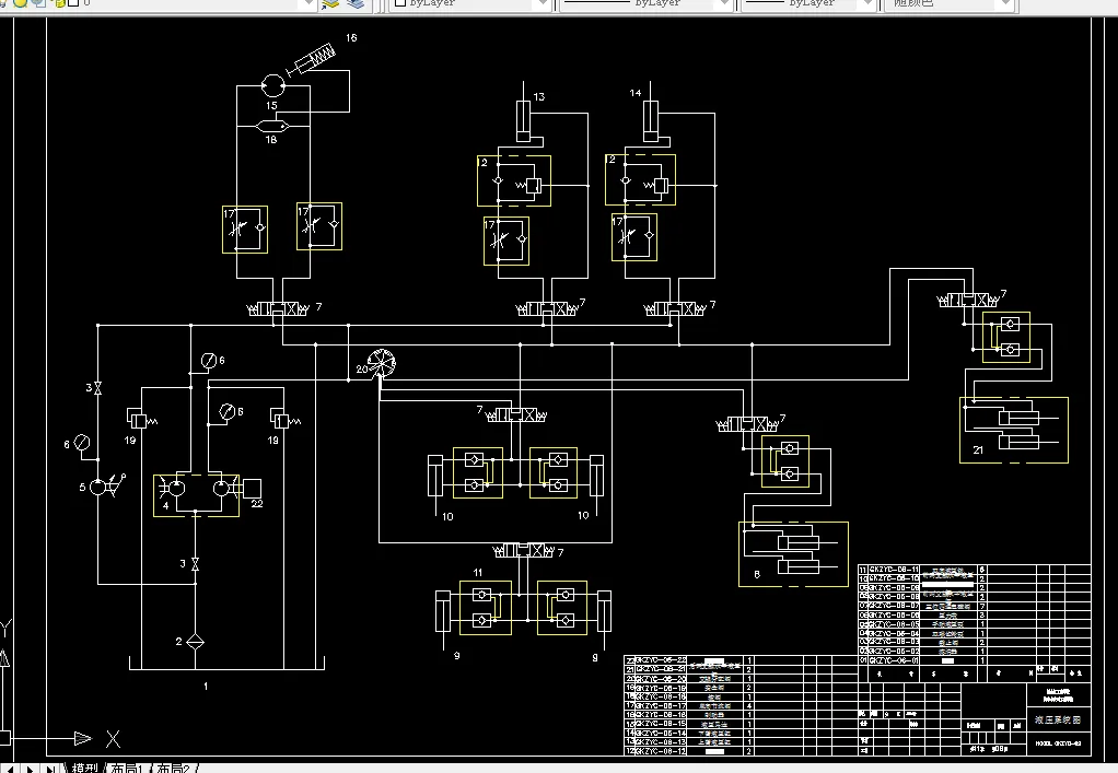
第6章 液压系统的设计 34
6.1 液压缸的设计计算 34
6.1.1 液压缸的最大载荷 34
6.1.2 确定系统工作压力 37
6.1.3 液压缸内径计算 37
6.1.4 液压缸缸筒壁厚和外径计算 37
6.1.5 液压缸最大密封压强得计算和壁厚的校核 38
6.1.6 液压缸活塞杆直径 40
6.1.7 液压缸活塞缸强度校核 40
6.1.8 液压缸活塞杆稳定性校核 41
6.1.9 液压缸的选择 42
6.2 液压马达的选取 42
6.3 液压泵的选择 42
6.4其他辅助元件的选择 43
6.4.1 油箱 43
6.4.2 联轴器 43
6.4.3 各种液压阀 44
6.5 本章小结 44
第7章 其余部分设计与选择 45
7.1 副车架的选择与计算 45
7.1.1 副车架外形设计 45
7.1.2 副车架选材 45
7.1.3 副车架的校核 45
7.2 销和螺栓的校核与计算 48
7.3 钢丝绳的选择与计算 49
7.3.1 钢丝绳的计算与校核 49
7.3.2 钢丝绳接头的压制方法 51
7.4 本章小结 51
结 论 52
参考文献 53
致 谢 54
附 录 55
温馨提示:
1、题目前面的备注【字母数字编号】为本站整理分类的编号,与课题内容无关,请选题时忽视;
2、若题目上备注三维,则表示文件里包含三维源文件,由于三维组成零件数量较多,为保证预览截图的简洁性,本站将三维文件夹进行了打包。三维及CAD预览截图,均为本站电脑打开软件进行截图的,保证能够打开,下载原件超高清,下载后解压即可;
3、本站所有资源如无特殊说明,都需要本地电脑安装Office2007。图纸软件为AutoCAD,PROE,UG,SolidWorks,CATIA等;
4、本站所有图文资料仅供用户学习参考,不作为任何商用或其他用途;
5、本站不保证下载资源的准确性、安全性和完整性, 不包修改,不支持退换,同时也不承担用户因使用这些下载资源对自己和他人造成任何形式的伤害或损失;
6、 下载文件中如有侵权或不适当内容,请与我们联系,我们立即纠正。