

作品包括:
Word版说明书1份,84页,约19000字
CAD版本图纸,共4张
Proe三维图一份
摘 要
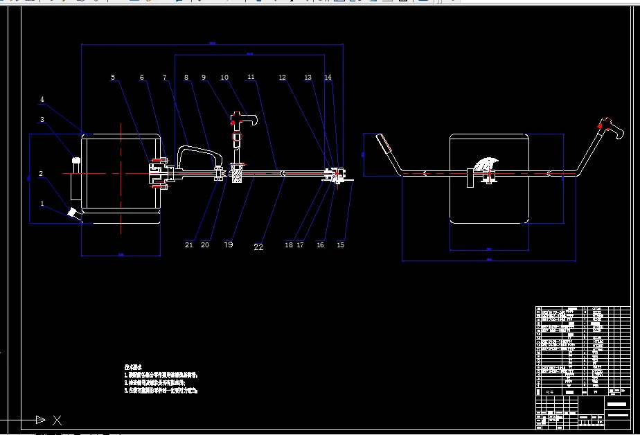
本文介绍了基于Pro/E的微型乘用车发动机配气机构的建模与ANSYS进行有限元分析的相关知识。综述了国内外目前微型乘用车发动机配气机构的装配与分析的发展趋势。通过对发动机配气机构的使用性能、工作条件、结构、技术要求的了解,利用Pro/E绘出配气机构的三维图,并进行发动机配气机构的模拟装配,在有限元分析过程中,应用到了当今流行ANSYS有限元分析软件,通过Pro/E的三维建模,将此模型导入到ANSYS软件中进行分析,近年来随着计算机技术的普及和计算速度的不断提高,有限元分析在工程设计和分析中得到了越来越广泛的重视,已经成为解决复杂的工程分析计算问题的有效途径,对于工程实际具有重要的应用价值。基于以上的说明,我们可以知道本设计从理论上可以提高制造效率,节省劳动力,节约生产资源,加快了解汽车企业生产工艺设计、制造及应用的过程,Pro/E与ANSYS的紧密结合,比传统AutoCAD设计更能够缩短开发周期,提高生产制造水平。
关键词:配气机构;Pro/E;建模;ANSYS;有限元分析
目 录
摘 要 I
ABSTRACT II
第1章 绪 论 1
1.1 选题背景 1
1.2 国内外发动机配气机构的发展趋势 1
1.2.1 国内外发动机配气机构的发展趋势 1
1.3 Pro/E及ANSYS的简介 2
1.3.1 Pro/E的现状及功能特点 2
1.3.2 ANSYS的现状及功能特点 3
1.4 课题研究的主要内容 3
1.5 课题研究的主要方法 4
第2章 气门组零件的建模 5
2.1 概述 5
2.2 气门的建模 5
2.2.1 进气门的建模 5
2.2.2 排气门的建模 8
2.3其他零件的建模 10
2.4本章小结 19
第3章 气门传动组零件的建模 20
3.1 概述 20
3.2 气门传动组设计中需注意的问题 20
3.3 凸轮轴的建模 20
3.4 摇臂的建模 25
3.4.1 进气摇臂的建模 25
3.4.2 排气摇臂的建模 30
3.5 摇臂轴的建模 32
3.5.1 进气摇臂轴的建模 32
3.5.2 排气摇臂轴的建模 36
3.6 其他零件的建模 37
3.7 本章小结 47
第4章 配气机构的装配 48
4.1 概述 48
4.2 装配过程 48
4.3 本章小结 55
第5章 气门的有限元分析 56
5.1 概述 56
5.2 ANSYS与Pro/E 57
5.3 排气门的有限元分析 60
5.3.1设置参数 61
5.3.2 施加载荷和约束条件 67
5.3.3查看结果 71
5.4 本章小结 74
结 论 75
参考文献 76
致 谢 78
附录A 外文文献 79
附录B 中文翻译 82
温馨提示:
1、题目前面的备注【字母数字编号】为本站整理分类的编号,与课题内容无关,请选题时忽视;
2、若题目上备注三维,则表示文件里包含三维源文件,由于三维组成零件数量较多,为保证预览截图的简洁性,本站将三维文件夹进行了打包。三维及CAD预览截图,均为本站电脑打开软件进行截图的,保证能够打开,下载原件超高清,下载后解压即可;
3、本站所有资源如无特殊说明,都需要本地电脑安装Office2007。图纸软件为AutoCAD,PROE,UG,SolidWorks,CATIA等;
4、本站所有图文资料仅供用户学习参考,不作为任何商用或其他用途;
5、本站不保证下载资源的准确性、安全性和完整性, 不包修改,不支持退换,同时也不承担用户因使用这些下载资源对自己和他人造成任何形式的伤害或损失;
6、 下载文件中如有侵权或不适当内容,请与我们联系,我们立即纠正。