

作品包括:
word说明书一份,共44页,约20000字
任务书一份
开题报告一份
外文翻译一份
CAD版本图纸,共8张
摘要
随着科学技术的不断进步,汽车的数量也不断增长,人们对于汽车发动机的性能的要求也越来越高。但国内对于汽车领域的研究有限,技术还不够成熟,大部分都是引进国外的先进技术,这导致国内广大的市场为外国人提供无限商机。日本的丰田VVT-i发动机在众多发动机中脱颖而出,近年来为日本鼓足了腰包。所以要在激烈的市场竞争中适应环境变化,加强对新技术的研究迫在眉睫。
泄漏量检测作为完善发动机的一道重要工序,也被越来越多的人研究。检测发动机正常工况下的泄漏情况有助于发现发动机存在的问题和不足,然后加以改进,保证每个出厂的发动机都具有良好的性能。提高产品的质量的同时也提高了产品的美誉,为产品打出了招牌。
本文从结构设计出发,应用已学的知识和实践经验,结合VVT-i发动机的特点,对泄漏量检测台的结构设计进行研究。涉及到检测台的结构设计、液压系统设计、油箱的设计。结构设计又包括钢架设计、工作台面组成和各部分材料选取;液压系统设计包括液压动力部分设计和控制部分设计;油箱的设计包含了油箱构造和容量设计以及辅助元器件的选取。从而确定检测台的整体设计和未来发展趋势,为国内汽车行业走出一条新的致富之路。
关键词:发动机;测漏技术;结构设计;液压
目 录
摘要 III
ABSTRACT IV
目 录 V
1 绪论 1
1.1 本课题的研究内容和意义 1
1.2 国内外的发展概况 1
1.3 本课题应达到的要求 2
2 设计内容概述 3
2.1 引言 3
2.2 可变气门正时系统特点 3
2.2.1 VVT-i的组成 3
2.2.2 VVT-i的工作原理 4
2.2.3 运用到汽车发动机上的作用 4
3 试验台架结构设计内容 5
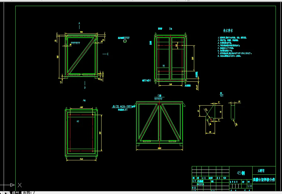
3.1 钢架设计 5
3.1.1 钢架的设计准则及一般要求 5
3.1.2 钢架结构的设计步骤 5
3.1.3 钢架结构的选择 6
3.1.4 确定钢架结构外形 7
3.2 工作台面的组成 7
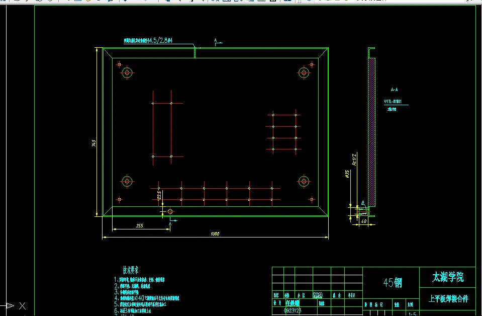
3.2.1 工装上平板焊接合件 7
3.2.2 OCV工装支撑板和VVT工装底板 8
3.2.3 泄漏工装和压板 9
3.2.4 OCV工装、VVT泄漏工装和流量传感器工装 10
3.2.5 防护玻璃罩 12
3.3 各部分材料 12
4 台架的液压系统设计 13
4.1 液压系统的基本组成及设计要求 13
4.1.1 液压系统的基本组成 13
4.1.2 液压系统的设计要求 13
4.2 动力部分设计 13
4.2.1 泵的选型 13
4.2.2 电机的选型 16
4.3 液压系统控制部分 18
4.3.1 液压控制阀的分类 19
4.3.2 液压阀的选择 19
4.3.3 溢流阀的选择 20
4.3.4 减压阀的选择 21
4.3.5 节流阀的选择 22
4.3.6 机油控制阀(OCV)在气门正时系统中的作用 22
4.4 集成阀的介绍 23
4.5 液压系统辅助元器件 24
4.5.1 恒温器的简单介绍 24
4.5.2 蓄能器的简单介绍 24
4.5.3 过滤器的介绍 25
4.5.4 空气滤清器的介绍 25
5 油箱的设计 26
5.1 油箱的构造与设计要点 26
5.2 本液压系统中油箱的设计说明 27
5.2.1 本液压系统中油箱的设计说明 27
5.2.2 油箱的容量与计算 27
5.2.3 油箱的辅助元器件 28
6 三维实体造型 29
6.1 整体台架结构造型 29
6.2 部分组成部分的造型简介 29
6.3 油箱造型的重点介绍 31
7 结论与展望 32
致谢 33
参考文献 34
温馨提示:
1、题目前面的备注【字母数字编号】为本站整理分类的编号,与课题内容无关,请选题时忽视;
2、若题目上备注三维,则表示文件里包含三维源文件,由于三维组成零件数量较多,为保证预览截图的简洁性,本站将三维文件夹进行了打包。三维及CAD预览截图,均为本站电脑打开软件进行截图的,保证能够打开,下载原件超高清,下载后解压即可;
3、本站所有资源如无特殊说明,都需要本地电脑安装Office2007。图纸软件为AutoCAD,PROE,UG,SolidWorks,CATIA等;
4、本站所有图文资料仅供用户学习参考,不作为任何商用或其他用途;
5、本站不保证下载资源的准确性、安全性和完整性, 不包修改,不支持退换,同时也不承担用户因使用这些下载资源对自己和他人造成任何形式的伤害或损失;
6、 下载文件中如有侵权或不适当内容,请与我们联系,我们立即纠正。