

作品包括:
Word版说明书一份,43页,约20000字
CAD版本图纸,共7张
摘要
近几年,随着建筑行业的飞速发展,泵送混凝土施工技术得到广泛的发展。一些小型、中型的混凝土泵,施工效率低,性价比高,而HBT100是一种大型的混凝土泵,它的泵送速度与小型、中型的相比有很多提高。本次设计课题是HBT100混凝土泵液压系统设计。以系统性,实用性,经济性,精简性为原则,设计混凝土泵液压系统原理、油箱和系统阀块,以及液压元件和辅助元件的选型。
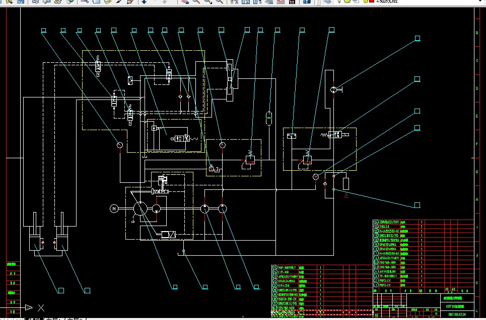
主油泵吸油后,通过压力油口进入主溢流阀,通过冷却器和回油过滤器回到油箱。当主溢流阀关闭,压力油通过液动换向阀进入液压缸两个液压缸一前进一后退,当主油缸活塞运行到行程终点时,主油泵压力油通过另一液动换向阀进入分配缸,分配阀换向,分配阀换向终了,压力油通过液动换向阀进入主油缸,如此往复循环。采用泵送混凝土技术能改善混凝土的施工性能,具有提高抗渗性、改善耐久性特点。
关键词:混凝土泵、液压系统、分配阀、液压泵、液压缸。
目录
1绪论 1
1.1混凝土泵特点 1
1.2混凝土施工的局限性 1
1.3混凝土泵的分类 2
1.3.1按排量分类 2
1.3.2按工作原理分类 2
1.3.3按移动式分类 2
2混凝土泵液压系统的设计 4
2.1混凝土泵液压系统概论 4
2.2分配阀 4
2.3混凝土泵液压系统主回路设计 10
2.4制定基本方案 11
2.4.1制定调速方案 11
2.4.2制定压力控制方案 11
2.4.3制定顺序动作方案 11
2.4.4绘制液压系统原理图 11
2.4.5液压系统原理分析 11
3液压机构计算 14
3.1设计参数 14
3.2计算缸筒壁厚 14
3.3液压系统负载分析 14
3.3.1原始数据 14
3.3.2负载组成与计算 15
3.3.3速比的选择 16
3.3.4主油缸活塞杆直径的确定 16
3.3.5液压系统理论最高压力 17
3.3.6计算液压油缸所需油量 17
4液压元件选型 19
4.1主油泵的选型 19
4.1.1主油泵的选择原则 19
4.1.2主油泵类型的选择 19
4.1.3参数计算 19
4.1.4主油泵型号 21
4.2发动机的选择 22
4.3验算系统最大压力 23
4.4油箱的设计 24
4.4.1油箱设计要点 24
4.4.3油箱的功用和结构 25
4.4.4油箱零件选择 25
4.4主油路液压阀的选择 26
4.5主油路管子选择 27
4.6分配阀的计算 28
4.6.1分配阀材料的选择 28
4.6.2分配阀的受力计算 28
5液压辅助元件选型及阀块设计 30
5.1蓄能器的选择 30
5.2冷却器的选择 31
5.3液压阀块的设计 32
5.3.1液压阀块上六个表面的功用: 32
5.3.2液压阀块的设计思路 33
6混凝土泵故障 34
6.1混凝土泵液压系统故障 34
6.2摆阀的故障 34
7结论 36
参考文献 37
附录 38
致谢 39
温馨提示:
1、题目前面的备注【字母数字编号】为本站整理分类的编号,与课题内容无关,请选题时忽视;
2、若题目上备注三维,则表示文件里包含三维源文件,由于三维组成零件数量较多,为保证预览截图的简洁性,本站将三维文件夹进行了打包。三维及CAD预览截图,均为本站电脑打开软件进行截图的,保证能够打开,下载原件超高清,下载后解压即可;
3、本站所有资源如无特殊说明,都需要本地电脑安装Office2007。图纸软件为AutoCAD,PROE,UG,SolidWorks,CATIA等;
4、本站所有图文资料仅供用户学习参考,不作为任何商用或其他用途;
5、本站不保证下载资源的准确性、安全性和完整性, 不包修改,不支持退换,同时也不承担用户因使用这些下载资源对自己和他人造成任何形式的伤害或损失;
6、 下载文件中如有侵权或不适当内容,请与我们联系,我们立即纠正。