

作品包括:
word版说明书一份,共48页,约20000字左右.
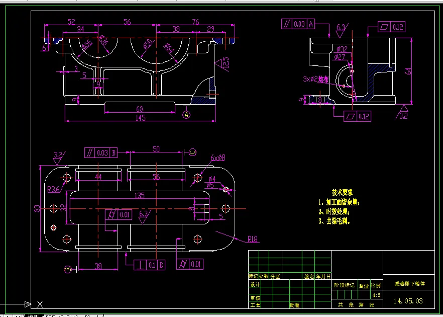
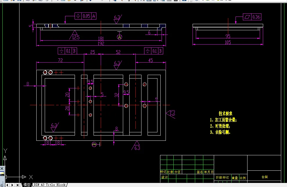
CAD版本图纸,共5张
非开挖水平定向钻机顶进回拖系统结构设计
[摘要]:本文通过分析非开挖水平定向钻机顶进回拖系统国内外研究现状,应用和具体的检测方法,经过查阅相关资料、讨论,提出了一种利用齿轮齿条传动的解决方案,并详细设计了一种用于非开挖水平定向钻机顶进回拖系统结构,该系统能够正常、稳定的实现钻机动力头顶进回拖功能。该顶进回拖系统包括电机、联轴器、减速箱、齿轮齿条、动力头、导轨等核心部分,通过AutoCAD出图,最终完成设计说明书的书写和外文翻译。
[关键词] 非开挖;水平定向钻机;顶进回拖;齿轮齿条
目 录
第一章 绪论 1
1.1非开挖水平定向钻机常见的顶进回拖系统结构及发展现状 1
1.1.1 液压油缸进给方式 1
1.1.2 马达-链条进给方式 2
1.1.3 液压马达-齿轮齿条进给式 2
1.2非开挖水平定向钻机国内外现状 3
1.2.1国外HDD的现状 3
1.2.2国内HDD的现状 4
1.3本论文研究的主要内容和特色 5
1.4本论文研究的意义及主要关键技术指标 6
1.4.1 意义 6
1.4.2 关键技术指标 6
第二章 总体方案及动力头导轨设计计算 7
2.1 总体方案设计 7
2.1.1整体方案内容 7
2.1.2设计方案特点 8
2.2 动力头与导轨的设计计算 8
2.3电动机选型 9
2.3.1电动机选型设计计算 9
2.3.2 电动机型号及技术参数 10
第三章 减速箱齿轮组设计计算 12
3.1减速箱齿轮组设计计算 12
3.1.1传动比分配 12
3.1.2 齿轮传动设计计算 12
3.1.3减速齿轮组结果汇总 14
3.2按齿根弯曲疲劳强度校核 16
3.2.1计算弯曲疲劳许用应力 16
3.2.2校核计算 17
第四章 齿轮齿条设计计算与校核 18
4.1齿轮齿条设计计算 19
4.2 设计计算结果汇总 21
第五章 轴的设计计算及校核 23
5.1轴的设计计算 23
5.2 轴的校核 25
5.3轴承的校核 26
第六章 辅助部件的设计计算 28
6.1螺栓的设计 28
6.1.1螺栓的主要作用 28
6.1.2螺栓的设计计算及校核 28
6.2 润滑 29
总 结 32
参考文献 33
翻 译 34
温馨提示:
1、题目前面的备注【字母数字编号】为本站整理分类的编号,与课题内容无关,请选题时忽视;
2、若题目上备注三维,则表示文件里包含三维源文件,由于三维组成零件数量较多,为保证预览截图的简洁性,本站将三维文件夹进行了打包。三维及CAD预览截图,均为本站电脑打开软件进行截图的,保证能够打开,下载原件超高清,下载后解压即可;
3、本站所有资源如无特殊说明,都需要本地电脑安装Office2007。图纸软件为AutoCAD,PROE,UG,SolidWorks,CATIA等;
4、本站所有图文资料仅供用户学习参考,不作为任何商用或其他用途;
5、本站不保证下载资源的准确性、安全性和完整性, 不包修改,不支持退换,同时也不承担用户因使用这些下载资源对自己和他人造成任何形式的伤害或损失;
6、 下载文件中如有侵权或不适当内容,请与我们联系,我们立即纠正。